93 JOHN Street S, Hamilton, Ontario, L8N2C2
MLS: 40808502 | Other
$850,000



































Property Description
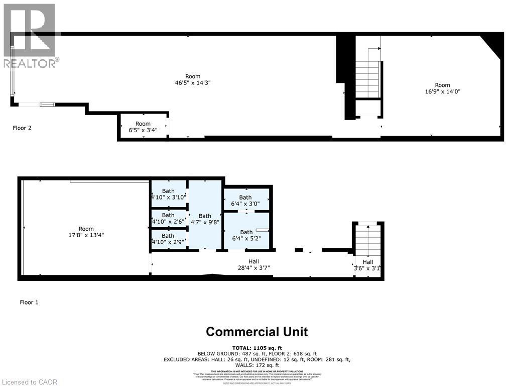
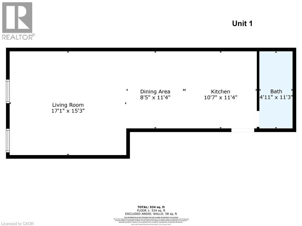
Prime investment opportunity in the heart of downtown Hamilton. This fully renovated mixed-use property features a street-level storefront with excellent visibility, plus two additional floors and a functional basement. Offering a cap rate of 6.2% at asking, this property provides strong potential for steady passive income. With nearly 3,000 sq. ft. of commercial space, the main floor impresses with soaring 11-foot ceilings and modern pot lighting throughout. The building is well-equipped with two furnaces (one installed in 2020), two A/C units, 400-amp service, and two separate panels. Its unbeatable location, just steps from the Hamilton GO Station, ensures convenience and accessibility for both tenants and customers. (id:64974)
Quick Facts
- Property Type: Other
- Bedrooms: None
- Bathrooms: None
- Living Area: 2,240 sq ft (208.1 m²)
- Ownership: Freehold
- Frontage: 17 ft (5.2 m)
Costs
- Annual Taxes: $15,336.00
Listing Provided by: eXp Realty
Board: Cornerstone Association of REALTORS®
Data provided via CREA DDF®.
Detailed Features
Interior & Systems
- Basement: Full
Exterior & Construction
- Sewer: Municipal sewage system
- Water: Municipal water
Lot & Land
- Frontage: 17 ft (5.2 m)
- Zoning: D1 - Downtown Central Business District
Community & Neighbourhood
- Subdivision: 142 - Corktown
Listing Information
Listing History
Buy/Sell/Terminated/Expired listing history for 93 JOHN Street S, Hamilton, Ontario, L8N2C2
Location & Neighborhood
🚗 Travel times
Neighborhood Walkability
Mortgage & Cost Calculators
Nearby Homes (Within 2km)
Similar Homes
Similar Properties
No rental comparables found in this area.
Sold Comparables
Access to sold property data requires a registered and verified account with TRREB DDF integration.
Coming SoonRented Comparables
Access to rented property data requires a registered and verified account with TRREB DDF integration.
Coming Soon



























