44 FRANCIS Street, Hamilton, Ontario, L8L3V3
MLS: 40814117 | Other
$749,900



















































Property Description
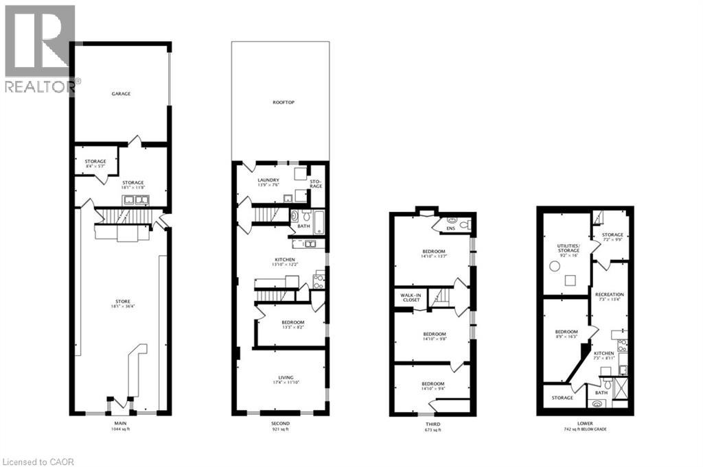
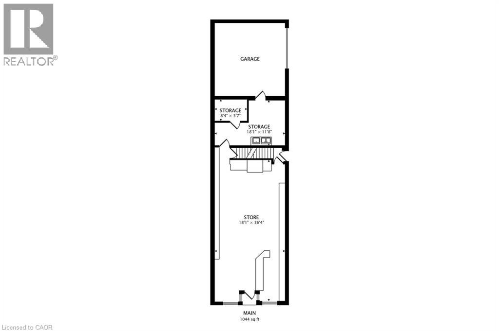
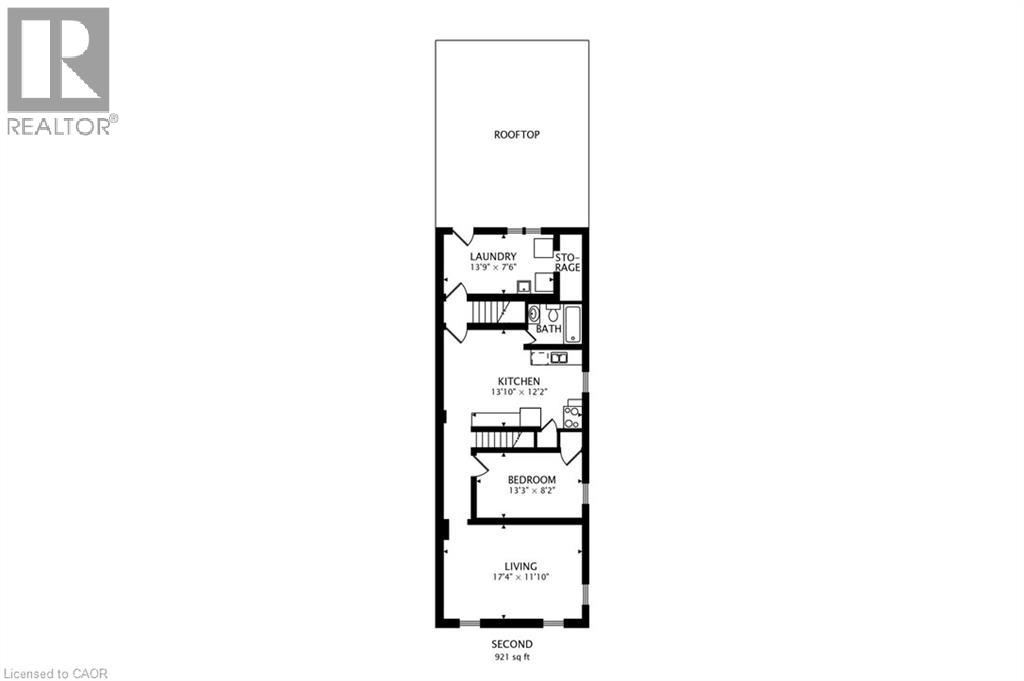
3+1 bedroom home with Commercial unit plus a second residential in-law/shopkeeper unit in the basement. 2 separate meters. Great live-work investment property including an long established and currently operating variety store business. The variety store has serviced this community with groceries, tobacco and lotto for years and has very good walk-in business. Easy access to QEW via Nikola Tesla. Close to all amenities, West Harbour Go Station, Tim Hortons Field, Restaurants, Schools, Public Transit, Hospital, and Bennetto Community Centre. Property consists of income producing variety store approximately 800 sq ft. as well as a large 4 bedroom residential apartment with walk-out rooftop terrace. The variety store and equipment are included in the sale but it is a cash business with no financials. The residential unit is currently occupied by the owner so vacant possession is easy or they will rent back if desired by the buyer. Be part of the Long-term revitalization of Hamilton's North End. A perfect fit for investors seeking to join a dynamic evolving and improving community. (id:64974)
Quick Facts
- Property Type: Other
- Bedrooms: None
- Bathrooms: None
- Living Area: 3,380 sq ft (314.0 m²)
- Ownership: Freehold
- Frontage: 22 ft (6.7 m)
Costs
- Annual Taxes: $5,288.64
Listing Provided by: RE/MAX Escarpment Realty Inc.
Board: Cornerstone Association of REALTORS®
Data provided via CREA DDF®.
Detailed Features
Interior & Systems
- Basement: Partial
Exterior & Construction
- Sewer: Municipal sewage system
- Water: Municipal water
Lot & Land
- Frontage: 22 ft (6.7 m)
- Features: Visual exposure
- Zoning: H/S-647b
Community & Neighbourhood
- Community: High Traffic Area
- Subdivision: 133 - Keith
Listing Information
Listing History
MLS listing activity for 44 FRANCIS Street, Hamilton, Ontario, L8L3V3 — dates reflect when changes were recorded in the DDF
🚗 Travel times
Neighborhood Walkability
Mortgage & Cost Calculators
Nearby Homes ?Nearby Homes — Search CriteriaSearch Radius1 kmPrice Range±5%Match BedroomsYesMatch BathroomsYes

443 WENTWORTH Street N, Hamilton
Other$699,900
$6,467/yr taxListing Courtesy of RE/MAX Escarpment Realty Inc.

707 BARTON Street E, Hamilton
Other$1,650/mo
Listing Courtesy of RE/MAX Escarpment Realty Inc.
Similar Homes ?Similar Homes — Search CriteriaSearch Radius5 kmPrice Range±5%Match Home TypeYesMatch BedroomsYes

1345 MAIN Street, Hamilton
Other$749,900
$5,855/yr taxListing Courtesy of RE/MAX Escarpment Golfi Realty Inc.

39 TALBOT Street W, Cayuga
Other$752,000
$8,327/yr taxListing Courtesy of RE/MAX Escarpment Realty Inc.

19 KING Street W, Hagersville
Other$724,900
$8,762/yr taxListing Courtesy of Rock Star Real Estate Inc.

87 BLANDFORD Street, Innerkip
Other$719,999
$3,400/yr taxListing Courtesy of REVEL Realty Inc., Brokerage
Similar Properties ?Active Comparables — Search CriteriaSearch Radius2 kmPrice Range±5%Match Home TypeYesMatch BedroomsYes
No active comparables found in this area.

135 JAMES Street N, Hamilton
Other$6,000/mo
$20,984/yr taxListing Courtesy of RE/MAX Escarpment Frank Realty

51 AUGUSTA Street, Hamilton
Other$5,295/mo
Listing Courtesy of RE/MAX Escarpment Realty Inc.

10 SANFORD Avenue N, Hamilton
Other$3,800/mo
Listing Courtesy of RE/MAX Escarpment Realty Inc.

25 KING WILLIAM Street Unit# 2, Hamilton
Other$3,200/mo
Listing Courtesy of City Brokerage

208 KING Street E Unit# 2, Hamilton
Other$3,120/mo
Listing Courtesy of Corcoran Horizon Realty

135 JAMES Street N Unit# 3, Hamilton
Other$2,800/mo
$20,984/yr taxListing Courtesy of RE/MAX Escarpment Frank Realty

93 JOHN Street S Unit# 1, Hamilton
Other$2,800/mo
Listing Courtesy of eXp Realty

859 KING Street E Unit# 102, Hamilton
Other$2,125/mo
Listing Courtesy of RE/MAX Escarpment Realty Inc.

135 JAMES Street N Unit# 2, Hamilton
Other$1,900/mo
Listing Courtesy of RE/MAX Escarpment Frank Realty

707 BARTON Street E, Hamilton
Other$1,650/mo
Listing Courtesy of RE/MAX Escarpment Realty Inc.

208 KING Street E Unit# 1, Hamilton
Other$1,650/mo
Listing Courtesy of Corcoran Horizon Realty

135 JAMES Street N Unit# 1, Hamilton
Other$1,600/mo
Listing Courtesy of RE/MAX Escarpment Frank Realty

57 JOHN Street S Unit# 2, Hamilton
Other$1,100/mo
Listing Courtesy of Waterside Real Estate Group

15 WELLINGTON Street N Unit# B2, Hamilton
Other$400/mo
Listing Courtesy of Corcoran Horizon Realty
Sold Comparables
Access to sold property data requires a registered and verified account with TRREB DDF integration.
Coming SoonRented Comparables
Access to rented property data requires a registered and verified account with TRREB DDF integration.
Coming SoonBook a Viewing
44 FRANCIS Street, Hamilton, Ontario, L8L3V3
