51 AUGUSTA Street, Hamilton, Ontario, L8N1P8
MLS: 40747678 | Other
$5,495.00 / monthly


















































Property Description
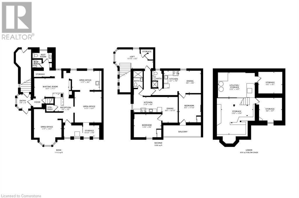
Amazing opportunity with this beautiful 3-unit building located just steps from trendy James St and the new GO Station. 2,926sf total space including 808sf of storage in the basement, 1112sf on the main level and another 1006sf on the 2nd floor. Must be toured to see the endless possibilities for a large single Tenant, a live-work set up or a 3 unit investment property. A few minutes walk to the beautiful Hamilton Harbour and the Bayfront. Located on the main Bus Route. Currently set up as 2 residential renovated units and 1 commercial storefront. Units are separately metered and tenants pay their Gas and Electricity. If you are looking for options for your professional office/retail space, this is it! Be in the heart of the action near great restaurants, law firms, medical facilities and more. The property is also listed for sale and a lease-to-own option available for qualified applicants. (id:64974)
Quick Facts
- Property Type: Other
- Bedrooms: None
- Bathrooms: None
- Living Area: 2,926 sq ft (271.8 m²)
- Ownership: Freehold
- Frontage: 38 ft (11.6 m)
Listing Provided by: RE/MAX Escarpment Realty Inc.
Board: Cornerstone Association of REALTORS®
Data provided via CREA DDF®.
Detailed Features
Interior & Systems
- Basement: Partial
- Appliances: Washer, Stove, Dryer
Exterior & Construction
- Exterior: Brick
- Foundation: Block
- Sewer: Municipal sewage system
- Water: Municipal water
Lot & Land
- Frontage: 38 ft (11.6 m)
- Zoning: C5
Community & Neighbourhood
- Community: High Traffic Area
- Subdivision: 142 - Corktown
Listing Information
Listing History
Buy/Sell/Terminated/Expired listing history for 51 AUGUSTA Street, Hamilton, Ontario, L8N1P8
Location & Neighborhood
🚗 Travel times
Neighborhood Walkability
Mortgage & Cost Calculators
Nearby Homes (Within 2km)
Similar Homes
Similar Properties
Sold Comparables
Access to sold property data requires a registered and verified account with TRREB DDF integration.
Coming SoonRented Comparables
Access to rented property data requires a registered and verified account with TRREB DDF integration.
Coming Soon





























