51 AUGUSTA Street, Hamilton, Ontario, L8N1P8
MLS: 40747705 | Other
$899,900


















































Property Description
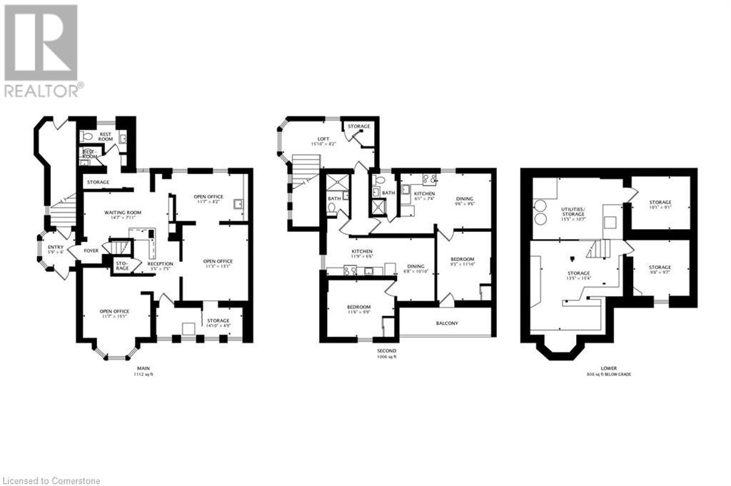
Amazing opportunity with this beautiful 3-unit building located just steps from trendy James St and the new GO Station. 2,926sf total space including 808sf of storage in the basement, 1112sf on the main level and another 1006sf on the 2nd floor. Must be toured to see the endless possibilities for a large single Tenant, a live-work set up or a 3 unit investment property. A few minutes walk to the beautiful Hamilton Harbour and the Bayfront. Located on the main Bus Route. Currently set up as 2 residential renovated units and 1 commercial storefront. Units are separately metered and Tenants pay their Gas and Electricity. If you are looking for options for your professional office/retail space, this is it! Be in the heart of the action near great restaurants, law firms, medical facilities and more. Financing support available for qualified applicants. (id:64974)
Quick Facts
- Property Type: Other
- Bedrooms: None
- Bathrooms: None
- Living Area: 2,926 sq ft (271.8 m²)
- Ownership: Freehold
- Frontage: 38 ft (11.6 m)
Costs
- Annual Taxes: $11,411.03
Listing Provided by: RE/MAX Escarpment Realty Inc.
Board: Cornerstone Association of REALTORS®
Data provided via CREA DDF®.
Detailed Features
Interior & Systems
- Basement: Partial
- Appliances: Washer, Refrigerator, Stove, Dryer
Exterior & Construction
- Exterior: Brick
- Foundation: Block
- Sewer: Municipal sewage system
- Water: Municipal water
Lot & Land
- Frontage: 38 ft (11.6 m)
- Zoning: C5
Community & Neighbourhood
- Community: High Traffic Area
- Subdivision: 142 - Corktown
Listing Information
Listing History
MLS listing activity for 51 AUGUSTA Street, Hamilton, Ontario, L8N1P8 — dates reflect when changes were recorded in the DDF
Location & Neighborhood
🚗 Travel times
Neighborhood Walkability
Mortgage & Cost Calculators
Nearby Homes ?Nearby Homes — Search CriteriaSearch Radius1 kmPrice Range±30%Match BedroomsNoMatch BathroomsNo

175 JOHN Street S, Hamilton
Other$665,000
$8,162/yr taxListing Courtesy of Royal LePage Burloak Real Estate Services

93 JOHN Street S, Hamilton
Other$850,000
$15,336/yr taxListing Courtesy of eXp Realty

196 WALNUT Street S, Hamilton
House$679,900
$4,031/yr taxListing Courtesy of RE/MAX Escarpment Realty Inc.

112 KING Street E Unit# PH6, Hamilton
Condo - Apartment$860,964
$11,723/yr taxListing Courtesy of Keller Williams Edge Hearth & Home Realty

112 E KING ST E/S Street, Hamilton
Condo - Apartment$659,900
$5,185/yr taxListing Courtesy of CASORA REALTY INC.

112 KING Street E Unit# PH4, Hamilton
Condo - Apartment$889,000
$10,026/yr taxListing Courtesy of Royal LePage State Realty Inc.

49 ROBINSON Street Unit# 200, Hamilton
Condo - Apartment$748,800
$5,960/yr taxListing Courtesy of Bradbury Estate Realty Inc.

46 HERKIMER Street Unit# 2, Hamilton
Condo - Apartment$749,990
$4,929/yr taxListing Courtesy of eXp Realty

90 CHARLTON Avenue W Unit# 804, Hamilton
Condo - Apartment$745,000
$8,429/yr taxListing Courtesy of Royal LePage State Realty Inc.

90 CHARLTON Avenue W Unit# PH1, Hamilton
Condo - Apartment$899,900
$11,019/yr taxListing Courtesy of RE/MAX Escarpment Realty Inc.
Similar Homes ?Similar Homes — Search CriteriaSearch Radius5 kmPrice Range±5%Match Home TypeYesMatch BedroomsYes

299 JAMES Street N, Hamilton
Other$879,900
$9,838/yr taxListing Courtesy of RE/MAX Escarpment Realty Inc.

23 Highway 105, Red Lake
Other$899,900
$14,966/yr taxListing Courtesy of RED LAKE REALTY LTD

401 MAIN Street, Port Dover
Other$899,900
$7,202/yr taxListing Courtesy of RE/MAX Erie Shores Realty Inc. Brokerage

660 Orpington Road, Peterborough, ON K9J 4A4, Peterborough
Other$899,900
$7,006/yr taxListing Courtesy of REALTY GUYS INC.

2002 Ocean Test Lane, Turks Caicos Island, ON M1M 1M1, Turks Caicos Island
Other$900,000
$5,000/yr taxListing Courtesy of BOARD REALM TEST OFFICE

209 MAIN Street, Port Dover
Other$899,000
$5,658/yr taxListing Courtesy of RE/MAX Erie Shores Realty Inc. Brokerage

335 3rd Avenue W, Owen Sound, ON N4K 6Y9, Owen Sound
Other$895,000
$8,419/yr taxListing Courtesy of Royal LePage RCR Realty

1789 NOTRE DAME Drive, St. Agatha
Other$880,000
$8,358/yr taxListing Courtesy of Re/Max Icon Realty

362 PLAINS Road E Unit# 32, Burlington
Condo$879,999
$6,742/yr taxListing Courtesy of Royal LePage Burloak Real Estate Services

5631 Highway 30 Highway, Trent Hills, ON K0L 1L0, Trent Hills
Other$879,990
$5,185/yr taxListing Courtesy of KINGSWAY REAL ESTATE
Property Comparables ?Active Comparables — Search CriteriaSearch Radius2 kmPrice Range±15%Match Home TypeYesMatch BedroomsYes

299 JAMES Street N, Hamilton
Other$879,900
$9,838/yr taxListing Courtesy of RE/MAX Escarpment Realty Inc.

93 JOHN Street S, Hamilton
Other$850,000
$15,336/yr taxListing Courtesy of eXp Realty

201 N JAMES Street N, Hamilton
Other$999,000
$13,610/yr taxListing Courtesy of Right at Home Realty

455 KING Street E, Hamilton
Other$799,900
$13,090/yr taxListing Courtesy of Keller Williams Complete Realty

453 KING Street E, Hamilton
Other$799,000
$7,000/yr taxListing Courtesy of RE/MAX Escarpment Realty Inc.

135 JAMES Street N, Hamilton
Other$6,000/mo
$20,984/yr taxListing Courtesy of RE/MAX Escarpment Frank Realty

22 WILSON Street Unit# 2, Hamilton
Other$4,305/mo
Listing Courtesy of Corcoran Horizon Realty

10 SANFORD Avenue N, Hamilton
Other$3,800/mo
Listing Courtesy of RE/MAX Escarpment Realty Inc.

22 WILSON Street Unit# 1, Hamilton
Other$3,745/mo
Listing Courtesy of Corcoran Horizon Realty

25 KING WILLIAM Street Unit# 2, Hamilton
Other$3,200/mo
Listing Courtesy of City Brokerage

208 KING Street E Unit# 2, Hamilton
Other$3,120/mo
Listing Courtesy of Corcoran Horizon Realty

93 JOHN Street S Unit# 1, Hamilton
Other$2,800/mo
Listing Courtesy of eXp Realty

250 KING Street W, Hamilton
Other$2,800/mo
$2,314/yr taxListing Courtesy of eXp Realty, Brokerage

135 JAMES Street N Unit# 3, Hamilton
Other$2,800/mo
$20,984/yr taxListing Courtesy of RE/MAX Escarpment Frank Realty

145 LOCKE Street S, Hamilton
Other$1,950/mo
Listing Courtesy of Right at Home Realty

135 JAMES Street N Unit# 2, Hamilton
Other$1,900/mo
Listing Courtesy of RE/MAX Escarpment Frank Realty

208 KING Street E Unit# 1, Hamilton
Other$1,650/mo
Listing Courtesy of Corcoran Horizon Realty

135 JAMES Street N Unit# 1, Hamilton
Other$1,600/mo
Listing Courtesy of RE/MAX Escarpment Frank Realty

57 JOHN Street S Unit# 2, Hamilton
Other$1,100/mo
Listing Courtesy of Waterside Real Estate Group

283 MAIN Street W Unit# 2, Hamilton
Other$600/mo
Listing Courtesy of Castellano Real Estate Inc.
No sold comparables found at this radius. Zoom out on the map to broaden the search area.
No leased comparables found. Rented data requires TRREB DDF integration; the map and search will populate automatically once enabled.
Book a Viewing
51 AUGUSTA Street, Hamilton, Ontario, L8N1P8













