401 MAIN Street, Port Dover, Ontario, N0A1N0
MLS: 40797987 | Other
$899,900






























Property Description
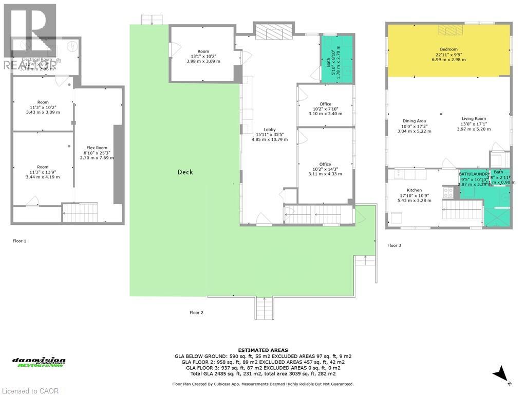
This professional office building in the heart of Port Dover, offers unparalleled visibility in a high-traffic area with exposure on two streets. Its prime location makes it an ideal opportunity for businesses looking to maximize accessibility and brand presence. Live upstairs and lease the main floor. The property features a spacious studio apartment, perfect for owner occupancy or rental income, and a huge outdoor composite deck that provides a great space for meetings, breaks, or entertaining. With eight dedicated parking spaces, convenience is guaranteed for both staff and clients—an asset rarely found in such a sought-after location. With its versatile layout, excellent amenities, and unbeatable positioning, this property is ready to take your business to the next level. Don’t miss out on this incredible opportunity—check out the virtual tour & schedule a viewing today! (id:64974)
Quick Facts
- Property Type: Other
- Bedrooms: None
- Bathrooms: None
- Living Area: 2,015 sq ft (187.2 m²)
- Ownership: Freehold
- Parking: 5 spaces
- Frontage: 66 ft (20.1 m)
Costs
- Annual Taxes: $7,202.00
Listing Provided by: RE/MAX Erie Shores Realty Inc. Brokerage
Board: Cornerstone Association of REALTORS®
Data provided via CREA DDF®.
Detailed Features
Interior & Systems
- Basement: Full
- Utilities: Electricity
Exterior & Construction
- Sewer: Municipal sewage system
- Water: Municipal water
Lot & Land
- Frontage: 66 ft (20.1 m)
- Zoning: CBD
Community & Neighbourhood
- Subdivision: Port Dover
Listing Information
Listing History
Buy/Sell/Terminated/Expired listing history for 401 MAIN Street, Port Dover, Ontario, N0A1N0
Location & Neighborhood
🚗 Travel times
Neighborhood Walkability
Mortgage & Cost Calculators
Nearby Homes (Within 2km)
Similar Homes
Similar Properties
No rental comparables found in this area.
Sold Comparables
Access to sold property data requires a registered and verified account with TRREB DDF integration.
Coming SoonRented Comparables
Access to rented property data requires a registered and verified account with TRREB DDF integration.
Coming Soon


























