LOT 10 DUCHARME, Essex, Ontario, N0R1J0
MLS: 26002983 | House (Freehold)
$799,900


Property Description
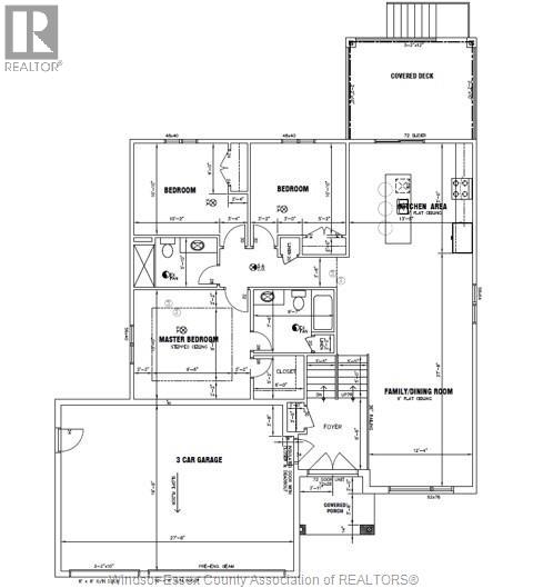
Built with exceptional attention to detail, this brand-new raised ranch by Gosselin Homes showcases a level of finish quality that stands out from typical new construction. This builder is quickly gaining recognition for thoughtful design, superior workmanship, and elevated finishes throughout. This impressive 3-bedroom, 2-bath home offers a bright, open-concept layout highlighted by engineered hardwood flooring and a spacious main living area ideal for both everyday living and entertaining. The kitchen is designed as the heart of the home, seamlessly connecting to the living and dining spaces. The primary suite delivers a true retreat experience with a spa-inspired ensuite featuring heated floors and a striking custom tile shower. A rare triple-car garage and wide driveway provide exceptional parking, storage, and workspace flexibility. The convenient grade entrance and full unfinished basement offer outstanding potential for future additional living space or customization to suit your needs. Gosselin Homes is quickly establishing a reputation for building residences that exceed expectations, making this property an excellent opportunity to own a brand-new home where quality and craftsmanship are clearly evident from the moment you walk in. (id:64974)
Quick Facts
- Property Type: House (Freehold)
- Style: Raised ranch
- Bedrooms: 3 (3 above)
- Bathrooms: 2
- Ownership: Freehold
- Attached: No
Listing Provided by: PINNACLE PLUS REALTY LTD.
Board: Windsor-Essex County Association of REALTORS®
Data provided via CREA DDF®.
Detailed Features
Interior & Systems
- Heating: Forced air, Natural gas
- Cooling: Central air conditioning
- Flooring: Hardwood, Ceramic/Porcelain
Exterior & Construction
- Style: Raised ranch
- Exterior: Stone, Aluminum/Vinyl
- Foundation: Concrete
Lot & Land
- Features: Double width or more driveway, Front Driveway, Gravel Driveway
- Zoning: RES
Room Details (9 rooms)
Listing Information
Listing History
Buy/Sell/Terminated/Expired listing history for LOT 10 DUCHARME, Essex, Ontario, N0R1J0
Location & Neighborhood
🚗 Travel times
Neighborhood Walkability
Mortgage & Cost Calculators
Nearby Homes (Within 2km)
Similar Homes
Similar Properties
Sold Comparables
Access to sold property data requires a registered and verified account with TRREB DDF integration.
Coming SoonRented Comparables
Access to rented property data requires a registered and verified account with TRREB DDF integration.
Coming Soon



























