198 WELLAND STREET, Port Colborne (East Village), Ontario, L3K5V8
MLS: X12381094 | Offices
$1,490,000














Property Description
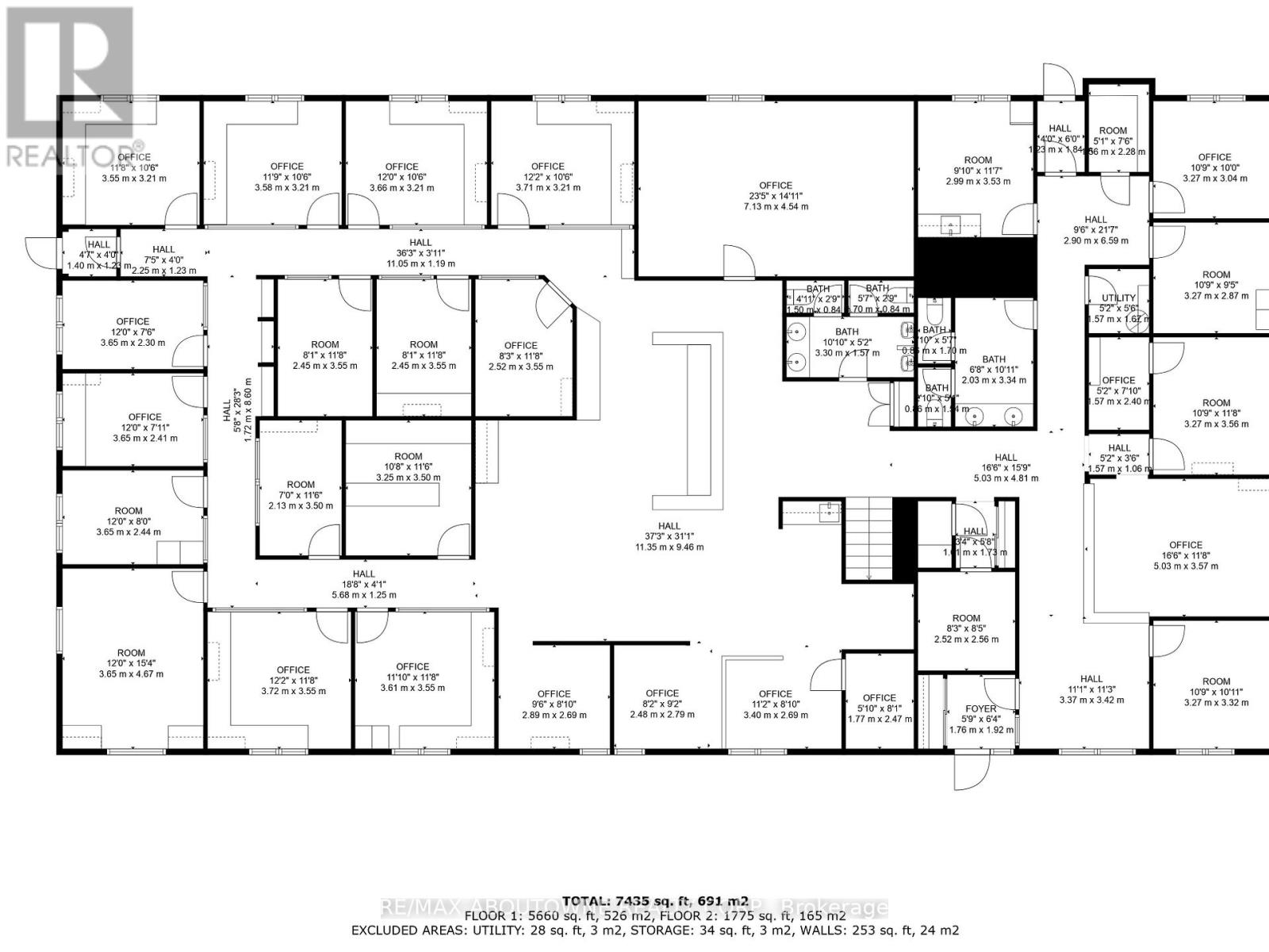
Very well located light Industrial zoned, 2-storey office building with 25 offices. Large Paved Parking area approximately 40 parking spaces and option for outside storage. Building measures approximately 7,435 Sq. Ft. with additional portable out back measuring 20 ft x 40 ft. The City is very supportive of improving the neighbourhood Cruise ship tourists (more than 70 scheduled stops per season). Many incentive programs for businesses. Excellent opportunity to invest in Niagara. Cruise ships stopping included Viking, Victory, Pearl Seas and Ponant. (id:64974)
Quick Facts
- Property Type: Offices
- Bedrooms: None
- Bathrooms: 3
- Living Area: 7,435 sq ft (690.7 m²)
- Parking: 40 spaces
- Frontage: 302 ft (92 m)
Costs
- Annual Taxes: $13,595.00
Listing Provided by: RE/MAX ABOUTOWNE REALTY CORP.
Board: Toronto Regional Real Estate Board
Data provided via CREA DDF®.
Detailed Features
Interior & Systems
- Heating: Forced air, Natural gas
- Cooling: Fully air conditioned
Exterior & Construction
- Water: Municipal water
Lot & Land
- Frontage: 302 ft (92 m)
- Zoning: Light Industrial
Community & Neighbourhood
- Neighbourhood: 876 - East Village
Listing Information
Listing History
Buy/Sell/Terminated/Expired listing history for 198 WELLAND STREET, Port Colborne (East Village), Ontario, L3K5V8
Location & Neighborhood
🚗 Travel times
Neighborhood Walkability
Mortgage & Cost Calculators
Nearby Homes (Within 2km)
Similar Homes
Similar Properties
No rental comparables found in this area.
Sold Comparables
Access to sold property data requires a registered and verified account with TRREB DDF integration.
Coming SoonRented Comparables
Access to rented property data requires a registered and verified account with TRREB DDF integration.
Coming Soon



























