50836 O'REILLY'S ROAD S, Wainfleet (Marshville/Winger), Ontario, L0S1V0
MLS: X12694068 | House (Freehold)
$1,499,900



















































Property Description
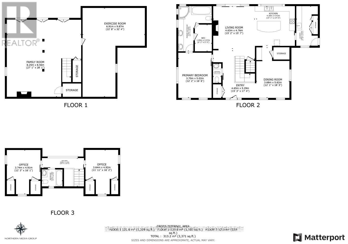
Welcome to paradise! Take all your staycations at home! This spectacular 2.54 acre property allows you to escape the hustle and bustle of the world and go home to paradise! Quality built 2,135 square foot, 1 1/2 storey home featuring designer kitchen, butler's pantry, formal dining room and bright cozy living room with floor to ceiling propane fireplace. Walk out from the living room to the back porch area featuring a gazebo and 3-season sunroom, both overlooking the saltwater inground pool. Pool liner replaced in 2024 and pump replaced in 2023. Main floor primary bedroom suite with walk-in-closet and luxurious 5 pce bathroom with glass enclosed stand up shower, large soaker tub, make-up vanity and double sinks. Upstairs are two additional bedrooms with a 4pce bathroom. On the lower level is a large family room, games room and built-in bar. An abundance of storage areas on this level with walk up entrance to attached garage. This home is tastefully decorated and attention to detail is evident throughout. Loads of storage for vehicles and outdoor toys with a 2 1/2 car attached garage and a large 28' x 32' detached shop. A/C replaced in June 2025. Railroad tracks to the North are not active, they are used for occasional railcar storage by GIO Rail. Don't miss this beautiful country opportunity! (id:64974)
Quick Facts
- Property Type: House (Freehold)
- Bedrooms: 3 (3 above)
- Bathrooms: 3 (1 half)
- Ownership: Freehold
- Attached: No
- Fireplaces: Yes
- Parking: 8 spaces (Attached Garage, Garage)
- Frontage: 306 ft (93.3 m)
Costs
- Annual Taxes: $10,819.00 (2025)
Listing Provided by: RE/MAX NIAGARA REALTY LTD, BROKERAGE
Board: Niagara Association of REALTORS®
Data provided via CREA DDF®.
Detailed Features
Interior & Systems
- Heating: Forced air, Propane
- Cooling: Central air conditioning
- Basement: Partially finished, Separate entrance, N/A, N/A
- Appliances: Washer, Refrigerator, Central Vacuum, Dishwasher, Wine Fridge, Stove, Range, Oven, Dryer, Microwave, Cooktop, Oven - Built-In, Window Coverings, Garage door opener remote(s)
- Flooring: Hardwood
Exterior & Construction
- Exterior: Wood, Brick
- Foundation: Concrete
- Sewer: Septic System
- Water: Cistern
Lot & Land
- Frontage: 306 ft (93.3 m)
- Pool: Inground pool
- Zoning: A2
Community & Neighbourhood
- Community: School Bus
- Building: Fireplace(s)
- Neighbourhood: 879 - Marshville/Winger
Room Details (8 rooms)
Listing Information
Listing History
Buy/Sell/Terminated/Expired listing history for 50836 O'REILLY'S ROAD S, Wainfleet (Marshville/Winger), Ontario, L0S1V0
Location & Neighborhood
🚗 Travel times
Neighborhood Walkability
Mortgage & Cost Calculators
Nearby Homes (Within 2km)
Similar Homes
Similar Properties
No rental comparables found in this area.
Sold Comparables
Access to sold property data requires a registered and verified account with TRREB DDF integration.
Coming SoonRented Comparables
Access to rented property data requires a registered and verified account with TRREB DDF integration.
Coming Soon

























