198 WELLAND STREET, Port Colborne (East Village), Ontario, L3K5V8
MLS: X12381581 | Offices
$18.00 / square feet














Property Description
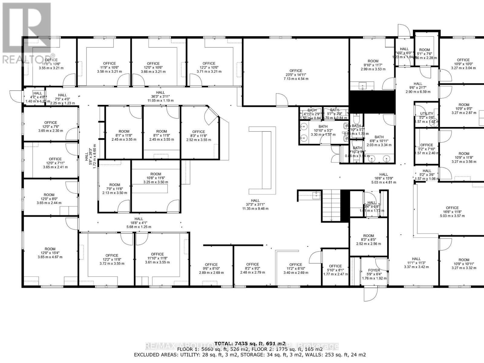
East Village | Canal Side Flex Office/Industrial at the SW corner of Clarence St & Welland St steps to the Welland Canal. The property offers ~ 8,000 sf across two levels with ~25 private offices, collaboration rooms and a paved onsite lot. Paved parking area for 30+ vehicles. Current layout supports office, professional services, technical trades, training/education and light industrial users. The Light Industrial zoning is exceptionally versatile, allowing contractors yard, light industry, education facility, motor vehicle repair, research facility, and accessory office/retail/restaurant options, among others. City is very supportive of improving the area. The location benefits from Port Colborne's record cruise season (70+ stops Apr - Oct) and continued waterfront activity. Well built free standing building. (id:64974)
Quick Facts
- Property Type: Offices
- Bedrooms: None
- Bathrooms: 3
- Living Area: 7,435 sq ft (690.7 m²)
- Parking: 40 spaces
- Frontage: 7,435 ft (2266.2 m)
Costs
- Annual Taxes: $5.00
Listing Provided by: RE/MAX ABOUTOWNE REALTY CORP.
Board: Toronto Regional Real Estate Board
Data provided via CREA DDF®.
Detailed Features
Interior & Systems
- Heating: Forced air, Natural gas
- Cooling: Fully air conditioned
Exterior & Construction
- Water: Municipal water
Lot & Land
- Frontage: 7,435 ft (2266.2 m)
- Zoning: Light Industrial
Community & Neighbourhood
- Neighbourhood: 876 - East Village
Listing Information
Listing History
Buy/Sell/Terminated/Expired listing history for 198 WELLAND STREET, Port Colborne (East Village), Ontario, L3K5V8
Location & Neighborhood
🚗 Travel times
Neighborhood Walkability
Mortgage & Cost Calculators
Similar Properties
No active comparables found in this area.
Sold Comparables
Access to sold property data requires a registered and verified account with TRREB DDF integration.
Coming SoonRented Comparables
Access to rented property data requires a registered and verified account with TRREB DDF integration.
Coming Soon














