100 BURLAND Crescent Unit# B, Hamilton, Ontario, L8H7T5
MLS: 40796025 | Industrial
$13.00 / square feet

















Property Description
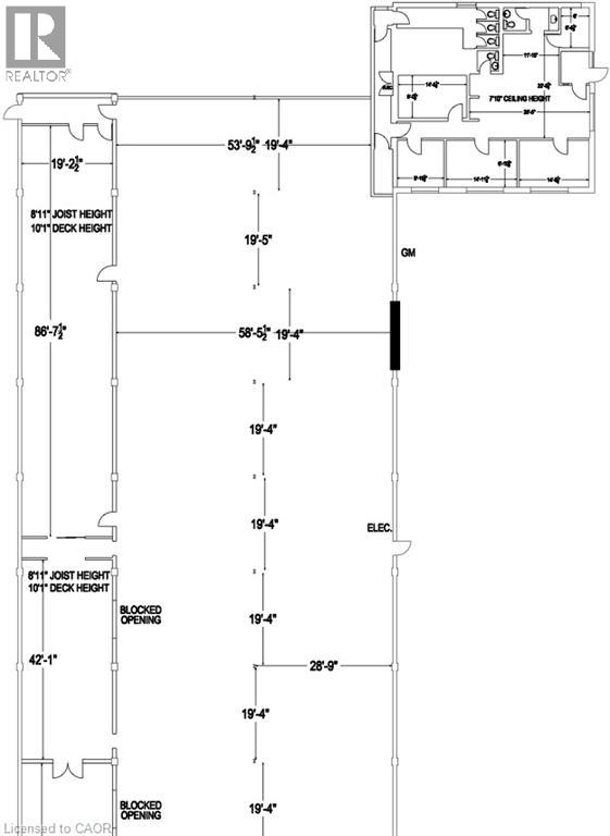
This expansive 12,900 sq ft industrial unit offers a robust set of features designed to accommodate a wide range of business operations. Key highlights include two powerful 5-ton overhead cranes, 100 Amp & 600 Volt electrical service, impressive ceiling heights reaching up to 17' 10, and a drive-in door. The property also boasts 1,900 sq ft of well-appointed office space, a secure, fenced-in yard, and ample parking for both staff and customers. Zoned M5 - General Industrial, this property is perfectly suited for manufacturing, production, warehousing, or service-related industries. Its prime location offers unbeatable convenience: just 4 minutes to the QEW, 4 minutes to the Red Hill Valley Parkway, 8 minutes to Burlington, and roughly midway between the U.S. border and Toronto—ensuring quick access to key transportation routes. Whether you're expanding or relocating, this property offers the flexibility and strategic location your business needs to thrive. (id:64974)
Quick Facts
- Property Type: Industrial
- Bedrooms: None
- Bathrooms: None
- Living Area: 12,931 sq ft (1,201.3 m²)
- Ownership: Freehold
- Frontage: 557 ft (169.8 m)
Listing Provided by: Realty Network
Board: Cornerstone Association of REALTORS®
Data provided via CREA DDF®.
Detailed Features
Interior & Systems
- Basement: None
- Utilities: Electricity
- Security: Unknown
Exterior & Construction
- Sewer: Municipal sewage system
- Water: Municipal water
Lot & Land
- Frontage: 557 ft (169.8 m)
- Features: Paved driveway
- Zoning: M5 - General Industrial
Community & Neighbourhood
- Subdivision: 230 - Parkview
Listing Information
Listing History
Buy/Sell/Terminated/Expired listing history for 100 BURLAND Crescent Unit# B, Hamilton, Ontario, L8H7T5
Location & Neighborhood
🚗 Travel times
Neighborhood Walkability
Mortgage & Cost Calculators
Similar Properties
No active comparables found in this area.
Sold Comparables
Access to sold property data requires a registered and verified account with TRREB DDF integration.
Coming SoonRented Comparables
Access to rented property data requires a registered and verified account with TRREB DDF integration.
Coming Soon














