, Ontario
MLS: X12832942 | Apartment (Condo)
$364,900

















































Property Description
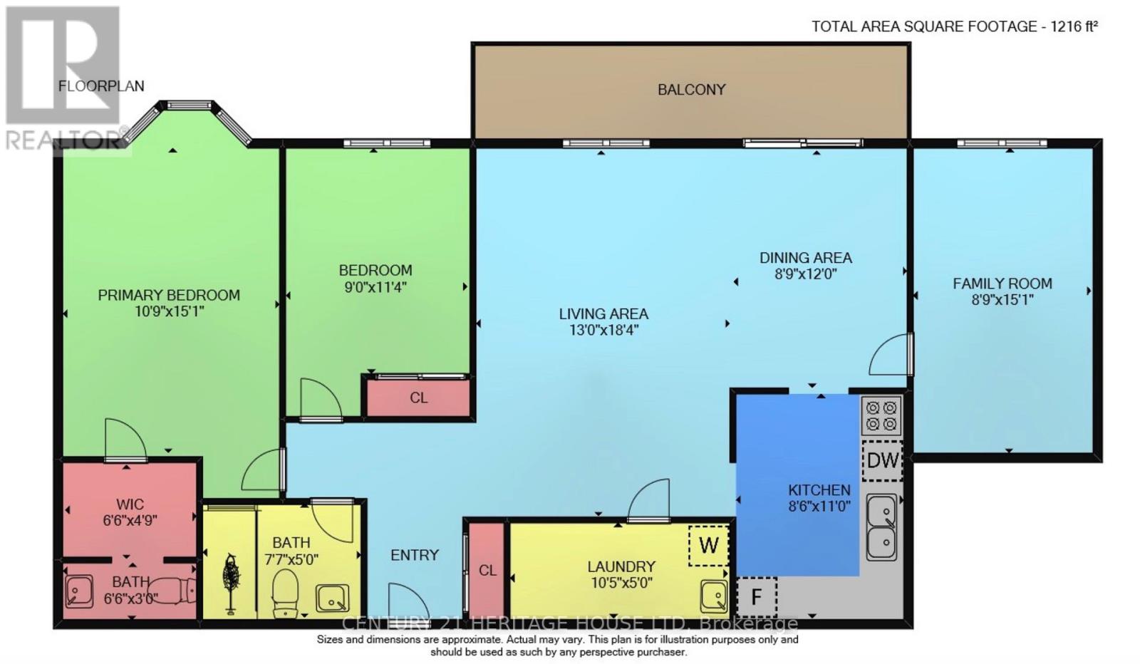
entrally located in Brantford's desirable north end close to shopping, schools, and highway access, this spacious 1,180 sq. ft. penthouse condo in Spruce Lane Condominiums is a rare offering. This bright 3-bedroom, 1.5-bath unit is completely carpet-free and designed for comfortable, low-maintenance living. Built in 1988, this well-designed layout offers generous principal rooms suited for families, downsizers, or investors alike. The functional kitchen features ample cabinetry and newer appliances. The primary bedroom offers a large bay window, walk-through closet, and private 2-piece ensuite. The third bedroom showcases custom oak wainscoting and would make an ideal home office. Updated furnace and A/C (2021) ensure year-round comfort. This well-maintained building provides excellent amenities including secure entry, fitness room, sauna, party/entertainment room, library, storage locker, garbage chute on every floor, and assigned parking. Condo fees include water, offering added value and predictable monthly expenses. (id:64974)
Quick Facts
- Property Type: Apartment (Condo)
- Bedrooms: 3 (3 above)
- Bathrooms: 2 (1 half)
- Ownership: Condo/Strata
- Attached: Yes
- Parking: 1 space (No Garage)
Costs
- Annual Taxes: $2,750.00 (2025)
- Condo/HOA Fee: $846.92 / monthly
- Corp: Wilson Blanchard
- Includes: Common Area Maintenance, Water, Insurance, Parking
Listing Provided by: CENTURY 21 HERITAGE HOUSE LTD
Board: Toronto Regional Real Estate Board
Data provided via CREA DDF®.
Detailed Features
Interior & Systems
- Heating: Baseboard heaters, Forced air, Not known, Electric
- Basement: None
- Appliances: Washer, Refrigerator, Dishwasher, Stove, Dryer, Water Treatment, Hood Fan
- Flooring: Laminate, Vinyl
Exterior & Construction
- Exterior: Concrete Block
Lot & Land
- Features: Elevator, Balcony, Carpet Free, In suite Laundry
- View: City view
- Zoning: RMR
Community & Neighbourhood
- Community: School Bus, Community Centre, Pets Allowed With Restrictions
- Building: Storage - Locker, Exercise Centre, Recreation Centre, Separate Electricity Meters, Party Room, Sauna, Visitor Parking
Room Details (9 rooms)
Listing Information
Listing History
Buy/Sell/Terminated/Expired listing history for , Ontario
Location & Neighborhood
🚗 Travel times
Neighborhood Walkability
Mortgage & Cost Calculators
Nearby Homes (Within 2km)
Similar Homes
Similar Properties
No rental comparables found in this area.
Sold Comparables
Access to sold property data requires a registered and verified account with TRREB DDF integration.
Coming SoonRented Comparables
Access to rented property data requires a registered and verified account with TRREB DDF integration.
Coming Soon
























