518 - 673 BRANT WATERLOO ROAD, North Dumfries, Ontario, N0B1E0
MLS: X12794218 | Mobile Home
$375,000


























Property Description
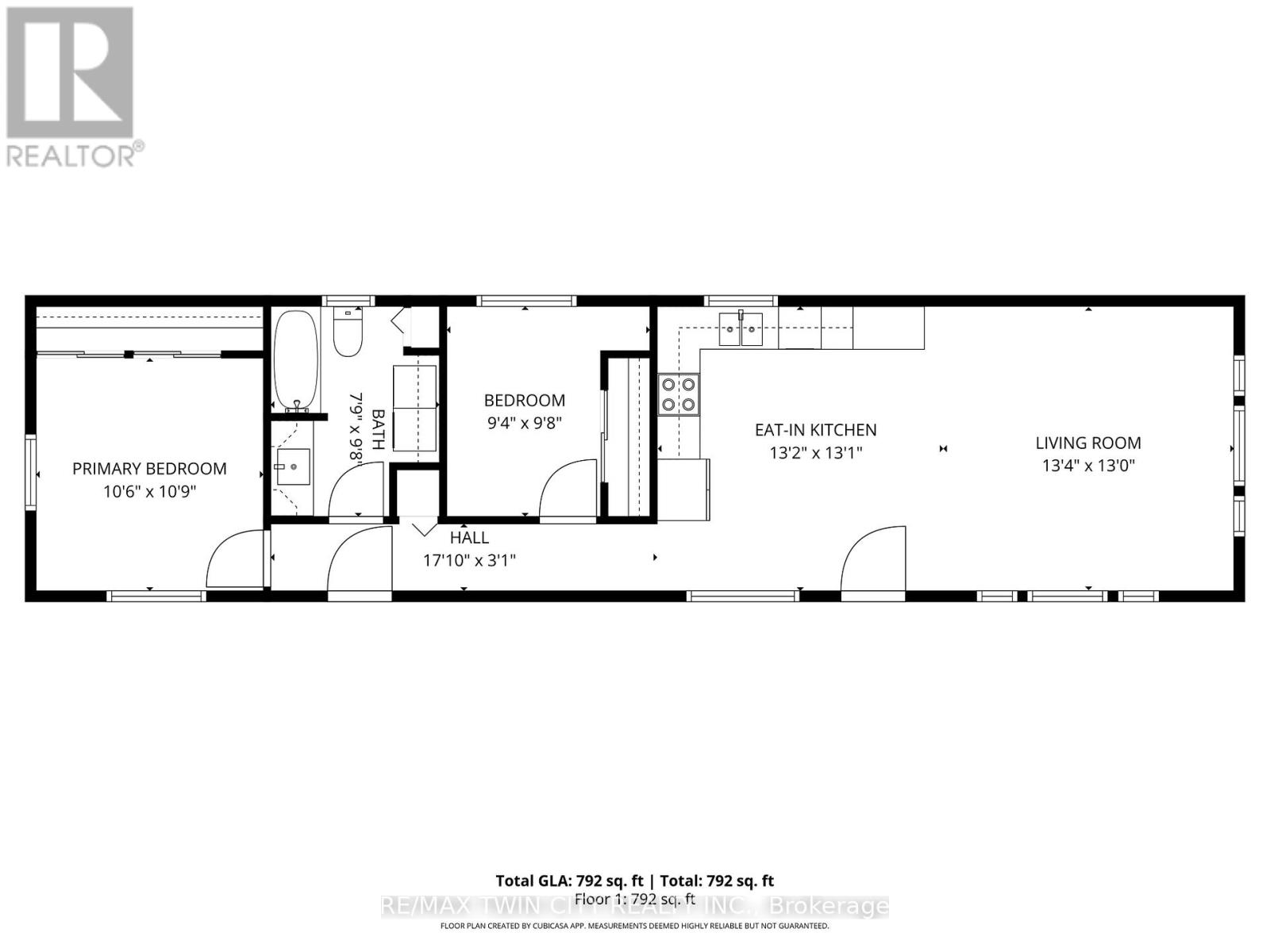
Welcome to Unit #518, a beautifully updated Northlander model offering the rare privilege of year-round living in the family-owned and operated Hillside Lake Park. Over the past few years, this home has undergone extensive renovations and presents a fresh, move-in-ready space to call your own. Step inside to find new vinyl plank flooring, fresh paint, upgraded lighting, and custom zebra blinds throughout. The stylish eat-in kitchen features upgraded cabinetry, stainless steel appliances, and a rough-in for a dishwasher. A spacious living room with two large windows fills the home with natural light, while the primary bedroom offers comfortable proportions right beside the 4-piece bathroom with in-suite laundry. A second bedroom or flex room makes the perfect spot for an office, craft space, or guest room. Outdoors, you'll love spending time on the massive 40' x 12' covered deck, complete with a 10' x 12' screened-in room-perfect for morning coffee or evening gatherings. The exterior of this home is surrounded by mature trees and features a fire pit, deck with gazebo, and two sheds for extra storage. Included in the sale are tons of extras such as outdoor furniture, shelving, firewood, and more! Very rarely do these year-round units come up for sale, especially ones with these upgrades, so DO NOT miss your chance! Book your showing today! [Monthly rent: $540.04 (additional fees apply)] (id:64974)
Quick Facts
- Property Type: Mobile Home
- Style: Bungalow
- Bedrooms: 2 (2 above)
- Bathrooms: 1
- Parking: 2 spaces (No Garage)
Listing Provided by: RE/MAX TWIN CITY REALTY INC.
Board: Toronto Regional Real Estate Board
Data provided via CREA DDF®.
Detailed Features
Interior & Systems
- Heating: Forced air, Electric
- Cooling: Central air conditioning
- Basement: None
- Appliances: Oven - Built-In
- Security: Controlled entry
Exterior & Construction
- Style: Bungalow
- Exterior: Vinyl siding
- Sewer: Septic System
Lot & Land
- Features: Conservation/green belt, Gazebo
Community & Neighbourhood
- Community: School Bus
Room Details (5 rooms)
Listing Information
Listing History
Buy/Sell/Terminated/Expired listing history for 518 - 673 BRANT WATERLOO ROAD, North Dumfries, Ontario, N0B1E0
Location & Neighborhood
🚗 Travel times
Neighborhood Walkability
Mortgage & Cost Calculators
Nearby Homes (Within 2km)
Similar Homes
Similar Properties
No rental comparables found in this area.
Sold Comparables
Access to sold property data requires a registered and verified account with TRREB DDF integration.
Coming SoonRented Comparables
Access to rented property data requires a registered and verified account with TRREB DDF integration.
Coming Soon
















