71 BARNES Avenue, Brantford, Ontario, N3R4Y9
MLS: 40797896 | House (Freehold)
$749,900

























Property Description
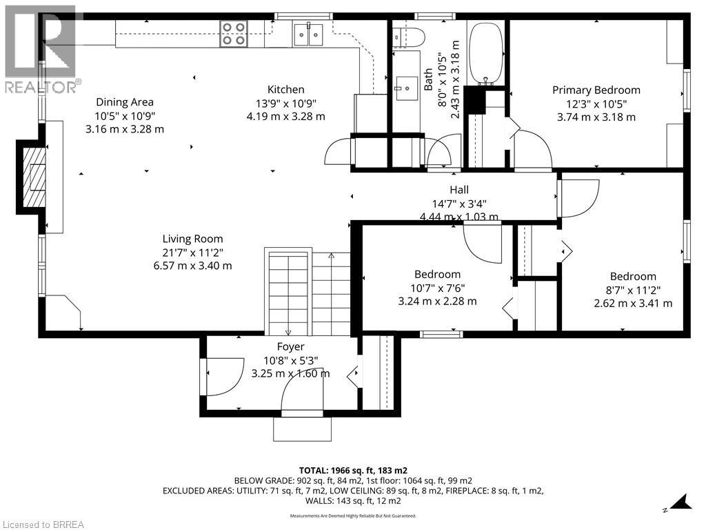
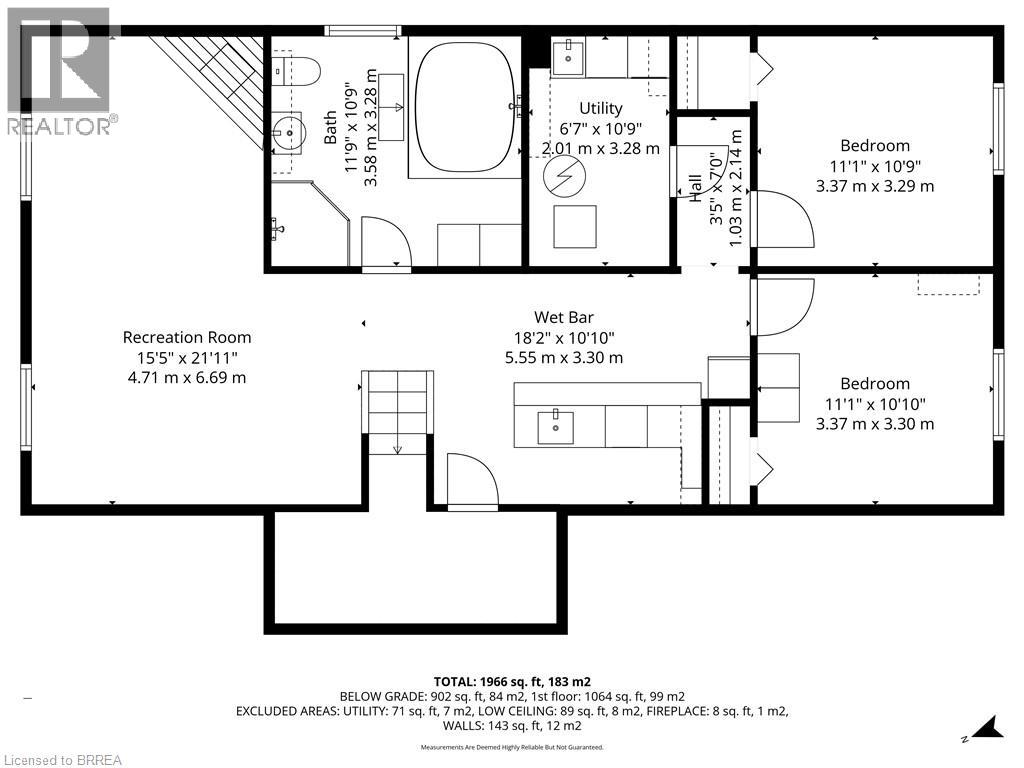
Welcome to this well-maintained raised bungalow located on a quiet cul-de-sac in the desirable Henderson / Carolina Park area of Brantford. Offering 5 bedrooms and 2 full bathrooms, this detached home provides flexible living space well suited to families, multi-generational households, or those needing room to work from home.The main level features an open-concept living and dining area with California shutters, creating a bright and comfortable space for everyday living. Three bedrooms and a full bathroom complete the upper level. The fully finished lower level adds two additional bedrooms, a second full bathroom, and a spacious recreation room featuring a gas fireplace. Just off the rec room is a bonus area with a wet bar, ideal for entertaining or creating a separate gathering space. New carpet has been installed throughout the basement. The lower-level bathroom includes a hot tub.Recent mechanical updates include a new furnace and air conditioning system installed in 2022. Exterior features include a detached double car garage plus an additional 14'10 x 19'3 workshop, offering excellent space for storage, hobbies, or a home-based workspace. The wide private driveway provides ample parking. Enjoy outdoor living on the covered 12' x 24' rear deck overlooking the landscaped yard. Located close to green spaces and Brantford's trail system, as well as schools, parks, public transit, and everyday amenities, this home offers a comfortable layout in a quiet, family-friendly neighbourhood ready to be enjoyed by its next owners. (id:64974)
Quick Facts
- Property Type: House (Freehold)
- Style: Raised bungalow
- Bedrooms: 5 (3 above, 2 below)
- Bathrooms: 2
- Living Area: 1,966 sq ft (182.6 m²)
- Above Grade: 1,064 sq ft (98.8 m²)
- Below Grade: 902 sq ft (83.8 m²)
- Year Built: 1996
- Ownership: Freehold
- Attached: No
- Parking: 10 spaces (Detached Garage)
- Lot Size: 0.1700 acres (0.07 ha)
- Frontage: 50 ft (15.2 m)
Costs
- Annual Taxes: $4,824.45
Listing Provided by: Royal LePage Action Realty
Board: Brantford Regional Real Estate Assn Inc
Data provided via CREA DDF®.
Detailed Features
Interior & Systems
- Heating: Forced air
- Cooling: Central air conditioning
- Basement: Finished, Full
- Appliances: Washer, Refrigerator, Hot Tub, Dishwasher, Stove, Dryer, Wet Bar, Microwave Built-in
- Utilities: Natural Gas, Electricity, Cable, Telephone
Exterior & Construction
- Style: Raised bungalow
- Exterior: Brick, Vinyl siding
- Sewer: Municipal sewage system
- Water: Municipal water
Lot & Land
- Lot Size: 0.1700 acres (0.07 ha)
- Frontage: 50 ft (15.2 m)
- Features: Cul-de-sac, Wet bar, Automatic Garage Door Opener
- Zoning: R1B
Community & Neighbourhood
- Community: Quiet Area, School Bus
- Subdivision: 2034 - Queensway/Grove
Room Details (14 rooms)
Listing Information
Listing History
Buy/Sell/Terminated/Expired listing history for 71 BARNES Avenue, Brantford, Ontario, N3R4Y9
Location & Neighborhood
🚗 Travel times
Neighborhood Walkability
Mortgage & Cost Calculators
Nearby Homes (Within 2km)
Similar Homes
Similar Properties
No rental comparables found in this area.
Sold Comparables
Access to sold property data requires a registered and verified account with TRREB DDF integration.
Coming SoonRented Comparables
Access to rented property data requires a registered and verified account with TRREB DDF integration.
Coming Soon





















