951 STOLLAR PLACE, Midland, Ontario, L4R0A6
MLS: S12978136 | House (Freehold)
$895,000
































Property Description
Welcome to this beautifully built bungalow at 951 Stollar Place, in one of Midland's most desirable neighbourhoods. Offering the perfect blend of modern living and a peaceful, private community setting just minutes from local amenities. This well-maintained home features a bright, open-concept main floor with large windows that allow for an exceptional view out over little lake and fill the space with natural light, creating a warm and inviting atmosphere ideal for both everyday living and entertaining. The walk-out basement is currently unfinished, providing a great opportunity to customize the space to suit your needs, with excellent in-law suite potential or room to expand your living area. Whether you're looking to downsize, invest, or find a comfortable family home, this property offers exceptional value in a sought-after neighbourhood. Don't miss this opportunity! (id:64974)
Quick Facts
- Property Type: House (Freehold)
- Style: Bungalow
- Bedrooms: 3 (3 above)
- Bathrooms: 2
- Ownership: Freehold
- Attached: No
- Fireplaces: 1
- Parking: 6.0 spaces (Attached Garage, Garage)
- Frontage: 60 ft (18.3 m)
Costs
- Annual Taxes: $6,160.00 (2026)
Listing Provided by: Real Broker Ontario Ltd.
Board: OnePoint Association of REALTORS®
Data provided via CREA DDF®.
Detailed Features
Interior & Systems
- Heating: Forced air, Natural gas
- Cooling: Central air conditioning
- Basement: Unfinished, Full, Walk out, N/A, N/A
- Appliances: Washer, Refrigerator, Dishwasher, Stove, Dryer, Microwave
- Flooring: Tile, Hardwood
- Utilities: Sewer, Electricity, Cable
- Security: Smoke Detectors
Exterior & Construction
- Style: Bungalow
- Exterior: Brick, Stone
- Foundation: Poured Concrete
- Sewer: Sanitary sewer
- Water: Municipal water
Lot & Land
- Frontage: 60 ft (18.3 m)
- Features: Carpet Free
- View: Lake view, View of water
- Zoning: R1-2
Community & Neighbourhood
- Building: Fireplace(s)
- Neighbourhood: Midland
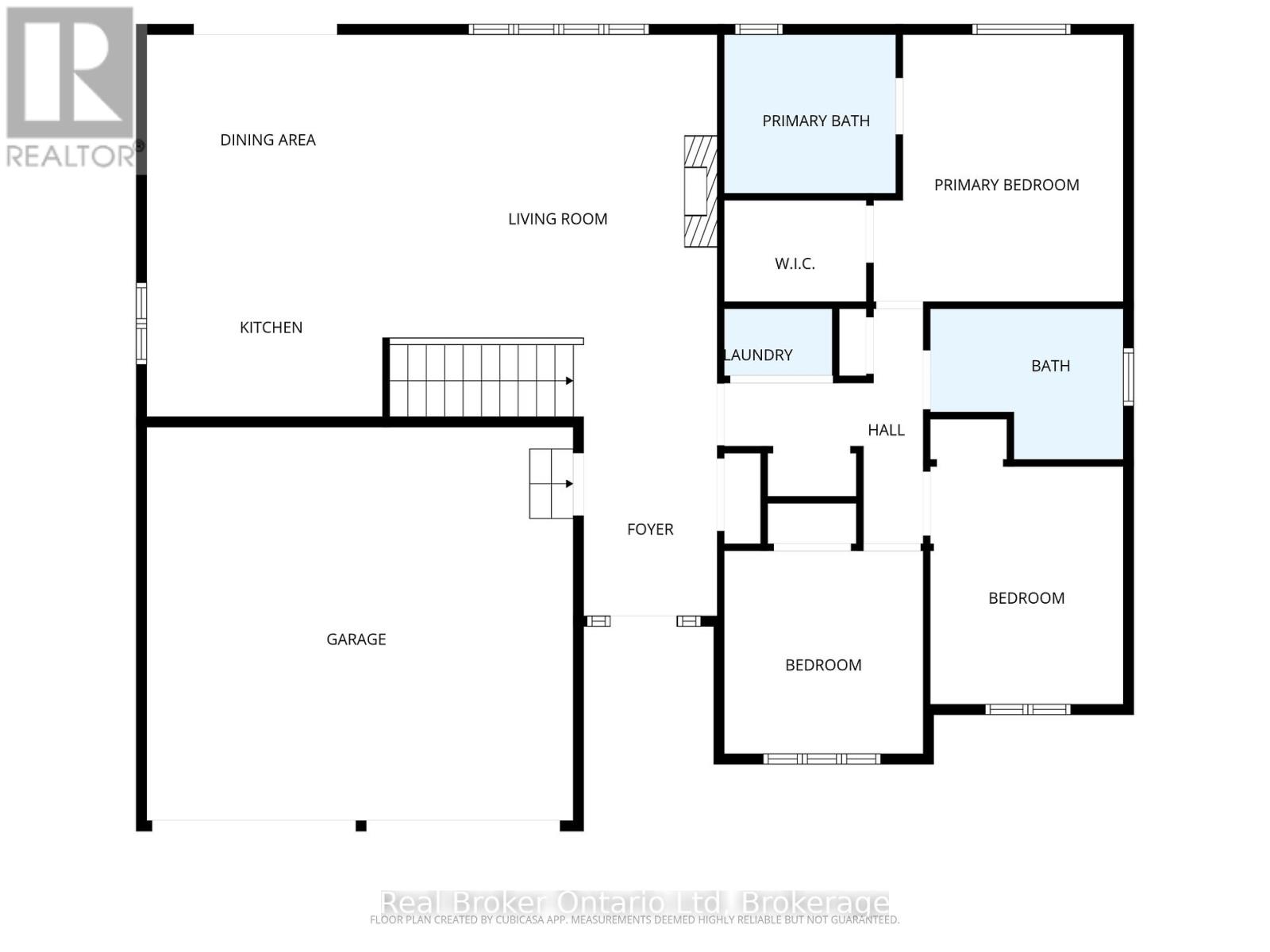
Room Details (7 rooms)
Listing Information
Listing History
MLS listing activity for 951 STOLLAR PLACE, Midland, Ontario, L4R0A6 — dates reflect when changes were recorded in the DDF
Location & Neighborhood
🚗 Travel times
Neighborhood Walkability
Mortgage & Cost Calculators
Nearby Homes ?Nearby Homes — Search CriteriaSearch Radius1 kmPrice Range±5%Match BedroomsYesMatch BathroomsYes

299 FIFTH STREET, Midland
House$895,000
$4,256/yr taxListing Courtesy of RE/MAX Georgian Bay Realty Ltd

939 STOLLAR PLACE, Midland
House$829,900
$5,200/yr taxListing Courtesy of Keller Williams Experience Realty

495 SHEWFELT CRESCENT, Midland
House$749,777
$4,702/yr taxListing Courtesy of RE/MAX Georgian Bay Realty Ltd

839 SARAH BOULEVARD, Midland
Condo - Row / Townhouse$699,000
$4,667/yr taxListing Courtesy of Royal LePage In Touch Realty

808 JANE BOULEVARD, Midland
Condo - Row / Townhouse$599,900
$3,998/yr taxListing Courtesy of Royal LePage In Touch Realty

984 WRIGHT DRIVE, Midland
Row / Townhouse$614,999
$4,671/yr taxListing Courtesy of ROYAL LEPAGE CREDIT VALLEY REAL ESTATE

964 WRIGHT DRIVE, Midland
Row / Townhouse$599,777
$4,856/yr taxListing Courtesy of RE/MAX Georgian Bay Realty Ltd

1012 WRIGHT DRIVE, Midland
Row / Townhouse$699,500
$5,182/yr taxListing Courtesy of SUTTON GROUP INCENTIVE REALTY INC.

995 COOK DRIVE, Midland
Row / Townhouse$614,000
$4,462/yr taxListing Courtesy of Keller Williams Experience Realty

925 DOMINION AVENUE, Midland
House$749,777
$4,771/yr taxListing Courtesy of RE/MAX Georgian Bay Realty Ltd

945 DOMINION AVENUE, Midland
House$839,900
$6,092/yr taxListing Courtesy of Team Hawke Realty

828 DOMINION AVENUE, Midland
House$730,000
$4,221/yr taxListing Courtesy of RE/MAX HALLMARK PEGGY HILL GROUP REALTY

303 SEVENTH STREET E, Midland
House$749,777
$3,874/yr taxListing Courtesy of RE/MAX Georgian Bay Realty Ltd

150 WOODLAND DRIVE, Midland
House$529,900
$3,569/yr taxListing Courtesy of Real Broker Ontario Ltd.

789 MONTREAL STREET, Midland
House$650,000
$3,878/yr taxListing Courtesy of KELLER WILLIAMS EXPERIENCE REALTY
Similar Homes ?Similar Homes — Search CriteriaSearch Radius5 kmPrice Range±5%Match Home TypeYesMatch BedroomsYes

299 FIFTH STREET, Midland
House$895,000
$4,256/yr taxListing Courtesy of RE/MAX Georgian Bay Realty Ltd

28 WAINWRIGHT Boulevard, Dundas
House$895,000
$5,698/yr taxListing Courtesy of Keller Williams Edge Realty

379 CHAMPLAIN ROAD, Penetanguishene
House$895,000
$5,357/yr taxListing Courtesy of KELLER WILLIAMS REALTY CENTRES

27 - 120 TWENTY FOURTH STREET, Toronto (Long Branch)
Condo - Row / Townhouse$895,000
$4,155/yr taxListing Courtesy of ROYAL LEPAGE SIGNATURE REALTY

60 DEER RIDGE LANE W, Bluewater (Bayfield)
House$895,000
Listing Courtesy of Home and Company Real Estate Corp Brokerage

63 ROBINSON AVENUE, Kawartha Lakes (Eldon)
House$895,000
$4,621/yr taxListing Courtesy of ROYAL LEPAGE KAWARTHA LAKES REALTY INC.

401395 GREY RD 4, West Grey
House$895,000
$3,300/yr taxListing Courtesy of Wilfred McIntee & Co Limited

204 - 32 BRUNEL ROAD, Huntsville (Chaffey)
Condo - Apartment$895,000
$4,584/yr taxListing Courtesy of RE/MAX Professionals North

75 - 30 CARNATION AVENUE, Toronto (Long Branch)
Condo - Row / Townhouse$895,000
$4,276/yr taxListing Courtesy of RIGHT AT HOME REALTY

60 DEER RIDGE LANE W, Bluewater (Bayfield)
House$895,000
Listing Courtesy of PRIME REAL ESTATE BROKERAGE

533 OLD MARMORA ROAD, Madoc
House$895,000
$5,653/yr taxListing Courtesy of CENTURY 21 LANTHORN REAL ESTATE LTD.

7203 - 3 CONCORD CITYPLACE WAY, Toronto (Waterfront Communities)
Condo - Apartment$895,000
Listing Courtesy of PROMPTON REAL ESTATE SERVICES CORP.

398 GILBERT BAY LANE, Wollaston
House$895,000
$4,400/yr taxListing Courtesy of Royal Lepage Real Estate Associates

28 WAINWRIGHT BOULEVARD, Hamilton (Dundas)
House$895,000
$5,698/yr taxListing Courtesy of KELLER WILLIAMS EDGE REALTY

101 WOOD Street, Kitchener
House$895,000
$5,088/yr taxListing Courtesy of RE/MAX TWIN CITY REALTY INC.
Similar Properties ?Active Comparables — Search CriteriaSearch Radius2 kmPrice Range±5%Match Home TypeYesMatch BedroomsYes
No rental comparables found in this area.
Sold Comparables
Access to sold property data requires a registered and verified account with TRREB DDF integration.
Coming SoonRented Comparables
Access to rented property data requires a registered and verified account with TRREB DDF integration.
Coming SoonBook a Viewing
951 STOLLAR PLACE, Midland, Ontario, L4R0A6

