60 DEER RIDGE LANE W, Bluewater (Bayfield), Ontario, N0M1G0
MLS: X12066808 | House (Freehold)
$995,000












Property Description
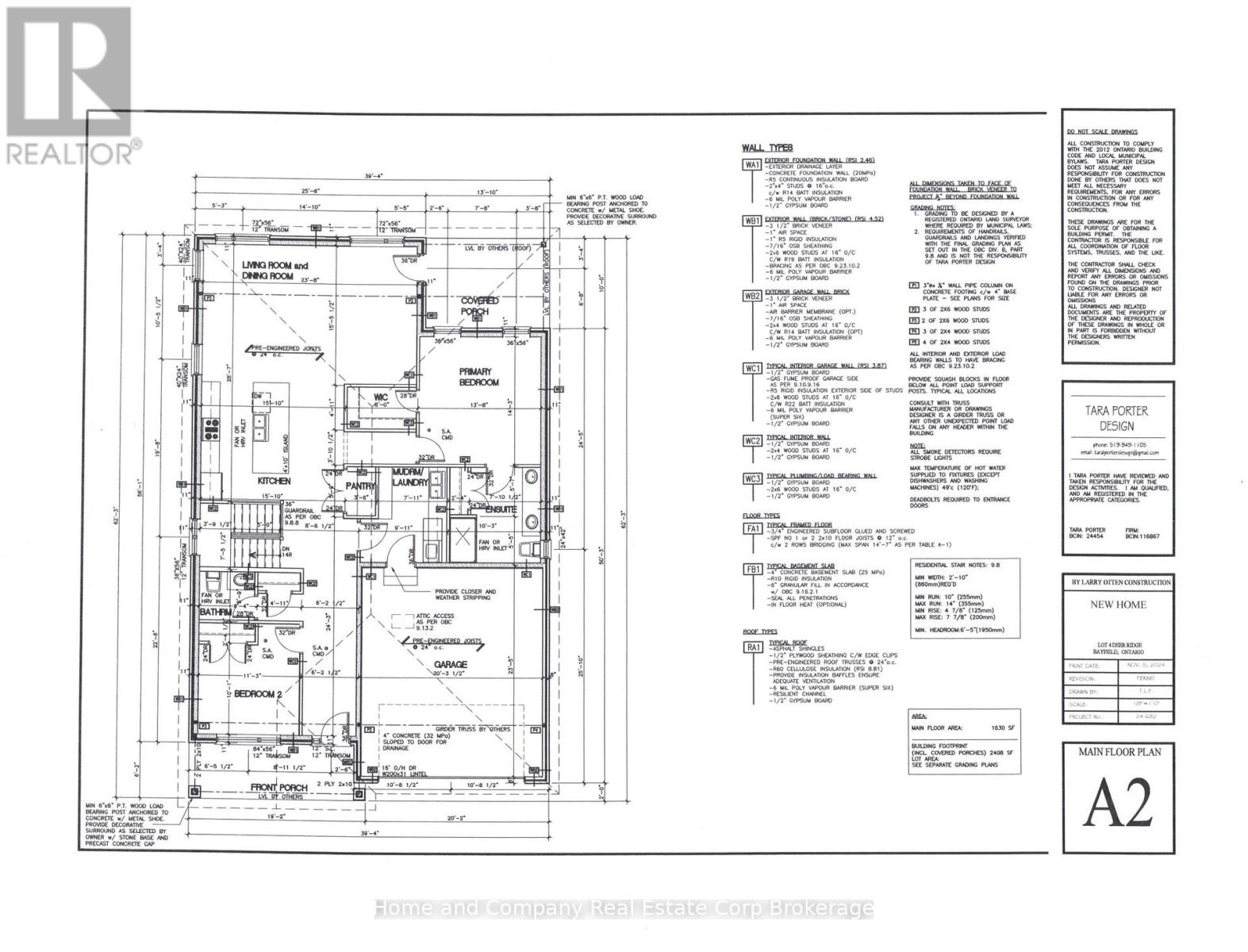
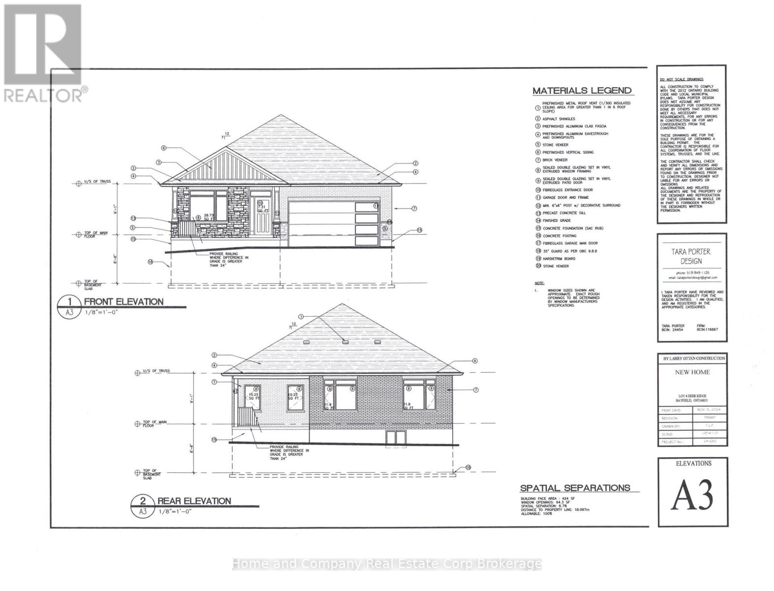
The Chase at Deer Ridge is a picturesque residential community, currently nestled amongst mature vineyards and the surrounding wooded area in the south east portion of Bayfield, a quintessential Ontario Village at the shores of Lake Huron. There will be a total of 23 dwellings, which includes 13 beautiful Bungalow Townhomes (currently under construction), and 9 detached Bungalow homes (Lot 9 Under construction) to be built by Larry Otten Contracting . The detached Bungalow on Lot 3 will be approx. 1,630 sq. ft. on the main level to include a primary bedroom with 5pc ensuite, spacious guest bedroom, open concept living/dining/kitchen area, which includes a spacious kitchen island for entertaining, walk-out to lovely covered porch, plus a 4pc bathroom, laundry and double car garage. Standard upgrades are included: Paved double drive, sodded lot, central air, 2 stage gas furnace, HVAC system, belt driven garage door opener, water softener, and water heater. The finished basement, will include a 4pc Bath, Rec-room and Bedroom with Closet, . Please see the attached supplemental documents of House Plans and Lot Plan. (id:64974)
Quick Facts
- Property Type: House (Freehold)
- Style: Bungalow
- Bedrooms: 3 (2 above, 1 below)
- Bathrooms: 3
- Ownership: Freehold
- Attached: No
- Parking: 6 spaces (Attached Garage, Garage)
- Frontage: 17.5 m (57 ft)
Listing Provided by: Home and Company Real Estate Corp Brokerage
Board: OnePoint Association of REALTORS®
Data provided via CREA DDF®.
Detailed Features
Interior & Systems
- Heating: Forced air, Natural gas
- Cooling: Central air conditioning, Air exchanger
- Basement: Partially finished, N/A
- Appliances: Water meter, Water softener, Range, Hood Fan, Garage door opener, Garage door opener remote(s), Water Heater
Exterior & Construction
- Style: Bungalow
- Exterior: Brick, Stone
- Foundation: Poured Concrete
- Sewer: Septic System
- Water: Municipal water
Lot & Land
- Frontage: 17.5 m (57 ft)
- Features: Carpet Free, Guest Suite
- Water Body: Lake Huron
- Zoning: R1
Community & Neighbourhood
- Neighbourhood: Bayfield
Room Details (12 rooms)
Listing Information
Listing History
Buy/Sell/Terminated/Expired listing history for 60 DEER RIDGE LANE W, Bluewater (Bayfield), Ontario, N0M1G0
Location & Neighborhood
🚗 Travel times
Neighborhood Walkability
Mortgage & Cost Calculators
Similar Homes
Similar Properties
No rental comparables found in this area.
Sold Comparables
Access to sold property data requires a registered and verified account with TRREB DDF integration.
Coming SoonRented Comparables
Access to rented property data requires a registered and verified account with TRREB DDF integration.
Coming Soon
























