9145 COUNTY ROAD 6 ROAD, Augusta, Ontario, K0G1R0
MLS: X12648202 | House (Freehold)
$739,900















































Property Description
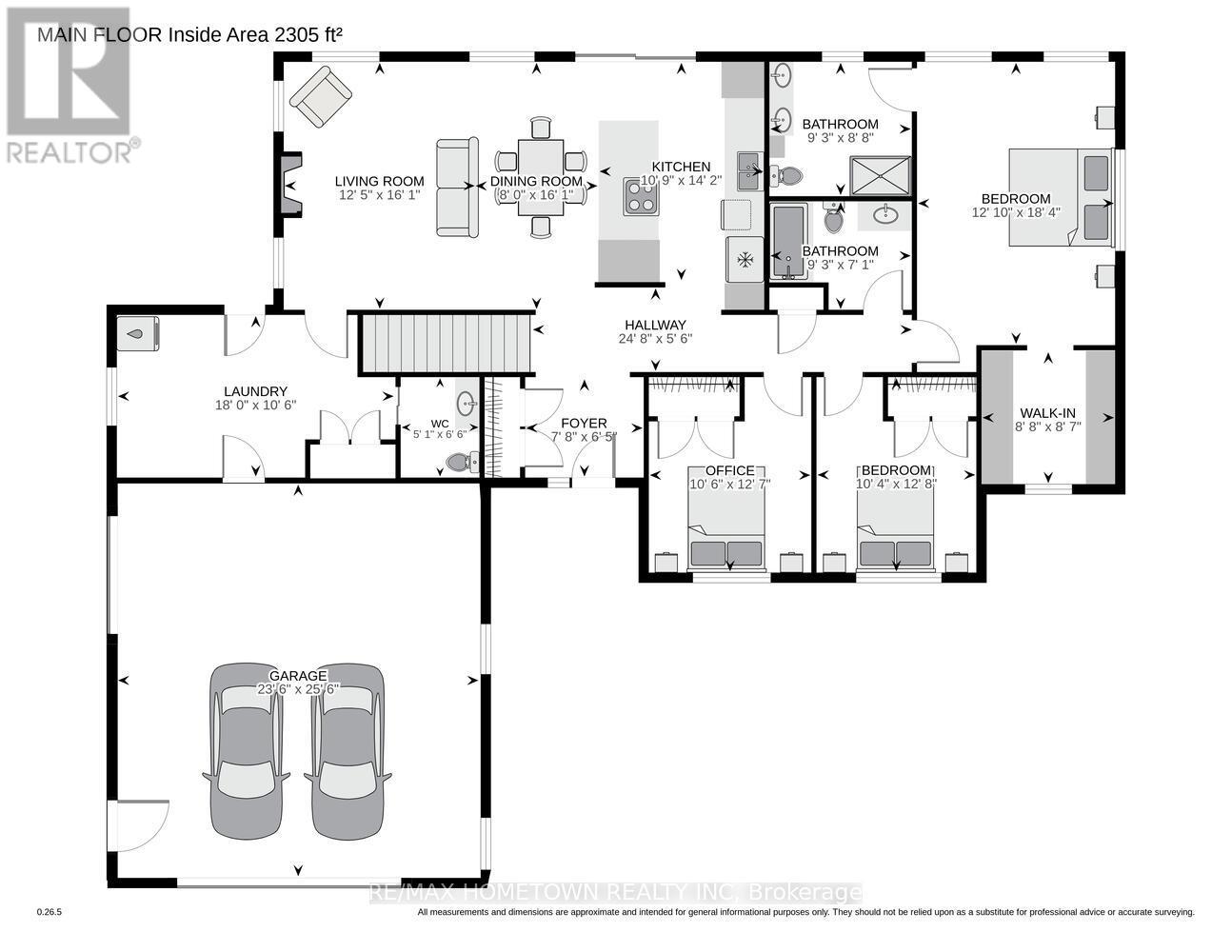
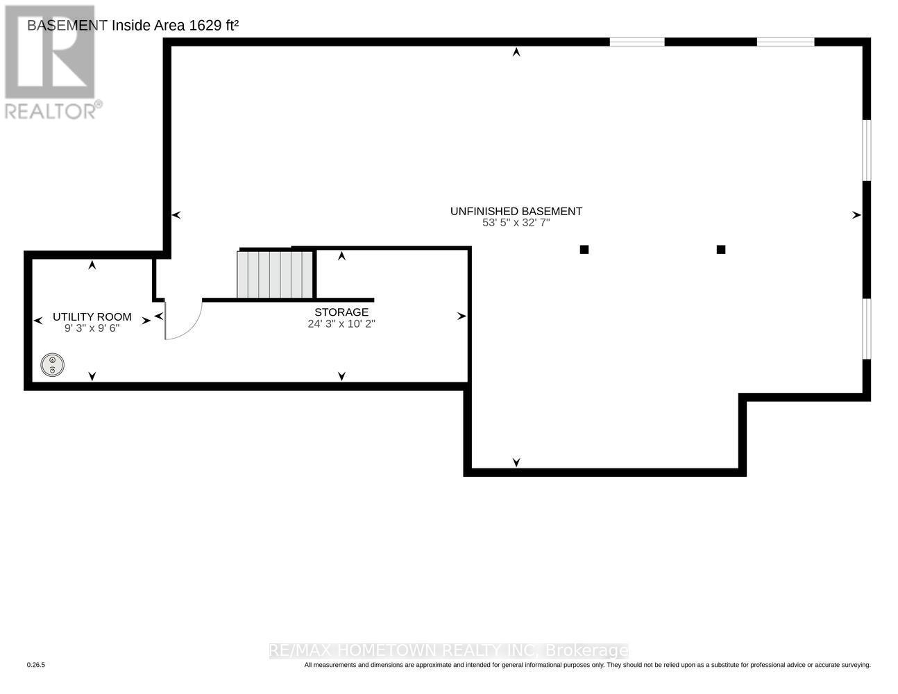
Whether you are growing your family or settling into your empty-nester years, this home and location fit the lifestyle. A large foyer welcomes you into this bright and spacious 1,560 sq ft custom-built bungalow set on 2.3 acres with an energy-efficient ICF foundation. You are only a 10-minute drive to Brockville and the 401.Natural light fills every corner thanks to large windows that brighten both the upper and lower levels. The main living area has an open layout with a generous living room centered around a cozy gas fireplace, perfect for winter evenings. The sleek and functional kitchen opens to the living room and to a large back deck through patio doors, so outdoor living is simple and inviting. Enjoy summer days by the pool. There is plenty of space for kids or grandkids, room for a swing set, and lots of privacy for relaxing or entertaining. The primary bedroom includes a his and hers closet area and a private 3-piece ensuite. Two additional bedrooms and a full main bath complete the main floor. A spacious mudroom and laundry area with a 2-piece bath connects directly to the garage, the covered side deck, and the back deck for practical everyday access. The lower level has excellent potential, with room to easily add a fourth bedroom, a fourth bathroom, and a large family room. You also get a separate utility and storage area. The attached garage includes a side door for easy machinery access. For those who love the outdoors, the property offers raised garden beds and a storage shed. Book your showing today. (id:64974)
Quick Facts
- Property Type: House (Freehold)
- Style: Bungalow
- Bedrooms: 3 (3 above)
- Bathrooms: 3 (1 half)
- Ownership: Freehold
- Attached: No
- Fireplaces: 1
- Parking: 8 spaces (Attached Garage, Garage)
- Frontage: 360 ft (109.8 m)
Costs
- Annual Taxes: $5,031.00
Listing Provided by: RE/MAX HOMETOWN REALTY INC
Board: Rideau - St. Lawrence Real Estate Board
Data provided via CREA DDF®.
Detailed Features
Interior & Systems
- Heating: Forced air, Propane
- Cooling: Central air conditioning
- Basement: Unfinished, N/A
- Appliances: Washer, Water softener, Dishwasher, Oven, Dryer, Microwave, Cooktop, Water Treatment, Hood Fan, Window Coverings, Water Heater
Exterior & Construction
- Style: Bungalow
- Exterior: Stone, Vinyl siding
- Foundation: Insulated Concrete Forms
- Sewer: Septic System
- Water: Drilled Well
Lot & Land
- Frontage: 360 ft (109.8 m)
- Features: Irregular lot size, Flat site
- Pool: Above ground pool
Community & Neighbourhood
- Building: Fireplace(s)
- Neighbourhood: 809 - Augusta Twp
Room Details (14 rooms)
Listing Information
Listing History
Buy/Sell/Terminated/Expired listing history for 9145 COUNTY ROAD 6 ROAD, Augusta, Ontario, K0G1R0
Location & Neighborhood
🚗 Travel times
Neighborhood Walkability
Mortgage & Cost Calculators
Nearby Homes (Within 2km)
Similar Homes
Similar Properties
No rental comparables found in this area.
Sold Comparables
Access to sold property data requires a registered and verified account with TRREB DDF integration.
Coming SoonRented Comparables
Access to rented property data requires a registered and verified account with TRREB DDF integration.
Coming Soon

















