85 WESTGATE PARK DRIVE, St. Catharines (Lakeshore), Ontario, L2N5X1
MLS: X13017810 | House (Freehold)
$1,175,000













































Property Description
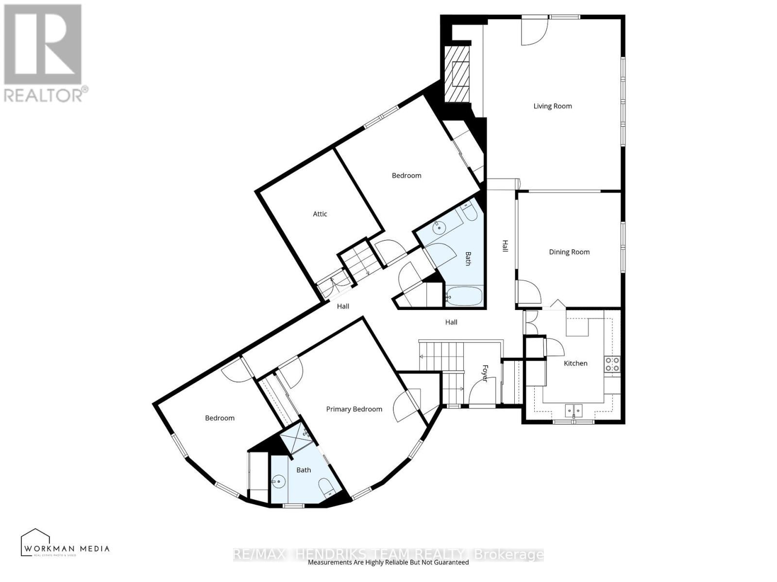
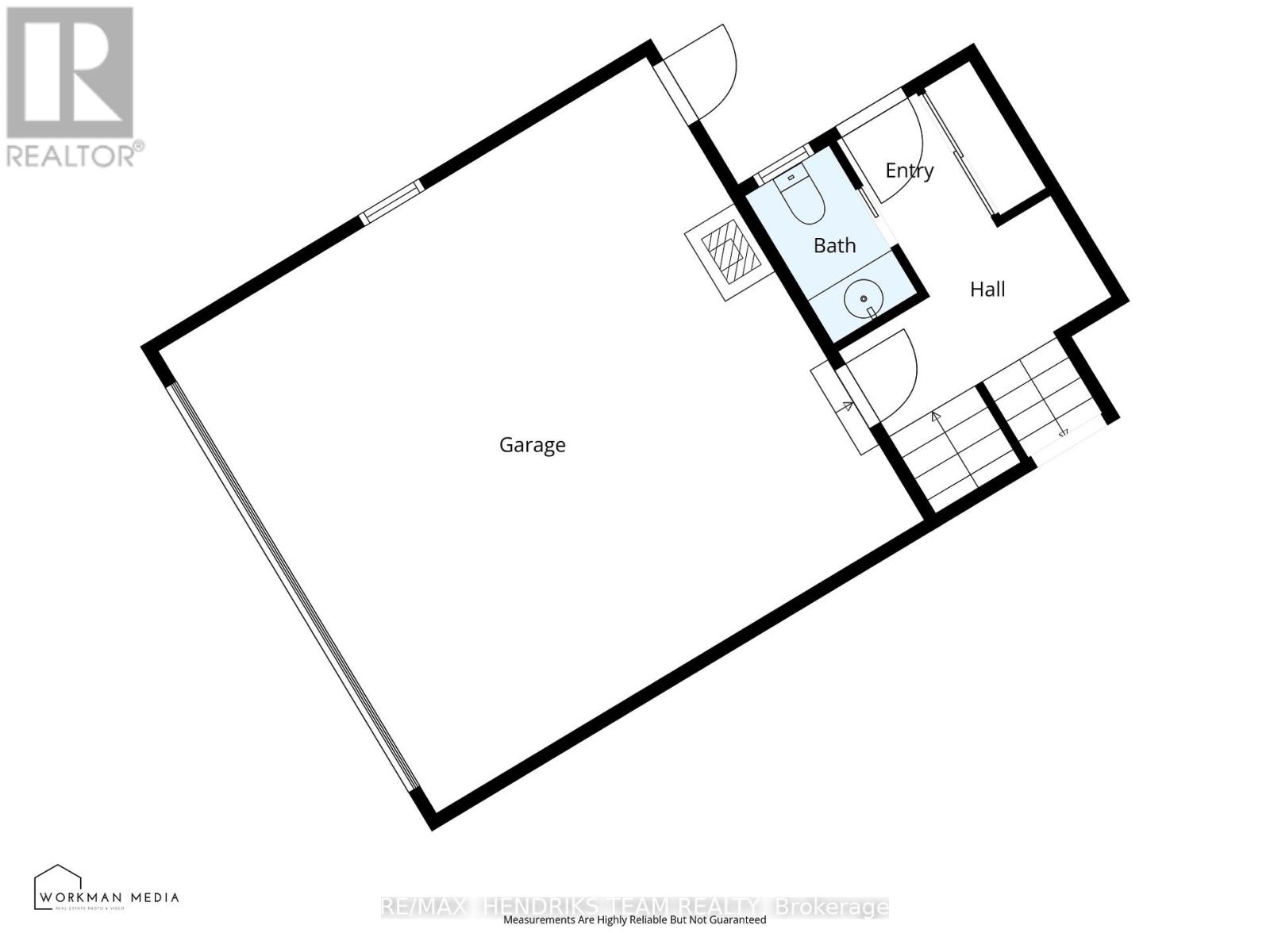
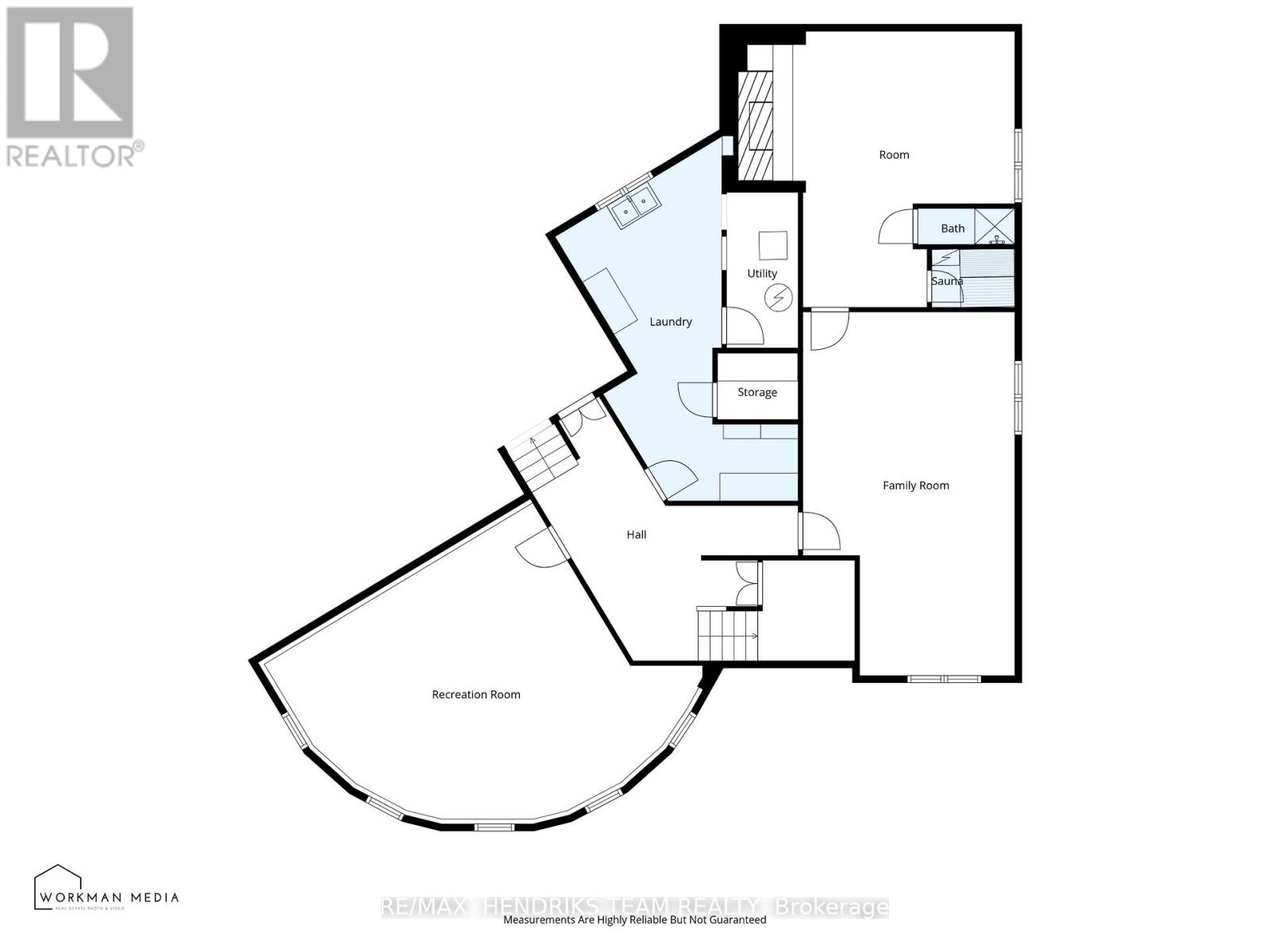
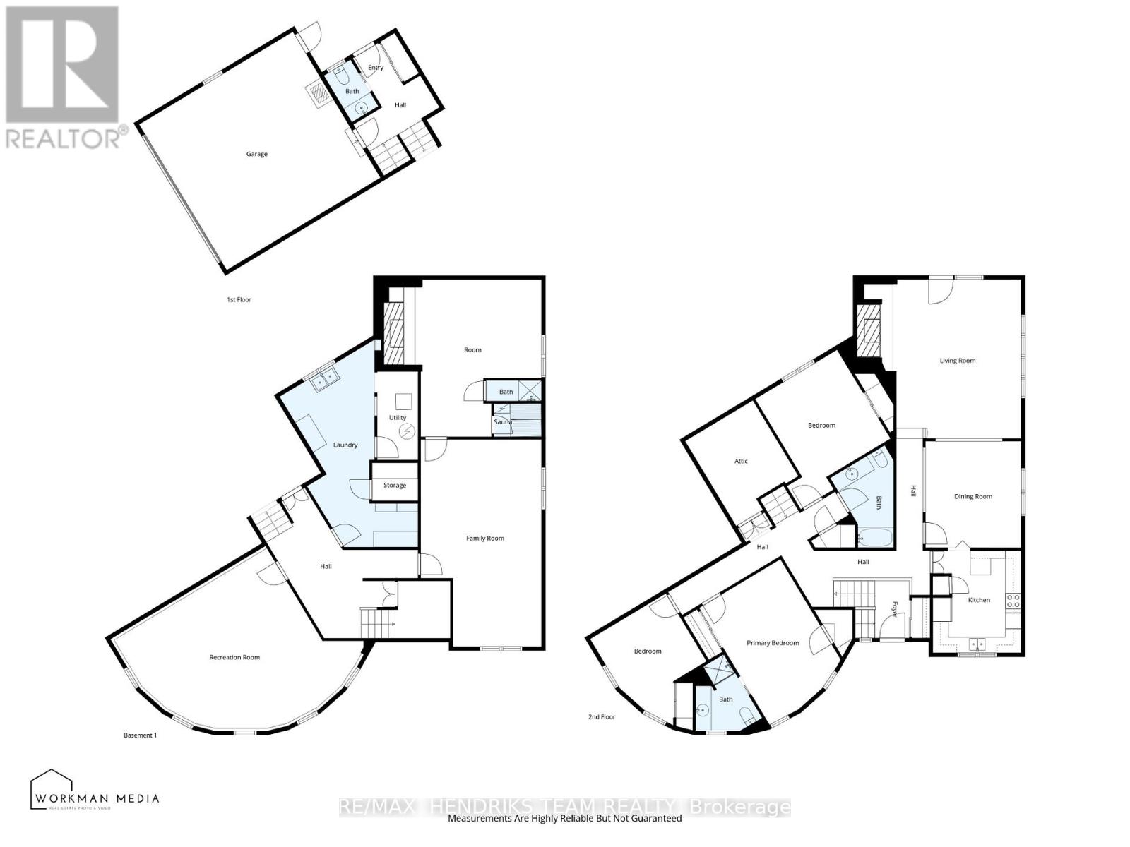
Discover an exceptional waterfront opportunity in the North end of St. Catharines, offering views of Lake Ontario and direct access to parkland. This custom-built home has been lovingly cared for by the same family since new and sits in one of St. Catharines' most desirable neighbourhoods. The property welcomes you with an expansive interlock driveway featuring two separate entrances and a convenient wraparound layout. Inside, the main floor offers approximately 2,000 sq ft of finished living space above grade. The main floor includes a convenient kitchen, formal dining room and a spacious family room highlighted by a wood-burning fireplace and large windows with lake views. Rich wood finishes and solid hardwood floors add warmth and character throughout. The upper level features three bedrooms with the primary having a private ensuite. Two additional bedrooms share a four-piece bath. A two-piece bathroom plus direct access to the oversized garage will also be found off the back hall. The lower level is accessible from both the front and rear of the home which offers exceptional flexibility. An oversized rec-room filled with natural light allows for endless possibilities. A second rec-room leads to a unique entertainment space with a sunken hot tub, full sauna with shower and secondary wood-burning fireplace which can be easily adaptable as a fourth bedroom. A large laundry room with ample storage completes this level. Outside the backyard is the true highlight, offering lake views and seamless access to the park behind. From here, enjoy a scenic walk along the waterfront trail straight into Port Dalhousie. With schools, coffee shops, grocery stores and the Niagara-on-the-Lake wine region just minutes away, is what makes this home's location the perfect fit. This rare opportunity offers the flexibility to move in and enjoy immediately or thoughtfully update to your personal style over time. (id:64974)
Quick Facts
- Property Type: House (Freehold)
- Style: Raised bungalow
- Bedrooms: 3 (3 above)
- Bathrooms: 4 (2 half)
- Ownership: Freehold
- Attached: No
- Fireplaces: 2
- Parking: 10.0 spaces (Attached Garage, Garage)
- Frontage: 60 ft (18.3 m)
Costs
- Annual Taxes: $10,545.00 (2026)
Listing Provided by: RE/MAX HENDRIKS TEAM REALTY
Board: Niagara Association of REALTORS®
Data provided via CREA DDF®.
Detailed Features
Interior & Systems
- Heating: Forced air, Natural gas
- Cooling: Central air conditioning
- Basement: Finished, Full
- Appliances: Refrigerator, Central Vacuum, Stove, Microwave, Garage door opener remote(s)
Exterior & Construction
- Style: Raised bungalow
- Exterior: Brick
- Foundation: Poured Concrete
- Fencing: Fenced yard, Fully Fenced
- Sewer: Sanitary sewer
- Water: Municipal water
Lot & Land
- Frontage: 60 ft (18.3 m)
- Features: Flat site, Sauna
- View: Lake view, View of water, Direct Water View
- Waterfront: Waterfront
- Water Body: Lake Ontario
- Zoning: R1
Community & Neighbourhood
- Community: School Bus
- Building: Fireplace(s)
- Neighbourhood: 437 - Lakeshore
Room Details (13 rooms)
Listing Information
Listing History
MLS listing activity for 85 WESTGATE PARK DRIVE, St. Catharines (Lakeshore), Ontario, L2N5X1 — dates reflect when changes were recorded in the DDF
Location & Neighborhood
🚗 Travel times
Neighborhood Walkability
Mortgage & Cost Calculators
Nearby Homes ?Nearby Homes — Search CriteriaSearch Radius1 kmPrice Range±30%Match BedroomsNoMatch BathroomsNo

93 WESTGATE PARK DRIVE, St. Catharines (Lakeshore)
House$1,349,900
$9,460/yr taxListing Courtesy of RE/MAX ESCARPMENT REALTY INC.

10 CANAL STREET, St. Catharines (Port Dalhousie)
House$1,099,900
$5,893/yr taxListing Courtesy of REVEL Realty Inc., Brokerage

19 MAIN STREET, St. Catharines (Port Dalhousie)
Retail$1,498,800
$9,053/yr taxListing Courtesy of HOMELIFE/BAYVIEW REALTY INC.

60 OCTOBER DRIVE, St. Catharines (Lakeshore)
House$1,074,900
$6,129/yr taxListing Courtesy of REVEL Realty Inc., Brokerage

40 MAIN STREET, St. Catharines (Port Dalhousie)
House$879,000
$4,650/yr taxListing Courtesy of SAGE REAL ESTATE LIMITED

302 - 55 MAIN STREET, St. Catharines (Port Dalhousie)
Condo - Apartment$879,900
$5,299/yr taxListing Courtesy of ROYAL LEPAGE NRC REALTY
Similar Homes ?Similar Homes — Search CriteriaSearch Radius5 kmPrice Range±5%Match Home TypeYesMatch BedroomsYes

214 - 955 QUEEN STREET W, Toronto (Niagara)
Condo - Apartment$1,175,000
$4,230/yr taxListing Courtesy of THE AGENCY

530 LAUDER AVENUE, Toronto (Oakwood Village)
House$1,175,000
$3,793/yr taxListing Courtesy of ROYAL LEPAGE SIGNATURE REALTY

49 SUNVIEW DRIVE, Norwich (Norwich Town)
House$1,175,000
Listing Courtesy of Royal Lepage R.E. Wood Realty Brokerage

492 KWAPIS BOULEVARD, Newmarket (Woodland Hill)
House$1,175,000
$6,072/yr taxListing Courtesy of SUTTON GROUP-ADMIRAL REALTY INC.

71 AUGUSTA STREET, Port Hope
House$1,175,000
$7,360/yr taxListing Courtesy of BOSLEY REAL ESTATE LTD.

44 LASCHINGER Boulevard, New Hamburg
House$1,175,000
$6,775/yr taxListing Courtesy of Peak Realty Ltd.

1099 SUMMER LANE, Minden Hills (Minden)
House$1,175,000
$3,851/yr taxListing Courtesy of RE/MAX Professionals North

57 HIAWATHA DRIVE, Huntsville (Stephenson)
House$1,175,000
$5,377/yr taxListing Courtesy of Royal LePage Lakes Of Muskoka Realty

82 DIAMOND VALLEY DRIVE, Oro-Medonte (Sugarbush)
House$1,175,000
$5,442/yr taxListing Courtesy of RE/MAX HALLMARK PEGGY HILL GROUP REALTY

54 HIGHLAND DRIVE, Oro-Medonte (Horseshoe Valley)
House$1,175,000
$5,678/yr taxListing Courtesy of RIGHT AT HOME REALTY
Property Comparables ?Active Comparables — Search CriteriaSearch Radius2 kmPrice Range±15%Match Home TypeYesMatch BedroomsYes

13O3 - 701 GENEVA STREET, St. Catharines (Lakeshore)
Condo - Apartment$1,249,000
$7,553/yr taxListing Courtesy of ROYAL LEPAGE NRC REALTY

1303 - 701 GENEVA STREET, St. Catharines (Lakeshore)
Condo - Apartment$1,100,000
$7,969/yr taxListing Courtesy of ROYAL LEPAGE NRC REALTY

10 CANAL STREET, St. Catharines (Port Dalhousie)
House$1,099,900
$5,893/yr taxListing Courtesy of REVEL Realty Inc., Brokerage

93 WESTGATE PARK DRIVE, St. Catharines (Lakeshore)
House$1,349,900
$9,460/yr taxListing Courtesy of RE/MAX ESCARPMENT REALTY INC.
No rental comparables found in this area.
No sold comparables found at this radius. Zoom out on the map to broaden the search area.
No leased comparables found. Rented data requires TRREB DDF integration; the map and search will populate automatically once enabled.
Book a Viewing
85 WESTGATE PARK DRIVE, St. Catharines (Lakeshore), Ontario, L2N5X1






