807 ATHOL STREET, Whitby (Downtown Whitby), Ontario, L1N4A1
MLS: E12953650 | House (Freehold)
$1,389,000





Property Description
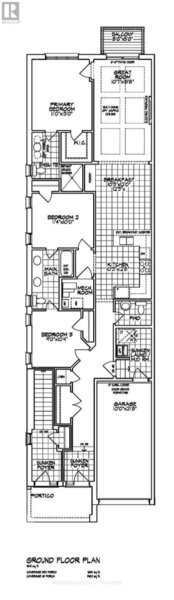
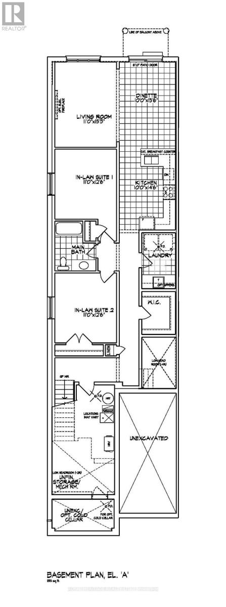
Plan ahead-invest in your future! This legal duplex, semi-detached style bungalow is finished top to bottom and offers exceptional versatility for homeowners and investors alike. The main floor features 9 ft ceilings, 3 spacious bedrooms, 3 bathrooms, and an open-concept kitchen with a walk-out to a deck overlooking Peel Park-complete with tennis courts, soccer fields, a baseball diamond, and more. Situated on a premium lot, the property also offers 4-car parking and separate utilities. The lower level includes a well-designed legal basement apt with 2 bedrooms, an open-concept living/family room, and a custom kitchen, along with a walk-out to a large backyard. Equipped with separate furnaces and meters, this home is ideal for multigenerational living or maximizing rental income. Live in one unit and rent the other, or lease both-a smart investment with strong income potential. Located in a highly desirable, family-friendly neighbourhood, just steps to parks, schools, shopping, restaurants, and everyday amenities, with easy access to Highways 401, 412, and 407 and public transit. (id:64974)
Quick Facts
- Property Type: House (Freehold)
- Style: Bungalow
- Bedrooms: 5 (3 above, 2 below)
- Bathrooms: 4 (1 half)
- Ownership: Freehold
- Attached: Yes
- Fireplaces: Yes
- Parking: 4.0 spaces (Attached Garage, Garage)
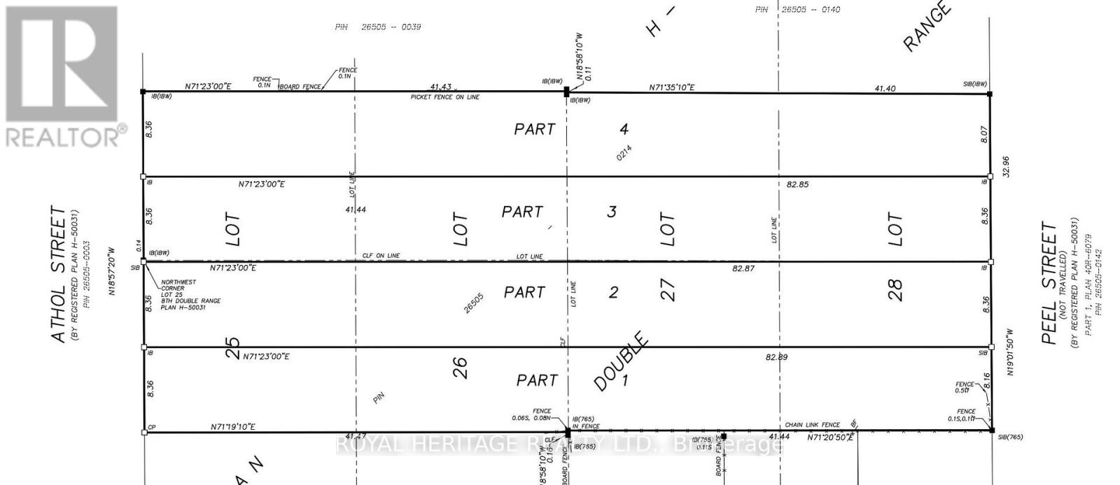
- Frontage: 27 ft (8.2 m)
Listing Provided by: ROYAL HERITAGE REALTY LTD.
Board: Toronto Regional Real Estate Board
Data provided via CREA DDF®.
Detailed Features
Interior & Systems
- Heating: Forced air, Natural gas
- Cooling: None
- Basement: Finished, Apartment in basement, Separate entrance, Walk out, N/A, N/A, N/A, N/A
- Flooring: Hardwood, Carpeted, Porcelain Tile
Exterior & Construction
- Style: Bungalow
- Exterior: Brick, Stone
- Foundation: Poured Concrete
- Sewer: Sanitary sewer
- Water: Municipal water
Lot & Land
- Frontage: 27 ft (8.2 m)
Community & Neighbourhood
- Building: Fireplace(s)
- Neighbourhood: Downtown Whitby
Room Details (11 rooms)
Listing Information
Listing History
MLS listing activity for 807 ATHOL STREET, Whitby (Downtown Whitby), Ontario, L1N4A1 — dates reflect when changes were recorded in the DDF
🚗 Travel times
Neighborhood Walkability
Mortgage & Cost Calculators
Nearby Homes ?Nearby Homes — Search CriteriaSearch Radius1 kmPrice Range±5%Match BedroomsYesMatch BathroomsYes

805 ATHOL STREET, Whitby (Downtown Whitby)
Duplex$1,389,000
Listing Courtesy of ROYAL HERITAGE REALTY LTD.

805B ATHOL STREET, Whitby (Downtown Whitby)
House$1,179,900
Listing Courtesy of ROYAL HERITAGE REALTY LTD.

829 ATHOL STREET, Whitby (Downtown Whitby)
House$699,999
$5,502/yr taxListing Courtesy of EXP REALTY

707 ATHOL STREET, Whitby (Downtown Whitby)
House$499,999
$4,583/yr taxListing Courtesy of CENTURY 21 PERCY FULTON LTD.

212 ST. PETER STREET, Whitby (Downtown Whitby)
House$788,000
$5,178/yr taxListing Courtesy of SUTTON GROUP-ADMIRAL REALTY INC.

704 BROCK STREET S, Whitby (Downtown Whitby)
House$869,900
$5,662/yr taxListing Courtesy of RE/MAX HALLMARK CHAY REALTY

804 BYRON STREET S, Whitby (Downtown Whitby)
House$699,000
$5,462/yr taxListing Courtesy of PINNACLE ONE REAL ESTATE INC.

305 TRENT STREET W, Whitby (Downtown Whitby)
House$2,099,900
$13,708/yr taxListing Courtesy of Royal LePage Our Neighbourhood Realty

29 GLENMORE DRIVE, Whitby (Downtown Whitby)
House$839,000
$5,598/yr taxListing Courtesy of ROYAL LEPAGE FLOWER CITY REALTY

404 TRENT STREET W, Whitby (Downtown Whitby)
House$1,999/mo
Listing Courtesy of CENTURY 21 ROYALTORS REALTY INC.

517 - 201 BROCK STREET S, Whitby (Downtown Whitby)
Condo - Apartment$599,900
Listing Courtesy of ORION REALTY CORPORATION

602 - 201 BROCK STREET S, Whitby (Downtown Whitby)
Condo - Apartment$569,900
$5,062/yr taxListing Courtesy of ROYAL HERITAGE REALTY LTD.

110 - 201 BROCK STREET S, Whitby (Downtown Whitby)
Condo - Apartment$689,900
Listing Courtesy of ORION REALTY CORPORATION

418 - 201 BROCK STREET S, Whitby (Downtown Whitby)
Condo - Apartment$2,700/mo
Listing Courtesy of SUTTON GROUP-HERITAGE REALTY INC.

920 GREENWOOD CRESCENT, Whitby (Downtown Whitby)
House$835,000
$4,782/yr taxListing Courtesy of NEW WORLD 2000 REALTY INC.
Similar Homes ?Similar Homes — Search CriteriaSearch Radius5 kmPrice Range±5%Match Home TypeYesMatch BedroomsYes

70 SWORDFISH DRIVE, Whitby (Lynde Creek)
House$1,388,000
$11,510/yr taxListing Courtesy of RE/MAX EXCEL REALTY LTD.

50 LIPTON CRESCENT, Whitby (Pringle Creek)
House$1,319,900
$8,273/yr taxListing Courtesy of TANYA TIERNEY TEAM REALTY INC.

102 - 17 CLEAVE AVENUE, Prince Edward County (Picton Ward)
Condo - Apartment$1,389,000
$5,286/yr taxListing Courtesy of CHESTNUT PARK REAL ESTATE LIMITED

9340 DANFORTH ROAD E, Cobourg
House$1,389,000
$7,488/yr taxListing Courtesy of CENTURY 21 UNITED REALTY INC.

701 - 2170 MARINE DRIVE, Oakville (BR Bronte)
Condo - Apartment$1,389,000
$6,076/yr taxListing Courtesy of Royal LePage Real Estate Services Ltd., Brokerage

310 CHAMBERS CRESCENT, Newmarket (Armitage)
House$1,389,000
$6,543/yr taxListing Courtesy of CENTURY 21 HERITAGE GROUP LTD.

44 MADISON AVENUE, Richmond Hill (Oak Ridges)
House$1,389,000
$6,714/yr taxListing Courtesy of CENTURY 21 HERITAGE GROUP LTD.

2223 VISTA Drive, Burlington
House$1,389,000
$5,821/yr taxListing Courtesy of RE/MAX Escarpment Realty Inc.

A4 - 142 PEARS AVENUE, Toronto (Annex)
Condo - Row / Townhouse$1,389,000
$4,826/yr taxListing Courtesy of SOTHEBY'S INTERNATIONAL REALTY CANADA

1160 SKYRIDGE BOULEVARD, Pickering
House$1,389,000
$8,812/yr taxListing Courtesy of ROYAL LEPAGE IGNITE REALTY

920 BESSY TRAIL, Milton (CO Coates)
House$1,389,000
$5,800/yr taxListing Courtesy of RE/MAX REAL ESTATE CENTRE INC.

2223 VISTA DRIVE, Burlington (Headon)
House$1,389,000
$5,821/yr taxListing Courtesy of RE/MAX ESCARPMENT REALTY INC.

68 JOLANA CRESCENT, Halton Hills (Georgetown)
House$1,389,000
$7,740/yr taxListing Courtesy of EASY LIST REALTY LTD.

53 WEDGEWOOD DRIVE, Toronto (Newtonbrook East)
House$1,389,000
$8,031/yr taxListing Courtesy of RE/MAX WEST REALTY INC.

64 HAMISH TRAIL, Whitewater Region
House$1,389,000
$6,383/yr taxListing Courtesy of Century 21 Valley Realty Inc.
Similar Properties ?Active Comparables — Search CriteriaSearch Radius2 kmPrice Range±5%Match Home TypeYesMatch BedroomsYes
No active comparables found in this area.
No rental comparables found in this area.
Sold Comparables
Access to sold property data requires a registered and verified account with TRREB DDF integration.
Coming SoonRented Comparables
Access to rented property data requires a registered and verified account with TRREB DDF integration.
Coming SoonBook a Viewing
807 ATHOL STREET, Whitby (Downtown Whitby), Ontario, L1N4A1
