805 ATHOL STREET, Whitby (Downtown Whitby), Ontario, L1N4A1
MLS: E12914042 | Duplex
$1,389,000





Property Description
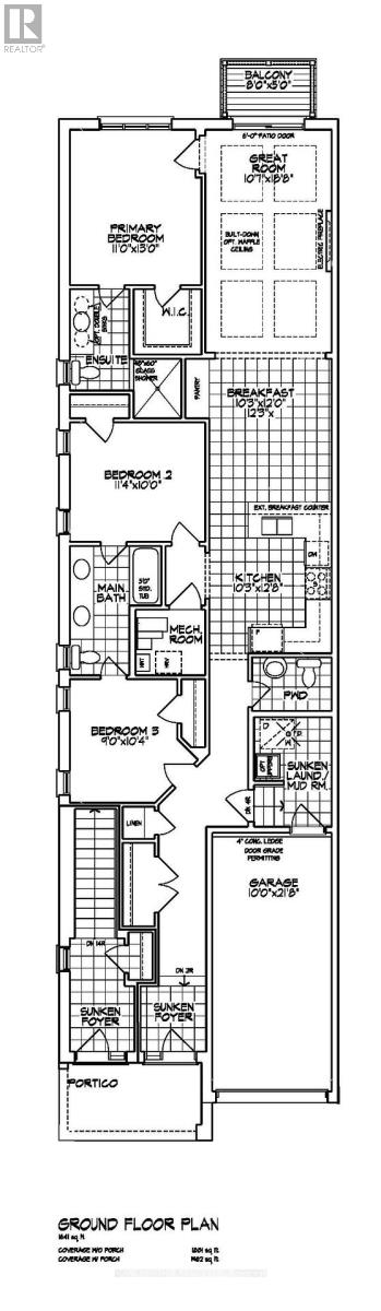
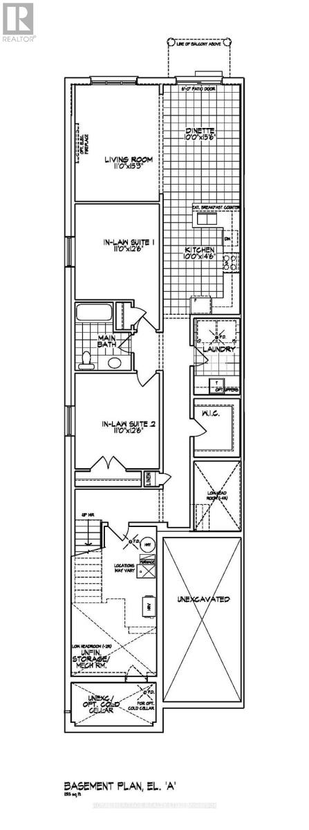
Plan ahead-invest in your future! This legal duplex, semi-detached style bungalow is finished top to bottom and offers exceptional versatility for homeowners and investors alike. The main floor features 9 ft ceilings, 3 spacious bedrooms, 3 bathrooms, and an open-concept kitchen with a walk-out to a deck overlooking Peel Park-complete with tennis courts, soccer fields, a baseball diamond, and more. Situated on a premium lot, the property also offers 4-car parking and separate utilities. The lower level includes a well-designed legal basement apt with 2 bedrooms, an open-concept living/family room, and a custom kitchen, along with a walk-out to a large backyard. Equipped with separate furnaces and meters, this home is ideal for multigenerational living or maximizing rental income. Live in one unit and rent the other, or lease both-a smart investment with strong income potential. Located in a highly desirable, family-friendly neighbourhood, just steps to parks, schools, shopping, restaurants, and everyday amenities, with easy access to Highways 401, 412, and 407 and public transit. (id:64974)
Quick Facts
- Property Type: Duplex
- Style: Bungalow
- Bedrooms: 5 (3 above, 2 below)
- Bathrooms: 4 (1 half)
- Attached: Yes
- Fireplaces: Yes
- Parking: 4.0 spaces (Attached Garage, Garage)
- Frontage: 27 ft (8.2 m)
Listing Provided by: ROYAL HERITAGE REALTY LTD.
Board: Toronto Regional Real Estate Board
Data provided via CREA DDF®.
Detailed Features
Interior & Systems
- Heating: Forced air, Natural gas
- Cooling: None
- Basement: Finished, Apartment in basement, Separate entrance, Walk out, N/A, N/A, N/A, N/A
- Flooring: Hardwood, Carpeted, Porcelain Tile
Exterior & Construction
- Style: Bungalow
- Exterior: Brick, Stone
- Foundation: Poured Concrete
- Sewer: Sanitary sewer
- Water: Municipal water
Lot & Land
- Frontage: 27 ft (8.2 m)
Community & Neighbourhood
- Building: Fireplace(s)
- Neighbourhood: Downtown Whitby
Room Details (11 rooms)
Listing Information
Listing History
MLS listing activity for 805 ATHOL STREET, Whitby (Downtown Whitby), Ontario, L1N4A1 — dates reflect when changes were recorded in the DDF
🚗 Travel times
Neighborhood Walkability
Mortgage & Cost Calculators
Nearby Homes ?Nearby Homes — Search CriteriaSearch Radius1 kmPrice Range±5%Match BedroomsYesMatch BathroomsYes
Similar Homes ?Similar Homes — Search CriteriaSearch Radius5 kmPrice Range±5%Match Home TypeYesMatch BedroomsYes

22 & 24 RIVER STREET, Thorold (Port Robinson)
Other$1,395,000
$9,463/yr taxListing Courtesy of RE/MAX SUCCESS REALTY

929 LAKESHORE ROAD E, Mississauga (Lakeview)
Triplex$1,399,000
$5,105/yr taxListing Courtesy of MANOR HILL REALTY INC.

929 LAKESHORE ROAD, Mississauga (Lakeview)
Multi-Family$1,399,000
$5,105/yr taxListing Courtesy of MANOR HILL REALTY INC.

339 CHAPEL STREET, Ottawa
Fourplex$1,399,880
$9,095/yr taxListing Courtesy of ROYAL LEPAGE INTEGRITY REALTY

780 PROGRESS AVENUE, Kingston (South of Taylor-Kidd Blvd)
Other$1,399,900
$10,018/yr taxListing Courtesy of EXP REALTY, BROKERAGE

806 COUNTY RD 1, Stone Mills (Stone Mills)
Duplex$1,399,900
$7,028/yr taxListing Courtesy of MCCAFFREY REALTY INC., BROKERAGE

309 CYR AVENUE, Ottawa
Other$1,375,000
$8,759/yr taxListing Courtesy of SUTTON GROUP - OTTAWA REALTY

88 MACLAREN STREET, Ottawa
Multi-Family$1,375,000
$11,711/yr taxListing Courtesy of EXP REALTY

4667 WYANDOTTE STREET East, Windsor
Fourplex$1,375,000
Listing Courtesy of REMAX PREFERRED REALTY LTD. - 585

483 GEORGE STREET, Central Elgin (Port Stanley)
Other$1,374,900
$5,539/yr taxListing Courtesy of RE/MAX CENTRE CITY REALTY INC.

483 GEORGE STREET, Central Elgin (Port Stanley)
Multi-Family$1,374,900
$5,539/yr taxListing Courtesy of RE/MAX CENTRE CITY REALTY INC.

244 BROCK STREET, Kingston (Central City East)
Other$1,410,000
$7,666/yr taxListing Courtesy of RE/MAX FINEST REALTY INC., BROKERAGE

94 KING STREET, Essa (Angus)
Other$1,425,000
$5,606/yr taxListing Courtesy of RE/MAX HALLMARK PEGGY HILL GROUP REALTY

228 RIDEAU TERRACE, Ottawa
Duplex$1,425,000
$12,315/yr taxListing Courtesy of ROYAL LEPAGE TEAM REALTY

61 PEARL STREET E, Brockville
Multi-Family$1,350,000
$11,869/yr taxListing Courtesy of RE/MAX HOMETOWN REALTY INC
Similar Properties ?Active Comparables — Search CriteriaSearch Radius2 kmPrice Range±5%Match Home TypeYesMatch BedroomsYes
No active comparables found in this area.
No rental comparables found in this area.
Sold Comparables
Access to sold property data requires a registered and verified account with TRREB DDF integration.
Coming SoonRented Comparables
Access to rented property data requires a registered and verified account with TRREB DDF integration.
Coming SoonBook a Viewing
805 ATHOL STREET, Whitby (Downtown Whitby), Ontario, L1N4A1

