805B ATHOL STREET, Whitby (Downtown Whitby), Ontario, L1N4A1
MLS: E12953658 | House (Freehold)
$1,179,900




Property Description
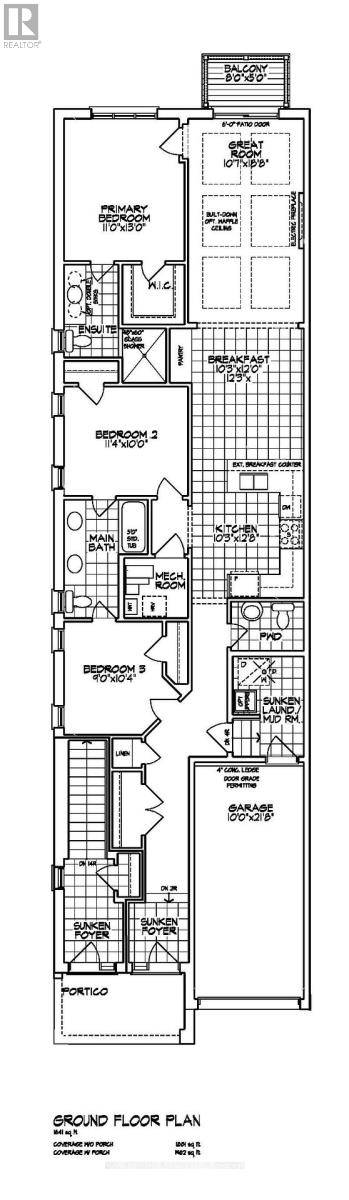
Plan ahead-invest in your future! This legal duplex, semi-detached style bungalow is finished throughout the main level and offers exceptional versatility for homeowners and investors alike. The main floor features 9 ft ceilings, 3 spacious bedrooms, 3 bathrooms, and an open-concept kitchen with a walk-out to a deck overlooking Peel Park-complete with tennis courts, soccer fields, a baseball diamond, and more. Situated on a premium lot, the property also offers 4-car parking. The unfinished basement leaves your options open! Finish the walk out basement into additional living space for your family, multi-generational living, or create basement apartment with the separate entrance for potential rental income. Located in a highly desirable, family-friendly neighbourhood, just steps to parks, schools, shopping, restaurants, and everyday amenities, with easy access to Highways 401, 412, and 407 and public transit. (id:64974)
Quick Facts
- Property Type: House (Freehold)
- Style: Bungalow
- Bedrooms: 3 (3 above)
- Bathrooms: 3 (1 half)
- Ownership: Freehold
- Attached: Yes
- Fireplaces: Yes
- Parking: 4.0 spaces (Attached Garage, Garage)
- Frontage: 27 ft (8.2 m)
Listing Provided by: ROYAL HERITAGE REALTY LTD.
Board: Toronto Regional Real Estate Board
Data provided via CREA DDF®.
Detailed Features
Interior & Systems
- Heating: Forced air, Natural gas
- Cooling: None
- Basement: Unfinished, Separate entrance, Walk out, N/A, N/A, N/A
- Flooring: Hardwood, Carpeted, Porcelain Tile
Exterior & Construction
- Style: Bungalow
- Exterior: Brick, Stone
- Foundation: Poured Concrete
- Sewer: Sanitary sewer
- Water: Municipal water
Lot & Land
- Frontage: 27 ft (8.2 m)
Community & Neighbourhood
- Building: Fireplace(s)
- Neighbourhood: Downtown Whitby
Room Details (6 rooms)
Listing Information
Listing History
MLS listing activity for 805B ATHOL STREET, Whitby (Downtown Whitby), Ontario, L1N4A1 — dates reflect when changes were recorded in the DDF
🚗 Travel times
Neighborhood Walkability
Mortgage & Cost Calculators
Nearby Homes ?Nearby Homes — Search CriteriaSearch Radius1 kmPrice Range±5%Match BedroomsYesMatch BathroomsYes

807 ATHOL STREET, Whitby (Downtown Whitby)
House$1,389,000
Listing Courtesy of ROYAL HERITAGE REALTY LTD.

829 ATHOL STREET, Whitby (Downtown Whitby)
House$699,999
$5,502/yr taxListing Courtesy of EXP REALTY

707 ATHOL STREET, Whitby (Downtown Whitby)
House$499,999
$4,583/yr taxListing Courtesy of CENTURY 21 PERCY FULTON LTD.

212 ST. PETER STREET, Whitby (Downtown Whitby)
House$788,000
$5,178/yr taxListing Courtesy of SUTTON GROUP-ADMIRAL REALTY INC.

704 BROCK STREET S, Whitby (Downtown Whitby)
House$869,900
$5,662/yr taxListing Courtesy of RE/MAX HALLMARK CHAY REALTY

804 BYRON STREET S, Whitby (Downtown Whitby)
House$699,000
$5,462/yr taxListing Courtesy of PINNACLE ONE REAL ESTATE INC.

305 TRENT STREET W, Whitby (Downtown Whitby)
House$2,099,900
$13,708/yr taxListing Courtesy of Royal LePage Our Neighbourhood Realty

29 GLENMORE DRIVE, Whitby (Downtown Whitby)
House$839,000
$5,598/yr taxListing Courtesy of ROYAL LEPAGE FLOWER CITY REALTY

404 TRENT STREET W, Whitby (Downtown Whitby)
House$1,999/mo
Listing Courtesy of CENTURY 21 ROYALTORS REALTY INC.

602 - 201 BROCK STREET S, Whitby (Downtown Whitby)
Condo - Apartment$569,900
$5,062/yr taxListing Courtesy of ROYAL HERITAGE REALTY LTD.

110 - 201 BROCK STREET S, Whitby (Downtown Whitby)
Condo - Apartment$689,900
Listing Courtesy of ORION REALTY CORPORATION

517 - 201 BROCK STREET S, Whitby (Downtown Whitby)
Condo - Apartment$599,900
Listing Courtesy of ORION REALTY CORPORATION

418 - 201 BROCK STREET S, Whitby (Downtown Whitby)
Condo - Apartment$2,700/mo
Listing Courtesy of SUTTON GROUP-HERITAGE REALTY INC.

30 FRANK LLOYD WRIGHT STREET, Whitby (Downtown Whitby)
House$1,299,900
$6,727/yr taxListing Courtesy of REAL ESTATE HOMEWARD

11 FRANK LLOYD WRIGHT STREET, Whitby (Downtown Whitby)
Row / Townhouse$798,000
$4,742/yr taxListing Courtesy of RIGHT AT HOME REALTY
Similar Homes ?Similar Homes — Search CriteriaSearch Radius5 kmPrice Range±5%Match Home TypeYesMatch BedroomsYes

433 TWINLEAF STREET, Waterloo
House$1,179,900
$6,213/yr taxListing Courtesy of Real Broker Ontario Ltd.

24 EARLSCOURT TERRACE, Middlesex Centre (Kilworth)
House$1,179,900
$7,601/yr taxListing Courtesy of ROYAL LEPAGE TRILAND REALTY

428 FATHER TOBIN ROAD, Brampton (Sandringham-Wellington)
House$1,179,900
$8,489/yr taxListing Courtesy of INDEX REALTY BROKERAGE INC.

136 HATT Court, Milton
House$1,179,900
$5,039/yr taxListing Courtesy of RE/MAX Escarpment Realty Inc.

22 - 2019 TRAWDEN WAY, Oakville (BC Bronte Creek)
Row / Townhouse$1,179,900
$5,200/yr taxListing Courtesy of CENTURY 21 MILLER REAL ESTATE LTD.

284 RIDGE DRIVE, Milton (OM Old Milton)
House$1,179,900
$4,609/yr taxListing Courtesy of ROYAL LEPAGE REAL ESTATE SERVICES LTD.

143 GROVEWOOD COMMON, Oakville (GO Glenorchy)
Condo - Row / Townhouse$1,179,900
$4,040/yr taxListing Courtesy of ROYAL LEPAGE REAL ESTATE SERVICES LTD.

19 FENCEROW WAY, Ottawa
House$1,179,900
$6,506/yr taxListing Courtesy of COLDWELL BANKER FIRST OTTAWA REALTY

606 GEORGE KENNEDY WAY, Lakeshore
House$1,179,900
Listing Courtesy of REMAX PREFERRED REALTY LTD. - 585

512 WOOD NETTLE Way, Waterloo
House$1,179,900
$7,357/yr taxListing Courtesy of Royal LePage Peaceland Realty

1332 SAGEWOOD CRESCENT, Oakville (WT West Oak Trails)
House$1,179,907
$4,908/yr taxListing Courtesy of ROYAL LEPAGE IGNITE REALTY

961 RIBSTON ROAD, Mississauga (Lakeview)
House$1,179,888
$7,182/yr taxListing Courtesy of REMAX CONNECT REALTY

135 NEW LAKESHORE Road, Port Dover
House$1,179,950
$6,279/yr taxListing Courtesy of StreetCity Realty Inc.

21 NOTTINGHAM CRESCENT, Brampton (Westgate)
House$1,179,999
$7,408/yr taxListing Courtesy of RE/MAX GOLD REALTY INC.

163 BEACONSFIELD AVENUE, Toronto (Little Portugal)
Row / Townhouse$1,180,000
$5,701/yr taxListing Courtesy of ROYAL LEPAGE SUPREME REALTY
Similar Properties ?Active Comparables — Search CriteriaSearch Radius2 kmPrice Range±5%Match Home TypeYesMatch BedroomsYes
No active comparables found in this area.
No rental comparables found in this area.
Sold Comparables
Access to sold property data requires a registered and verified account with TRREB DDF integration.
Coming SoonRented Comparables
Access to rented property data requires a registered and verified account with TRREB DDF integration.
Coming SoonBook a Viewing
805B ATHOL STREET, Whitby (Downtown Whitby), Ontario, L1N4A1
