73 RENFREW AVENUE, Ottawa, Ontario, K1S1Z4
MLS: X12984860 | Other
$2,249,999






























Property Description
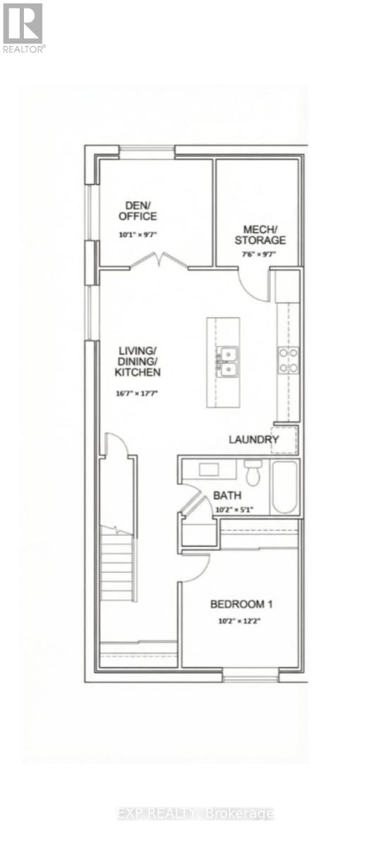
Discover an exceptional investment opportunity in the heart of the Glebe with this legal, fully turnkey, fully rented 5plex, essentially rebuilt from the ground up in 2017/2018. Featuring 2 spacious 2 bedroom units and 3 bright 1 bedroom units each equipped with in unit laundry. This property offers modern finishes, quality construction throughout, and strong tenant appeal. With stable long term tenants and annual rent increases already in place, the building provides reliable, steadily growing income. Ideally located just steps from shops, restaurants, parks, and the Canal, it sits in one of Ottawa's most sought after rental markets. A rare chance to own a premium, low maintenance investment property in an unbeatable location a true value for investors seeking dependable returns and long term growth.View featured sheets for more information. 3 units will be vacant as of end of April/May 1st (currently looking for new tenants). (id:64974)
Quick Facts
- Property Type: Other
- Bedrooms: 7 (7 above)
- Bathrooms: 5
- Fireplaces: Yes
- Parking: 2.0 spaces (No Garage)
- Frontage: 33 ft (10.1 m)
Costs
- Annual Taxes: $14,136.00
Listing Provided by: ROYAL LEPAGE INTEGRITY REALTY
Board: Ottawa Real Estate Board
Data provided via CREA DDF®.
Detailed Features
Interior & Systems
- Heating: Forced air, Natural gas
- Cooling: Central air conditioning
- Basement: Finished, N/A
- Appliances: Washer, Refrigerator, Water meter, Dishwasher, Stove, Dryer, Water Heater
Exterior & Construction
- Exterior: Brick, Stone
- Foundation: Concrete
- Sewer: Sanitary sewer
- Water: Municipal water
Lot & Land
- Frontage: 33 ft (10.1 m)
- Zoning: R3P
Community & Neighbourhood
- Neighbourhood: 4401 - Glebe
Listing Information
Listing History
MLS listing activity for 73 RENFREW AVENUE, Ottawa, Ontario, K1S1Z4 — dates reflect when changes were recorded in the DDF
🚗 Travel times
Neighborhood Walkability
Mortgage & Cost Calculators
Nearby Homes ?Nearby Homes — Search CriteriaSearch Radius1 kmPrice Range±5%Match BedroomsYesMatch BathroomsYes

90 POWELL AVENUE, Ottawa
Triplex$3,150,000
$17,744/yr taxListing Courtesy of REVEL REALTY INC.

270 ARLINGTON AVENUE, Ottawa
Fourplex$1,448,000
$9,881/yr taxListing Courtesy of ONE PERCENT REALTY LTD.

176 ARLINGTON AVENUE, Ottawa
Duplex$899,900
$7,947/yr taxListing Courtesy of ENGEL & VOLKERS OTTAWA

251 ARLINGTON AVENUE, Ottawa
Duplex$795,000
$8,290/yr taxListing Courtesy of ENGEL & VOLKERS OTTAWA

212 FLORA STREET, Ottawa
Triplex$1,495,000
$11,280/yr taxListing Courtesy of RE/MAX HALLMARK REALTY GROUP

152 GLEBE AVENUE, Ottawa
Multi-Family$1,675,000
$12,755/yr taxListing Courtesy of ROYAL LEPAGE TEAM REALTY

1 - 516 BAY STREET, Ottawa
Other$1,800/mo
Listing Courtesy of RE/MAX HALLMARK REALTY GROUP

514 BAY STREET, Ottawa
Other$1,579,000
$11,436/yr taxListing Courtesy of RE/MAX HALLMARK REALTY GROUP

3 - 491 MCLEOD STREET, Ottawa
Triplex$1,750/mo
Listing Courtesy of ENGEL & VOLKERS OTTAWA

386-388 FIRST AVENUE, Ottawa
Duplex$1,899,900
$12,872/yr taxListing Courtesy of RE/MAX HALLMARK REALTY GROUP

3 - 570 GLADSTONE AVENUE, Ottawa
Fourplex$2,095/mo
Listing Courtesy of RE/MAX HALLMARK REALTY GROUP

303 - 506 GLADSTONE AVENUE, Ottawa
Other$1,825/mo
Listing Courtesy of ROYAL LEPAGE TEAM REALTY

100 - 506 GLADSTONE AVENUE, Ottawa
Other$2,150/mo
Listing Courtesy of ROYAL LEPAGE TEAM REALTY

138 SECOND AVENUE, Ottawa
Other$1,720/mo
Listing Courtesy of ICI SOURCE REAL ASSET SERVICES INC.

228 LEBRETON STREET N, Ottawa
Fourplex$1,375/mo
Listing Courtesy of SOLID ROCK REALTY
Similar Homes ?Similar Homes — Search CriteriaSearch Radius5 kmPrice Range±5%Match Home TypeYesMatch BedroomsYes

424 EAST 42ND Street, Hamilton
Multi-family$2,249,900
$11,139/yr taxListing Courtesy of RE/MAX Escarpment Realty Inc.

42 PARKVIEW HEIGHTS, Aylmer
Multi-Family$2,249,000
$20,347/yr taxListing Courtesy of ADVANCED REALTY SOLUTIONS INC.

455-457 SOMERSET STREET W, Ottawa
Other$2,240,000
$18,979/yr taxListing Courtesy of SLEEPWELL REALTY GROUP LTD

455-457 SOMERSET STREET W, Ottawa
Multi-Family$2,240,000
$18,979/yr taxListing Courtesy of SLEEPWELL REALTY GROUP LTD

1401 KING STREET E, Hamilton (Delta)
Multi-Family$2,225,000
$17,834/yr taxListing Courtesy of REAL BROKER ONTARIO LTD.

234, 236 WOODROFFE AVENUE, Ottawa
Fourplex$2,280,000
$6,200/yr taxListing Courtesy of EXP REALTY

374 HIGHWAY 8, Hamilton (Stoney Creek)
Other$2,295,000
$4,022/yr taxListing Courtesy of ROYAL LEPAGE MEADOWTOWNE REALTY

883 SOMERSET STREET W, Ottawa
Multi-Family$2,295,000
$14,150/yr taxListing Courtesy of ROYAL LEPAGE TEAM REALTY

374 HIGHWAY 8, Hamilton (Stoney Creek)
Multi-Family$2,295,000
$4,022/yr taxListing Courtesy of ROYAL LEPAGE MEADOWTOWNE REALTY

235 CANICE STREET, Orillia
Other$2,299,000
$10,733/yr taxListing Courtesy of GRANGE HALL REALTY INC.

2430 - 2432 FIRST STREET, Burlington (Brant)
Fourplex$2,299,000
$8,997/yr taxListing Courtesy of SAM MCDADI REAL ESTATE INC.

1131 AVENUE ROAD, Toronto (Yonge-Eglinton)
Other$2,299,900
$9,826/yr taxListing Courtesy of HARVEY KALLES REAL ESTATE LTD.

1046 DOVERCOURT ROAD, Toronto (Dovercourt-Wallace Emerson-Junction)
Multi-family$2,299,988
$7,120/yr taxListing Courtesy of FOREST HILL REAL ESTATE INC.

4049 6 Highway, Hamilton
Multi-family$2,200,000
$6,884/yr taxListing Courtesy of RE/MAX Escarpment Realty Inc.

531 MILL STREET, Windsor
Multi-Family$2,300,000
Listing Courtesy of MANOR WINDSOR REALTY LTD.
Similar Properties ?Active Comparables — Search CriteriaSearch Radius2 kmPrice Range±5%Match Home TypeYesMatch BedroomsYes
No active comparables found in this area.
No rental comparables found in this area.
Sold Comparables
Access to sold property data requires a registered and verified account with TRREB DDF integration.
Coming SoonRented Comparables
Access to rented property data requires a registered and verified account with TRREB DDF integration.
Coming SoonBook a Viewing
73 RENFREW AVENUE, Ottawa, Ontario, K1S1Z4
