4049 6 Highway, Hamilton, Ontario, L0R1W0
MLS: 40800378 | Multi-family
$2,200,000












































Property Description
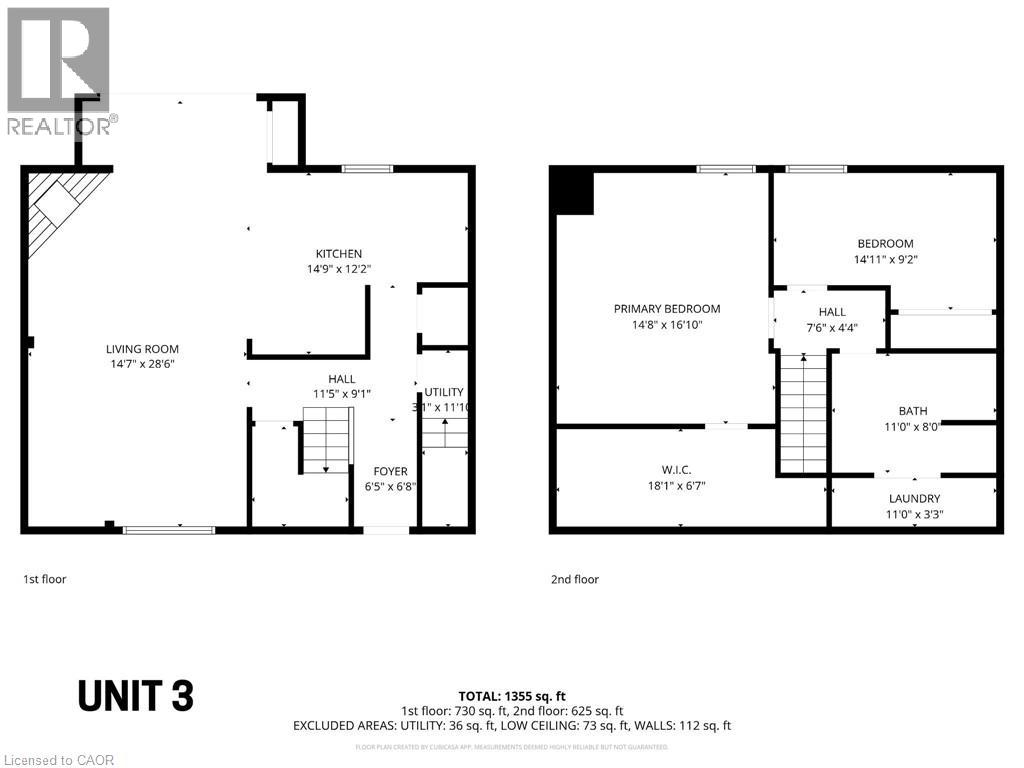
Rare opportunity to acquire a 10.1-acre parcel at the corner of a high-traffic highway, offering exceptional visibility, strong frontage, and long-term upside. Located just minutes to the airport, this strategically positioned property is currently zoned primarily Agricultural and provides immediate income potential with future redevelopment or severance possibilities, subject to approvals. The property includes two versatile, freestanding buildings with separately metered units, offering flexibility for a range of uses such as residential, office, or service-related applications (subject to zoning). The buildings comprise a total of five self-contained units, all vacant, allowing a purchaser to establish market rents or occupy as required. The unit mix includes one one-bedroom unit and four two-bedroom units. With excellent access, a prominent corner location, and exposure along a major corridor surrounded by agricultural and service-commercial uses, this offering is ideal for investors, owner-operators, or buyers seeking land banking opportunities with income and future potential. (id:64974)
Quick Facts
- Property Type: Multi-family
- Bedrooms: 9
- Bathrooms: 6
- Living Area: 4,009 sq ft (372.4 m²)
- Above Grade: 4,009 sq ft (372.4 m²)
- Year Built: 1975
- Ownership: Freehold
- Parking: 20.0 spaces
- Lot Size: 10.1000 acres (4.09 ha)
- Frontage: 699 ft (213.1 m)
Costs
- Annual Taxes: $6,884.10
Listing Provided by: RE/MAX Escarpment Realty Inc.
Board: Cornerstone Association of REALTORS®
Data provided via CREA DDF®.
Detailed Features
Interior & Systems
- Heating: Forced air, Natural gas
- Cooling: None
- Basement: Unfinished, Full
Exterior & Construction
- Exterior: Stucco
- Foundation: Block
- Sewer: Septic System
- Water: Municipal water
Lot & Land
- Lot Size: 10.1000 acres (4.09 ha)
- Frontage: 699 ft (213.1 m)
- Features: Crushed stone driveway
- Zoning: A1/P8
Community & Neighbourhood
- Community: High Traffic Area, School Bus
- Subdivision: 530 - Rural Glanbrook
Listing Information
Listing History
MLS listing activity for 4049 6 Highway, Hamilton, Ontario, L0R1W0 — dates reflect when changes were recorded in the DDF
Location & Neighborhood
🚗 Travel times
Neighborhood Walkability
Mortgage & Cost Calculators
Nearby Homes ?Nearby Homes — Search CriteriaSearch Radius1 kmPrice Range±30%Match BedroomsNoMatch BathroomsNo
Similar Homes ?Similar Homes — Search CriteriaSearch Radius5 kmPrice Range±5%Match Home TypeYesMatch BedroomsYes

581 CATARAQUI STREET, Windsor
Multi-family$2,200,000
Listing Courtesy of ROYAL LEPAGE BINDER REAL ESTATE

42 PARKVIEW HEIGHTS, Aylmer
Multi-Family$2,249,000
$20,347/yr taxListing Courtesy of ADVANCED REALTY SOLUTIONS INC.

531 MILL STREET, Windsor
Multi-Family$2,249,000
Listing Courtesy of MANOR WINDSOR REALTY LTD.

424 EAST 42ND Street, Hamilton
Multi-family$2,249,900
$11,139/yr taxListing Courtesy of RE/MAX Escarpment Realty Inc.

28 MCCOLL STREET, Quinte West (Trenton Ward)
Multi-Family$2,149,000
$14,323/yr taxListing Courtesy of RE/MAX REALTRON REALTY INC.

16 COLUMBIA Street W, Waterloo
Fourplex$2,260,000
$20,934/yr taxListing Courtesy of RE/MAX Real Estate Centre Inc.

168 TEXAS ROAD, Amherstburg
Multi-Family$2,100,000
Listing Courtesy of REALTY ONE GROUP ICONIC BROKERAGE

1707-1711 Ford BOULEVARD, Windsor
Multi-Family$2,100,000
Listing Courtesy of STAKE REALTY INC.

867 JERSEYVILLE Road W, Ancaster
Triplex$2,100,000
$13,066/yr taxListing Courtesy of RE/MAX Escarpment Realty Inc.

15 FLORAL CRESCENT, Kitchener
Multi-Family$2,099,000
$25,500/yr taxListing Courtesy of HomeLife Power Realty Inc
Property Comparables ?Active Comparables — Search CriteriaSearch Radius2 kmPrice Range±15%Match Home TypeYesMatch BedroomsYes
No active comparables found in this area.
No rental comparables found in this area.
No sold comparables found at this radius. Zoom out on the map to broaden the search area.
No leased comparables found. Rented data requires TRREB DDF integration; the map and search will populate automatically once enabled.
Book a Viewing
4049 6 Highway, Hamilton, Ontario, L0R1W0



