65 BROOKLYNE Road, Cambridge, Ontario, N1R1C6
MLS: 40816152 | Vacant Land
$780,000







Property Description
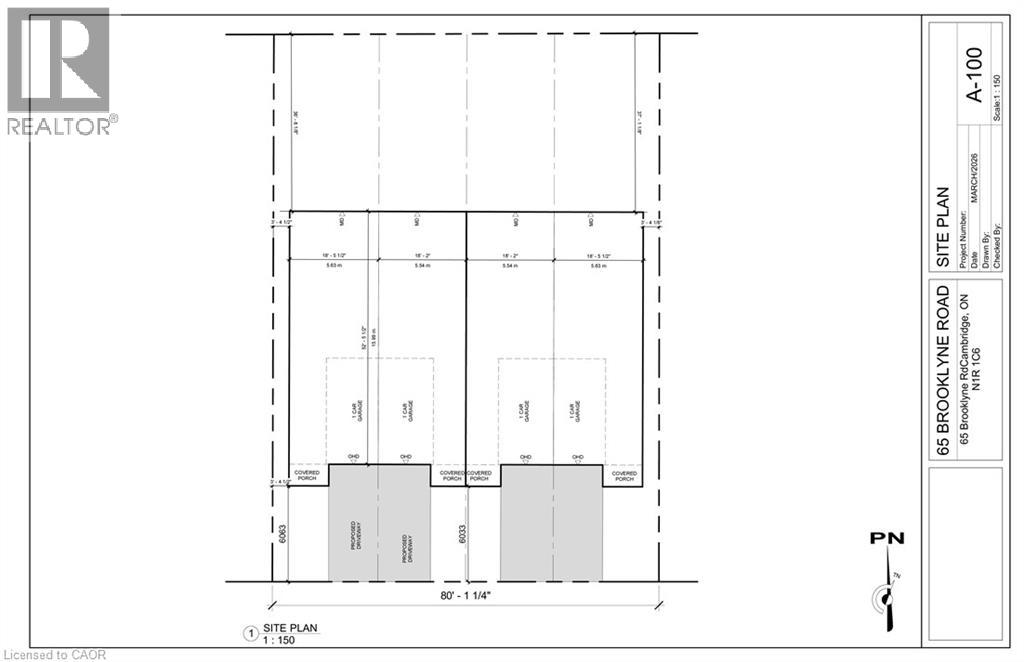
Carry the property while you plan. Build when you’re ready. Development-focused opportunity in a proven end-user location in Cambridge, with concept plans available for four freehold townhomes (not approved yet). Located within Cambridge’s updated R2 zoning framework, supporting low-density residential development and aligning with current housing intensification initiatives. Proposed plans feature four freehold townhomes, each approximately 1,783 sq ft with 3 bedrooms, 2.5 bathrooms, open-concept layouts, attached garages, and walk-out basement potential—an ideal product for today’s buyer. Positioned to take advantage of current new construction incentives, including potential HST rebates for end users, supporting strong resale demand. The property sits on an 80 ft x 110 ft lot and backs onto a laneway, offering flexibility for site design and access. Survey, site plan, and architectural drawings are available. An existing 5-bedroom, 2-bath bungalow is currently configured as a 2-unit property with a walk-out basement and separate access. The home is vacant and offers flexibility for holding, rental income, or financing during the planning and permit phase. Located in an established neighbourhood with strong fundamentals, within walking distance to schools and parks, access to transit nearby, and minutes to shopping, amenities, and major routes—supporting long-term end-user demand. (id:64974)
Quick Facts
- Property Type: Vacant Land
- Bedrooms: None
- Bathrooms: None
- Ownership: Freehold
- Lot Size: 0.2000 acres (0.08 ha)
- Frontage: 80 ft (24.4 m)
Costs
- Annual Taxes: $3,840.00
Listing Provided by: RE/MAX REAL ESTATE CENTRE INC., BROKERAGE
Board: Cornerstone Association of REALTORS®
Data provided via CREA DDF®.
Detailed Features
Interior & Systems
- Basement: None
- Utilities: Water, Natural Gas, Electricity, Cable
Exterior & Construction
- Sewer: Municipal sewage system
- Water: None
Lot & Land
- Lot Size: 0.2000 acres (0.08 ha)
- Frontage: 80 ft (24.4 m)
- Zoning: R2
Community & Neighbourhood
- Community: High Traffic Area
- Subdivision: 30 - Elgin Park/Coronation
Listing Information
Listing History
MLS listing activity for 65 BROOKLYNE Road, Cambridge, Ontario, N1R1C6 — dates reflect when changes were recorded in the DDF
🚗 Travel times
Neighborhood Walkability
Mortgage & Cost Calculators
Nearby Homes ?Nearby Homes — Search CriteriaSearch Radius1 kmPrice Range±5%Match BedroomsYesMatch BathroomsYes

15 ISHERWOOD Avenue, Cambridge
Vacant Land$649,000
$11,729/yr taxListing Courtesy of RE/MAX TWIN CITY REALTY INC.

15 ISHERWOOD AVENUE, Cambridge
Vacant Land$649,000
$11,729/yr taxListing Courtesy of RE/MAX TWIN CITY REALTY INC.
Similar Homes ?Similar Homes — Search CriteriaSearch Radius5 kmPrice Range±5%Match Home TypeYesMatch BedroomsYes

1 PRINCETON COMMON STREET, St. Catharines (Lakeport)
Condo$780,000
$6,265/yr taxListing Courtesy of REVEL Realty Inc., Brokerage

99 HOLLAND STREET E, Bradford West Gwillimbury (Bradford)
Vacant Land$779,000
$6,537/yr taxListing Courtesy of TESA REAL ESTATE INC.

185 COMPTON AVENUE, Ottawa
Vacant Land$779,000
$3,964/yr taxListing Courtesy of COLDWELL BANKER FIRST OTTAWA REALTY

PT LT63 COUNTY RD 7, Prince Edward County (North Marysburg Ward)
Vacant Land$775,000
$3,264/yr taxListing Courtesy of MCCAFFREY REALTY INC., BROKERAGE

LOT 1 BAYBERRY LANE, Niagara-on-the-Lake (Town)
Vacant Land$775,000
$2,487/yr taxListing Courtesy of REVEL Realty Inc., Brokerage

1419 PORT STANTON PARKWAY, Severn
Vacant Land$775,000
$1,262/yr taxListing Courtesy of ROYAL LEPAGE RCR REALTY

237 WESTBROOK ROAD, Ottawa
Vacant Land$775,000
$5,685/yr taxListing Courtesy of INNOVATION REALTY LTD.

30 - 383 DAVENTRY WAY, Middlesex Centre (Komoka)
Condo$774,900
$4,132/yr taxListing Courtesy of RE/MAX ADVANTAGE SANDERSON REALTY

242 HILL STREET, London East (East K)
Vacant Land$789,000
$1,557/yr taxListing Courtesy of RE/MAX ADVANTAGE REALTY LTD.

11 BACKUS COURT, Markham (Raymerville)
Vacant Land$789,000
Listing Courtesy of CENTURY 21 LEADING EDGE REALTY INC.

6 - 383 DAVENTRY WAY, Middlesex Centre (Kilworth)
Condo$789,900
$4,496/yr taxListing Courtesy of ROYAL LEPAGE TRILAND REALTY

N/A ROCKY REEF ROAD, Magnetawan
Vacant Land$790,000
$3,940/yr taxListing Courtesy of RE/MAX Parry Sound Muskoka Realty Ltd

N/A PARK ROAD, Georgina (Sutton & Jackson's Point)
Vacant Land$795,000
$2,669/yr taxListing Courtesy of RE/MAX ALL-STARS REALTY INC.

1248 BEIERS ROAD, Gravenhurst (Morrison)
Vacant Land$799,000
$1,602/yr taxListing Courtesy of REAL BROKER ONTARIO LTD.

LT 34 CON 23 CONCESSION 24, Georgian Bluffs
Vacant Land$799,000
$1,960/yr taxListing Courtesy of RE/MAX Grey Bruce Realty Inc.
Similar Properties ?Active Comparables — Search CriteriaSearch Radius2 kmPrice Range±5%Match Home TypeYesMatch BedroomsYes
No active comparables found in this area.
No rental comparables found in this area.
Sold Comparables
Access to sold property data requires a registered and verified account with TRREB DDF integration.
Coming SoonRented Comparables
Access to rented property data requires a registered and verified account with TRREB DDF integration.
Coming SoonBook a Viewing
65 BROOKLYNE Road, Cambridge, Ontario, N1R1C6
