15 ISHERWOOD Avenue, Cambridge, Ontario, K1D1Z0
MLS: 40812266 | Vacant Land
$649,000

Property Description
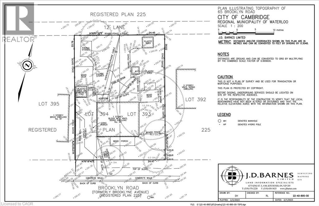
Centrally located piece of land zoned for Commercial Professional Offices with an allowance for Residential space above. Phase 1 Environmental Site Assessment has been completed on property. Site plan is available for possible development concept. (id:64974)
Directions: Hwy 24 south (Hespeler Rd). Turn right on Isherwood. Property is just before 25 Isherwood on the bend on the right.
Quick Facts
- Property Type: Vacant Land
- Bedrooms: None
- Bathrooms: None
- Ownership: Freehold
- Frontage: 384 ft (117 m)
Costs
- Annual Taxes: $11,728.58
Listing Provided by: RE/MAX TWIN CITY REALTY INC.
Board: Cornerstone Association of REALTORS®
Data provided via CREA DDF®.
Detailed Features
Interior & Systems
- Basement: None
Lot & Land
- Frontage: 384 ft (117 m)
- Features: Southern exposure
- Zoning: C2(O)
Community & Neighbourhood
- Subdivision: 30 - Elgin Park/Coronation
Listing Information
Listing History
Buy/Sell/Terminated/Expired listing history for 15 ISHERWOOD Avenue, Cambridge, Ontario, K1D1Z0
Location & Neighborhood
📍
🚗 Travel times
Neighborhood Walkability
Mortgage & Cost Calculators
Nearby Homes (Within 2km)
Similar Homes
Similar Properties
Active Comparables
Rent Comparables
Sold Comparables
Rented Comparables
No rental comparables found in this area.
Sold Comparables
Access to sold property data requires a registered and verified account with TRREB DDF integration.
Coming SoonRented Comparables
Access to rented property data requires a registered and verified account with TRREB DDF integration.
Coming Soon
























