237 WESTBROOK ROAD, Ottawa, Ontario, K0A1L0
MLS: X12987752 | Vacant Land
$775,000


Property Description
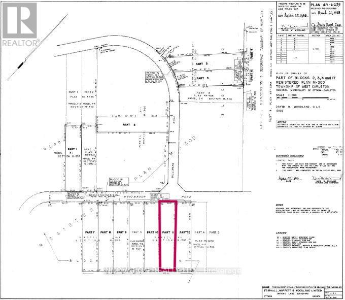
Prime opportunity to secure a 1-acre parcel in the highly sought-after West Carleton Industrial Park. Featuring desirable RG4 zoning, this property offers exceptional flexibility for a wide range of industrial uses. Strategically positioned just minutes from the Highway 417 interchange, it delivers outstanding connectivity to Highways 417 and 416-providing seamless access to major markets including Montreal, Toronto, and the U.S. corridor. An ideal location for businesses looking to maximize visibility, efficiency, and growth potential. (id:64974)
Quick Facts
- Property Type: Vacant Land
- Bedrooms: None
- Bathrooms: None
- Living Area: 1 sq ft (0.1 m²)
- Lot Size: 1.0000 acres (0.4 ha)
- Frontage: 98 ft (29.9 m)
Costs
- Annual Taxes: $5,685.00 (2025)
Listing Provided by: INNOVATION REALTY LTD.
Board: Ottawa Real Estate Board
Data provided via CREA DDF®.
Detailed Features
Lot & Land
- Lot Size: 1.0000 acres (0.4 ha)
- Frontage: 98 ft (29.9 m)
- Zoning: RG4 - Rural General Industrial
Community & Neighbourhood
- Neighbourhood: 9104 - Huntley Ward (South East)
Listing Information
Listing History
MLS listing activity for 237 WESTBROOK ROAD, Ottawa, Ontario, K0A1L0 — dates reflect when changes were recorded in the DDF
🚗 Travel times
Neighborhood Walkability
Mortgage & Cost Calculators
Similar Homes ?Similar Homes — Search CriteriaSearch Radius5 kmPrice Range±5%Match Home TypeYesMatch BedroomsYes

PT LT63 COUNTY RD 7, Prince Edward County (North Marysburg Ward)
Vacant Land$775,000
$3,264/yr taxListing Courtesy of MCCAFFREY REALTY INC., BROKERAGE

1419 PORT STANTON PARKWAY, Severn
Vacant Land$775,000
$1,262/yr taxListing Courtesy of ROYAL LEPAGE RCR REALTY

LOT 1 BAYBERRY LANE, Niagara-on-the-Lake (Town)
Vacant Land$775,000
$2,487/yr taxListing Courtesy of REVEL Realty Inc., Brokerage

30 - 383 DAVENTRY WAY, Middlesex Centre (Komoka)
Condo$774,900
$4,132/yr taxListing Courtesy of RE/MAX ADVANTAGE SANDERSON REALTY

185 COMPTON AVENUE, Ottawa
Vacant Land$779,000
$3,964/yr taxListing Courtesy of COLDWELL BANKER FIRST OTTAWA REALTY

99 HOLLAND STREET E, Bradford West Gwillimbury (Bradford)
Vacant Land$779,000
$6,537/yr taxListing Courtesy of TESA REAL ESTATE INC.

1 PRINCETON COMMON STREET, St. Catharines (Lakeport)
Condo$780,000
$6,265/yr taxListing Courtesy of REVEL Realty Inc., Brokerage

65 BROOKLYNE Road, Cambridge
Vacant Land$780,000
$3,840/yr taxListing Courtesy of RE/MAX REAL ESTATE CENTRE INC., BROKERAGE

242 HILL STREET, London East (East K)
Vacant Land$789,000
$1,557/yr taxListing Courtesy of RE/MAX ADVANTAGE REALTY LTD.

11 BACKUS COURT, Markham (Raymerville)
Vacant Land$789,000
Listing Courtesy of CENTURY 21 LEADING EDGE REALTY INC.

6 - 383 DAVENTRY WAY, Middlesex Centre (Kilworth)
Condo$789,900
$4,496/yr taxListing Courtesy of ROYAL LEPAGE TRILAND REALTY

N/A ROCKY REEF ROAD, Magnetawan
Vacant Land$790,000
$3,940/yr taxListing Courtesy of RE/MAX Parry Sound Muskoka Realty Ltd

6 - 231 CALLAWAY ROAD, London North (North R)
Condo$759,900
$5,695/yr taxListing Courtesy of OLIVER & ASSOCIATES KATIE WHITE REAL ESTATE BROKERAGE INC.

3573 EAST BAYSHORE ROAD, Owen Sound
Vacant Land$759,000
$2,347/yr taxListing Courtesy of Chestnut Park Real Estate

N/A PARK ROAD, Georgina (Sutton & Jackson's Point)
Vacant Land$795,000
$2,669/yr taxListing Courtesy of RE/MAX ALL-STARS REALTY INC.
Similar Properties ?Active Comparables — Search CriteriaSearch Radius2 kmPrice Range±5%Match Home TypeYesMatch BedroomsYes
No active comparables found in this area.
No rental comparables found in this area.
Sold Comparables
Access to sold property data requires a registered and verified account with TRREB DDF integration.
Coming SoonRented Comparables
Access to rented property data requires a registered and verified account with TRREB DDF integration.
Coming SoonBook a Viewing
237 WESTBROOK ROAD, Ottawa, Ontario, K0A1L0
