578 BALSAM POPLAR Street, Waterloo, Ontario, N2V0H6
MLS: 40806537 | House (Freehold)
$1,349,900


Property Description
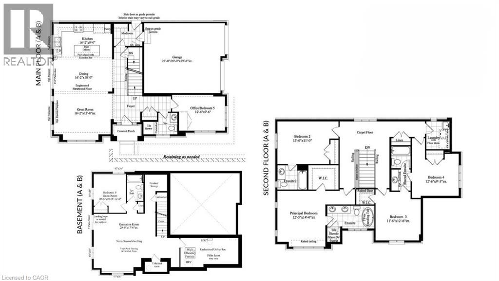
Soon to be built at 578 Balsam Poplar Street in Waterloo, this thoughtfully designed 4+1 bedroom, 5 bathroom home blends modern design with quality craftsmanship on a prominent corner lot. The exterior features a refined mix of stone, brick, and stucco, with brick continuing along the sides and rear for a cohesive finish. Insulated garage doors, black or taupe exterior windows, and a concrete driveway enhance the home’s contemporary presence. Inside, engineered hardwood flooring runs throughout the main level, complemented by 8-foot doors that add to the sense of scale. The open concept living and dining area flows seamlessly into a spacious kitchen anchored by a large island and outfitted with quartz countertops and Fisher & Paykel appliances. Quartz surfaces continue throughout the home, offering both style and durability. An oak hardwood staircase provides a timeless focal point. A practical side entrance leads into a well-designed mudroom with convenient access to the home, while a private office that can easily function as a bedroom and a 3-piece bathroom complete the main floor. Upstairs, four generously sized bedrooms provide comfortable accommodations. Two share a bathroom, one features its own ensuite, and the primary suite includes a large walk-in closet and a private ensuite bath. The fully finished basement offers impressive 9-foot ceilings, a spacious recreation room, an additional bedroom, and a 3-piece bathroom, creating flexible space for extended family or guests. With a finished basement, double car garage, and quality finishes throughout, this is a rare opportunity to own a newly built home in a sought-after Waterloo neighbourhood. (id:64974)
Quick Facts
- Property Type: House (Freehold)
- Style: 2 Level
- Bedrooms: 5 (4 above, 1 below)
- Bathrooms: 5
- Living Area: 3,405 sq ft (316.3 m²)
- Above Grade: 2,560 sq ft (237.8 m²)
- Below Grade: 845 sq ft (78.5 m²)
- Ownership: Freehold
- Attached: No
- Parking: 4.0 spaces (Attached Garage)
- Frontage: 48 ft (14.6 m)
Costs
- Annual Taxes: $2,266.77
Listing Provided by: Corcoran Horizon Realty
Board: Cornerstone Association of REALTORS®
Data provided via CREA DDF®.
Detailed Features
Interior & Systems
- Heating: Forced air, Natural gas
- Cooling: Central air conditioning
- Basement: Finished, Full
Exterior & Construction
- Style: 2 Level
- Exterior: Brick
- Foundation: Poured Concrete
- Sewer: Municipal sewage system
- Water: Municipal water
Lot & Land
- Frontage: 48 ft (14.6 m)
- Zoning: R6
Community & Neighbourhood
- Community: School Bus, Community Centre
- Subdivision: 443 - Columbia Forest/Clair Hills
Room Details (15 rooms)
Listing Information
Listing History
MLS listing activity for 578 BALSAM POPLAR Street, Waterloo, Ontario, N2V0H6 — dates reflect when changes were recorded in the DDF
Location & Neighborhood
🚗 Travel times
Neighborhood Walkability
Mortgage & Cost Calculators
Nearby Homes ?Nearby Homes — Search CriteriaSearch Radius1 kmPrice Range±30%Match BedroomsNoMatch BathroomsNo

559 BALSAM POPLAR Street, Waterloo
House$1,350,000
$8,439/yr taxListing Courtesy of Royal LePage Peaceland Realty

643 WILD RYE Street, Waterloo
House$1,064,900
$7,278/yr taxListing Courtesy of Royal LePage Wolle Realty

346 CANADA PLUM Street, Waterloo
House$1,099,900
$2,130/yr taxListing Courtesy of Peak Realty Ltd.

723 WOOD LILY Street, Waterloo
House$1,179,000
$8,275/yr taxListing Courtesy of eXp Realty, Brokerage

792 SNOWBERRY Court, Waterloo
House$1,498,000
$11,074/yr taxListing Courtesy of Royal LePage Peaceland Realty

45 AUTUMN WILLOW Drive, Waterloo
House$1,464,900
$1/yr taxListing Courtesy of Corcoran Horizon Realty

257 LADYSLIPPER Drive, Waterloo
House$1,699,900
$1/yr taxListing Courtesy of RE/MAX TWIN CITY REALTY INC.

255 LADYSLIPPER Drive, Waterloo
House$1,149,900
$1/yr taxListing Courtesy of RE/MAX TWIN CITY REALTY INC.

136 CINNAMON FERN Street, Waterloo
House$1,135,000
$7,114/yr taxListing Courtesy of Re/Max Icon Realty

346 CHOKECHERRY Crescent, Waterloo
House$1,068,000
$7,083/yr taxListing Courtesy of Royal LePage Peaceland Realty
Similar Homes ?Similar Homes — Search CriteriaSearch Radius5 kmPrice Range±5%Match Home TypeYesMatch BedroomsYes

109 ASHBERRY Place, Waterloo
House$1,299,900
$6,275/yr taxListing Courtesy of RE/MAX Twin City Realty Inc.

542 PARIS Road, Paris
House$1,349,900
$6,342/yr taxListing Courtesy of RE/MAX Escarpment Realty Inc.

4705 RATHKEALE ROAD, Mississauga (East Credit)
House$1,349,900
$8,188/yr taxListing Courtesy of REAL BROKER ONTARIO LTD.

8 MEDLEY CRESCENT, Markham (Milliken Mills East)
House$1,349,900
$6,554/yr taxListing Courtesy of REAL BROKER ONTARIO LTD.

LOT 9 KLEIN Circle, Ancaster
House$1,349,900
Listing Courtesy of Michael St. Jean Realty Inc.

439 NORTHLAKE Drive, Waterloo
House$1,349,900
$7,824/yr taxListing Courtesy of RE/MAX TWIN CITY REALTY INC.

2 SAMUEL STREET, Niagara-on-the-Lake (Town)
House$1,349,900
$9,964/yr taxListing Courtesy of RE/MAX NIAGARA REALTY LTD, BROKERAGE

2303 HILL RIDGE Court Unit# 5, Oakville
Condo - Row / Townhouse$1,349,900
$6,594/yr taxListing Courtesy of RE/MAX Escarpment Realty Inc.

1583 HALLSTONE Road, Brampton
House$1,349,900
$11,586/yr taxListing Courtesy of Real Broker Ontario Ltd.

21 OAKLEY Drive, Niagara-on-the-Lake
House$1,349,900
$6,880/yr taxListing Courtesy of RE/MAX Escarpment Golfi Realty Inc.
Property Comparables ?Active Comparables — Search CriteriaSearch Radius2 kmPrice Range±15%Match Home TypeYesMatch BedroomsYes

515 ST MORITZ Avenue, Waterloo
House$1,449,900
$8,384/yr taxListing Courtesy of RE/MAX TWIN CITY REALTY INC.

512 WOOD NETTLE Way, Waterloo
House$1,148,800
$7,357/yr taxListing Courtesy of Royal LePage Peaceland Realty
No rental comparables found in this area.
No sold comparables found at this radius. Zoom out on the map to broaden the search area.
No leased comparables found. Rented data requires TRREB DDF integration; the map and search will populate automatically once enabled.
Book a Viewing
578 BALSAM POPLAR Street, Waterloo, Ontario, N2V0H6









