57 12TH CONC Road E Unit# 430, Flamborough, Ontario, L0R1K0
MLS: 40775588 | Modular (Leasehold)
$315,000



































Property Description
Welcome to the serene setting at Fernbrook Resort, a 50+ lifestyle cottage atmosphere w/clubhouse amenities including an indoor & outdoor pool. This rarely offered 2 story home features 3 bedrooms, 1.5 bathrooms. The kitchen is open to the dining room and family room - great for entertaining. Main floor laundry plus 4-piece bathroom, and mud room. Upstairs master features 2pc ensuite + 2 additional bedrooms. Large front deck for enjoying your morning coffee. The clubhouse includes indoor pool, gym, outdoor pool, hot tub and suntan deck. Centrally located for quick access to QEW and 401, Waterdown, Hamilton, Guelph, Cambridge. Units cannot be financed or used as collateral for a loan. Lot fees are approx. $647/Month to be verified with park management which includes lot, taxes, water, water testing, and use of the resort amenities. Hydro, propane extra. Buyer must be approved by the Park. (id:64974)
Quick Facts
- Property Type: Modular (Leasehold)
- Style: 2 Level
- Bedrooms: 3 (3 above)
- Bathrooms: 1
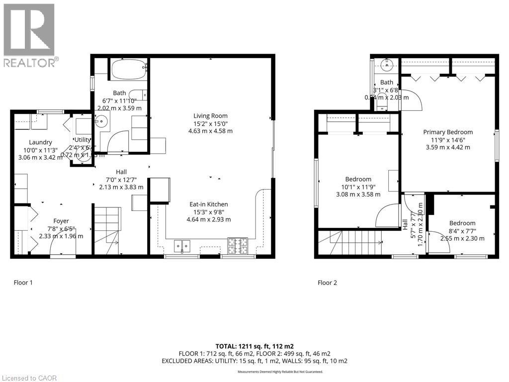
- Living Area: 1,211 sq ft (112.5 m²)
- Above Grade: 1,211 sq ft (112.5 m²)
- Year Built: 1975
- Ownership: Leasehold
- Attached: No
- Fireplaces: 3
- Parking: 4 spaces
Listing Provided by: Keller Williams Edge Realty
Board: Cornerstone Association of REALTORS®
Data provided via CREA DDF®.
Detailed Features
Interior & Systems
- Heating: Forced air, Propane
- Cooling: None
- Basement: None
- Appliances: Washer, Refrigerator, Stove, Dryer, Window Coverings
Exterior & Construction
- Style: 2 Level
- Exterior: Aluminum siding, Vinyl siding
- Foundation: Poured Concrete
- Sewer: Septic System
- Water: Well, Community Water System
Lot & Land
- Features: Conservation/green belt, Crushed stone driveway, Country residential
- Pool: Indoor pool
- Zoning: A2, P8
Community & Neighbourhood
- Community: Quiet Area, Community Centre
- Subdivision: 044 - Flamborough East
Room Details (8 rooms)
Listing Information
Listing History
Buy/Sell/Terminated/Expired listing history for 57 12TH CONC Road E Unit# 430, Flamborough, Ontario, L0R1K0
Location & Neighborhood
🚗 Travel times
Neighborhood Walkability
Mortgage & Cost Calculators
Similar Homes
Similar Properties
Sold Comparables
Access to sold property data requires a registered and verified account with TRREB DDF integration.
Coming SoonRented Comparables
Access to rented property data requires a registered and verified account with TRREB DDF integration.
Coming Soon





















