543 QUEENSTON Road, Cambridge, Ontario, N3H3J9
MLS: 40781296 | House (Freehold)
$879,900



















































Property Description
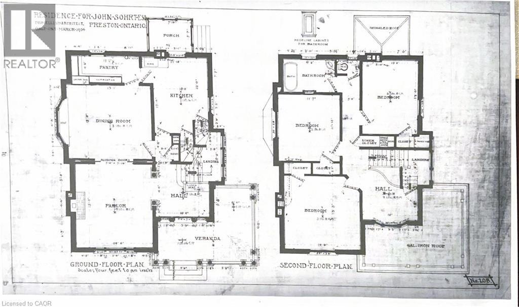
Welcome to 543 Queenston — a rare heritage masterpiece in the heart of Preston. Built 1905 and cared for by one family for six decades, this stunning red-brick Queen Anne-style home exudes character. From the wrap-around veranda (rebuilt 2015) to the tree-lined avenue steps from Uptown Preston, 3-bed, 3-bath home offers a blend of charm and convenience. Designated on the City of Cambridge’s heritage register, it’s ready for its next chapter with smart, local roots. As you approach, the craftsmanship of the covered veranda, rebuilt in 2015, stands out. Leaded-glass windows frame the front entry, while a distinctive shingled gable with round and Palladian windows grace the home’s south side, a hallmark of its historic design. A welcoming foyer opens to generous living and dining rooms with pegged oak floors, nearly 10-foot ceilings, and original glass-panelled pocket doors. Living room is anchored by a wood-burn fireplace, while the dining room has bay window seats and a built-in China cabinet that shows home’s character and history. The eat-in kitchen has plenty of workspace and storage and a butler’s pantry. Upstairs, the beautiful oak staircase leads to a large landing that connects to three generous bedrooms and a roomy family bathroom. While the bath awaits your modern touch, its size and separate water closet offer incredible potential. The upper attic is full of character could be transformed into a luxurious primary suite, studio, or family room. The expansive 58’ x 143’ lot provides ample space for a pool, garden, or future addition, and the detached single-car garage with reinforced bracing and a newer roof complements the six-car driveway. This home has seen thoughtful updates while preserving its original charm, including a new fence (2022), balcony door (2023), flat roof (2023), chimneys and flute (2023), landing bay windows (2023), attic windows (2023), all exterior cedar shakes (2023), hot water tank (2024, rented), and new porch steps (2025). (id:64974)
Quick Facts
- Property Type: House (Freehold)
- Style: 2 Level
- Bedrooms: 3 (3 above)
- Bathrooms: 3 (2 half)
- Living Area: 2,555 sq ft (237.4 m²)
- Above Grade: 2,433 sq ft (226.0 m²)
- Below Grade: 122 sq ft (11.3 m²)
- Year Built: 1905
- Ownership: Freehold
- Attached: No
- Fireplaces: 1
- Parking: 7 spaces (Detached Garage)
- Frontage: 58 ft (17.7 m)
Costs
- Annual Taxes: $4,936.00
Listing Provided by: SHAW REALTY GROUP INC.
Board: Cornerstone Association of REALTORS®
Data provided via CREA DDF®.
Detailed Features
Interior & Systems
- Heating: Hot water radiator heat, Radiant heat
- Cooling: None
- Basement: Partially finished, Partial
- Appliances: Washer, Refrigerator, Water softener, Dishwasher, Stove, Dryer
- Utilities: Natural Gas, Electricity, Cable, Telephone
- Fireplace Features: Wood, Other - See remarks
Exterior & Construction
- Style: 2 Level
- Exterior: Brick
- Foundation: Stone
- Sewer: Municipal sewage system
- Water: Municipal water
Lot & Land
- Frontage: 58 ft (17.7 m)
- Features: Crushed stone driveway
- Zoning: R4
Community & Neighbourhood
- Community: Community Centre
- Subdivision: 53 - Preston South
Room Details (14 rooms)
Listing Information
Listing History
Buy/Sell/Terminated/Expired listing history for 543 QUEENSTON Road, Cambridge, Ontario, N3H3J9
Location & Neighborhood
🚗 Travel times
Neighborhood Walkability
Mortgage & Cost Calculators
Nearby Homes (Within 2km)
Similar Homes
Similar Properties
No rental comparables found in this area.
Sold Comparables
Access to sold property data requires a registered and verified account with TRREB DDF integration.
Coming SoonRented Comparables
Access to rented property data requires a registered and verified account with TRREB DDF integration.
Coming Soon























