52 CESAR Place, Ancaster, Ontario, L9G0G3
MLS: 40768657 | House (Freehold)
$1,499,999


Property Description
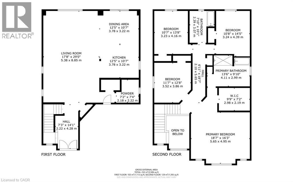
PRIVATE LENDING AVAILABLE BY THE BUILDER. 1.5% INTEREST, 7% DOWN. 3 YEARS FULLY OPEN - Option of Interest Paying Only! Option to further extend for two more years at 2% Brand New 2STOREY homes on Executive lots in the Heart of Ancaster, tucked away on a safe & quiet cul de sac road. This particular 2storey holds 2535 sf. with 4 beds, open living space and 2.5 baths with main floor laundry for easy living Loaded with pot lights, granite/quartz counter tops, and hardwood flooring of your choice. Take this opportunity to be the first owner of this home and make it your own! Seconds to Hwy Access, all amenities & restaurants. All Room sizes are approx, Changes have been made to floor plan layout. Built and can be shown. (id:64974)
Quick Facts
- Property Type: House (Freehold)
- Style: 2 Level
- Bedrooms: 4 (4 above)
- Bathrooms: 3 (1 half)
- Living Area: 2,535 sq ft (235.5 m²)
- Above Grade: 2,535 sq ft (235.5 m²)
- Ownership: Freehold
- Attached: No
- Fireplaces: 1
- Parking: 4.0 spaces (Attached Garage)
- Frontage: 43 ft (13.1 m)
Costs
- Annual Taxes: $1.00
Listing Provided by: RE/MAX Escarpment Realty Inc.
Board: Cornerstone Association of REALTORS®
Data provided via CREA DDF®.
Detailed Features
Interior & Systems
- Heating: Forced air
- Cooling: Central air conditioning
- Basement: Unfinished, Full
- Appliances: Central Vacuum - Roughed In
Exterior & Construction
- Style: 2 Level
- Exterior: Brick, Stone, Stucco
- Sewer: Municipal sewage system
- Water: Municipal water
Lot & Land
- Frontage: 43 ft (13.1 m)
- Features: Cul-de-sac, Balcony, Crushed stone driveway, No Pet Home
- Zoning: R1
Community & Neighbourhood
- Subdivision: 428 - Southcote/Duff’s Cors
Room Details (11 rooms)
Listing Information
Listing History
MLS listing activity for 52 CESAR Place, Ancaster, Ontario, L9G0G3 — dates reflect when changes were recorded in the DDF
Location & Neighborhood
🚗 Travel times
Neighborhood Walkability
Mortgage & Cost Calculators
Nearby Homes ?Nearby Homes — Search CriteriaSearch Radius1 kmPrice Range±30%Match BedroomsNoMatch BathroomsNo

56 CESAR Place, Ancaster
House$1,499,999
Listing Courtesy of RE/MAX Escarpment Realty Inc.

66 CESAR Place, Ancaster
House$1,299,888
$8,752/yr taxListing Courtesy of Royal LePage State Realty Inc.

57 CESAR Place, Ancaster
House$1,499,999
$1/yr taxListing Courtesy of RE/MAX Escarpment Realty Inc.

41 CESAR Place, Ancaster
House$1,499,999
$1/yr taxListing Courtesy of RE/MAX Escarpment Realty Inc.

35 CESAR Place, Ancaster
House$1,450,000
$1/yr taxListing Courtesy of RE/MAX Escarpment Realty Inc.

44 CESAR Place, Ancaster
House$1,499,900
$1/yr taxListing Courtesy of RE/MAX Escarpment Realty Inc.

40 CESAR Place, Ancaster
House$1,499,900
$1/yr taxListing Courtesy of RE/MAX Escarpment Realty Inc.

48 CESAR Place, Ancaster
House$1,499,900
$1/yr taxListing Courtesy of RE/MAX Escarpment Realty Inc.

570 WESTVIEW Avenue, Hamilton
House$1,099,900
$5,480/yr taxListing Courtesy of RE/MAX Escarpment Frank Realty

20 GRISTMILL Place, Hamilton
House$1,299,900
$8,700/yr taxListing Courtesy of Royal LePage State Realty Inc.
Similar Homes ?Similar Homes — Search CriteriaSearch Radius5 kmPrice Range±5%Match Home TypeYesMatch BedroomsYes

56 CESAR Place, Ancaster
House$1,499,999
Listing Courtesy of RE/MAX Escarpment Realty Inc.

48 CESAR Place, Ancaster
House$1,499,900
$1/yr taxListing Courtesy of RE/MAX Escarpment Realty Inc.

44 CESAR Place, Ancaster
House$1,499,900
$1/yr taxListing Courtesy of RE/MAX Escarpment Realty Inc.

40 CESAR Place, Ancaster
House$1,499,900
$1/yr taxListing Courtesy of RE/MAX Escarpment Realty Inc.

138 MILLER Drive, Ancaster
House$1,525,000
$7,686/yr taxListing Courtesy of RE/MAX Escarpment Realty Inc.

389 CLARENDON Drive, Ancaster
House$1,450,000
$7,048/yr taxListing Courtesy of Coldwell Banker Community Professionals

456 VALRIDGE Drive, Ancaster
House$1,449,000
$9,470/yr taxListing Courtesy of RIGHT AT HOME REALTY BROKERAGE
Property Comparables ?Active Comparables — Search CriteriaSearch Radius2 kmPrice Range±15%Match Home TypeYesMatch BedroomsYes

56 CESAR Place, Ancaster
House$1,499,999
Listing Courtesy of RE/MAX Escarpment Realty Inc.

48 CESAR Place, Ancaster
House$1,499,900
$1/yr taxListing Courtesy of RE/MAX Escarpment Realty Inc.

40 CESAR Place, Ancaster
House$1,499,900
$1/yr taxListing Courtesy of RE/MAX Escarpment Realty Inc.

44 CESAR Place, Ancaster
House$1,499,900
$1/yr taxListing Courtesy of RE/MAX Escarpment Realty Inc.

456 VALRIDGE Drive, Ancaster
House$1,449,000
$9,470/yr taxListing Courtesy of RIGHT AT HOME REALTY BROKERAGE

3 POSTANS Path, Ancaster
House$1,395,000
$7,964/yr taxListing Courtesy of RE/MAX Escarpment Realty Inc.

66 CESAR Place, Ancaster
House$1,379,888
$8,752/yr taxListing Courtesy of Royal LePage State Realty Inc.

91 ABBEY Close, Ancaster
House$1,329,000
$7,564/yr taxListing Courtesy of Re/Max Twin City Realty Inc

20 GRISTMILL Place, Hamilton
House$1,299,900
$8,700/yr taxListing Courtesy of Royal LePage State Realty Inc.

19 GALLEY Road, Ancaster
House$1,299,900
$7,764/yr taxListing Courtesy of Chase Realty Inc.
No rental comparables found in this area.
No leased comparables found. Rented data requires TRREB DDF integration; the map and search will populate automatically once enabled.
Book a Viewing
52 CESAR Place, Ancaster, Ontario, L9G0G3





