4049 6 Highway, Hamilton, Ontario, L0R1W0
MLS: 40801802 | Vacant Land
$2,200,000














Property Description
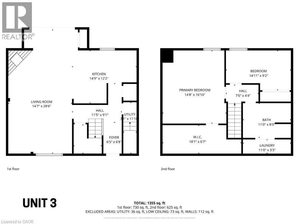
Rare opportunity to acquire a 10.1-acre parcel at the corner of a high-traffic highway, offering exceptional visibility, strong frontage, and long-term upside. Located just minutes to the airport, this strategically positioned property is currently zoned primarily Agricultural and provides immediate income potential with future redevelopment or severance possibilities, subject to approvals. The property includes two versatile, freestanding buildings with separately metered units, offering flexibility for a range of uses such as residential, office, or service-related applications (subject to zoning). The buildings comprise a total of five self-contained units, all vacant, allowing a purchaser to establish market rents or occupy as required. The unit mix includes one one-bedroom unit and four two-bedroom units. With excellent access, a prominent corner location, and exposure along a major corridor surrounded by agricultural and service-commercial uses, this offering is ideal for investors, owner-operators, or buyers seeking land banking opportunities with income and future potential. (id:64974)
Quick Facts
- Property Type: Vacant Land
- Bedrooms: None
- Bathrooms: None
- Ownership: Freehold
- Lot Size: 10.1000 acres (4.09 ha)
- Frontage: 699 ft (213.1 m)
Costs
- Annual Taxes: $6,884.00
Listing Provided by: RE/MAX Escarpment Realty Inc.
Board: Cornerstone Association of REALTORS®
Data provided via CREA DDF®.
Detailed Features
Interior & Systems
- Basement: None
- Utilities: Natural Gas, Electricity
Exterior & Construction
- Sewer: Septic System
- Water: Municipal water
Lot & Land
- Lot Size: 10.1000 acres (4.09 ha)
- Frontage: 699 ft (213.1 m)
- Features: Visual exposure, Country residential
- Zoning: A1/P8
Community & Neighbourhood
- Community: High Traffic Area
- Subdivision: 530 - Rural Glanbrook
Listing Information
Listing History
Buy/Sell/Terminated/Expired listing history for 4049 6 Highway, Hamilton, Ontario, L0R1W0
Location & Neighborhood
🚗 Travel times
Neighborhood Walkability
Mortgage & Cost Calculators
Similar Homes
Similar Properties
No rental comparables found in this area.
Sold Comparables
Access to sold property data requires a registered and verified account with TRREB DDF integration.
Coming SoonRented Comparables
Access to rented property data requires a registered and verified account with TRREB DDF integration.
Coming Soon


















