4 SUNSET PLACE, Huron-Kinloss, Ontario, N0G2R0
MLS: X12998234 | Vacant Land
$1,189,900







Property Description
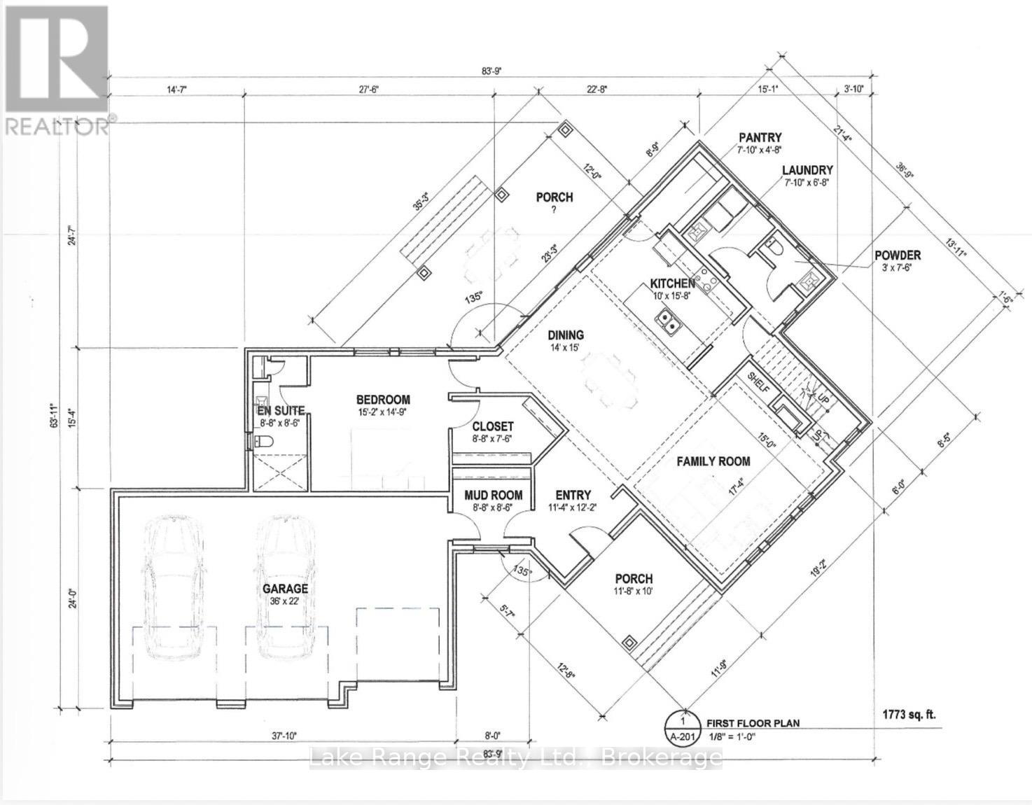
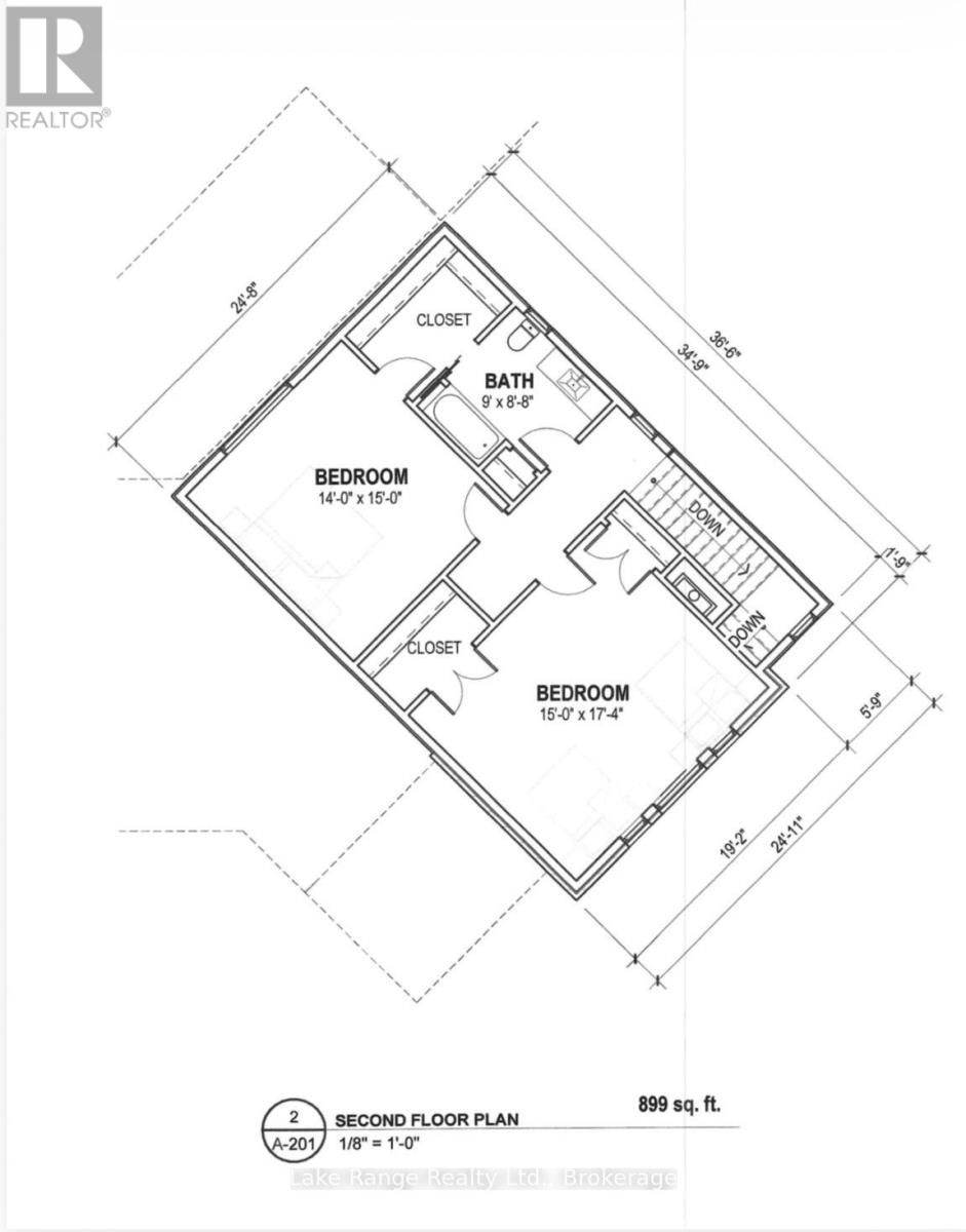
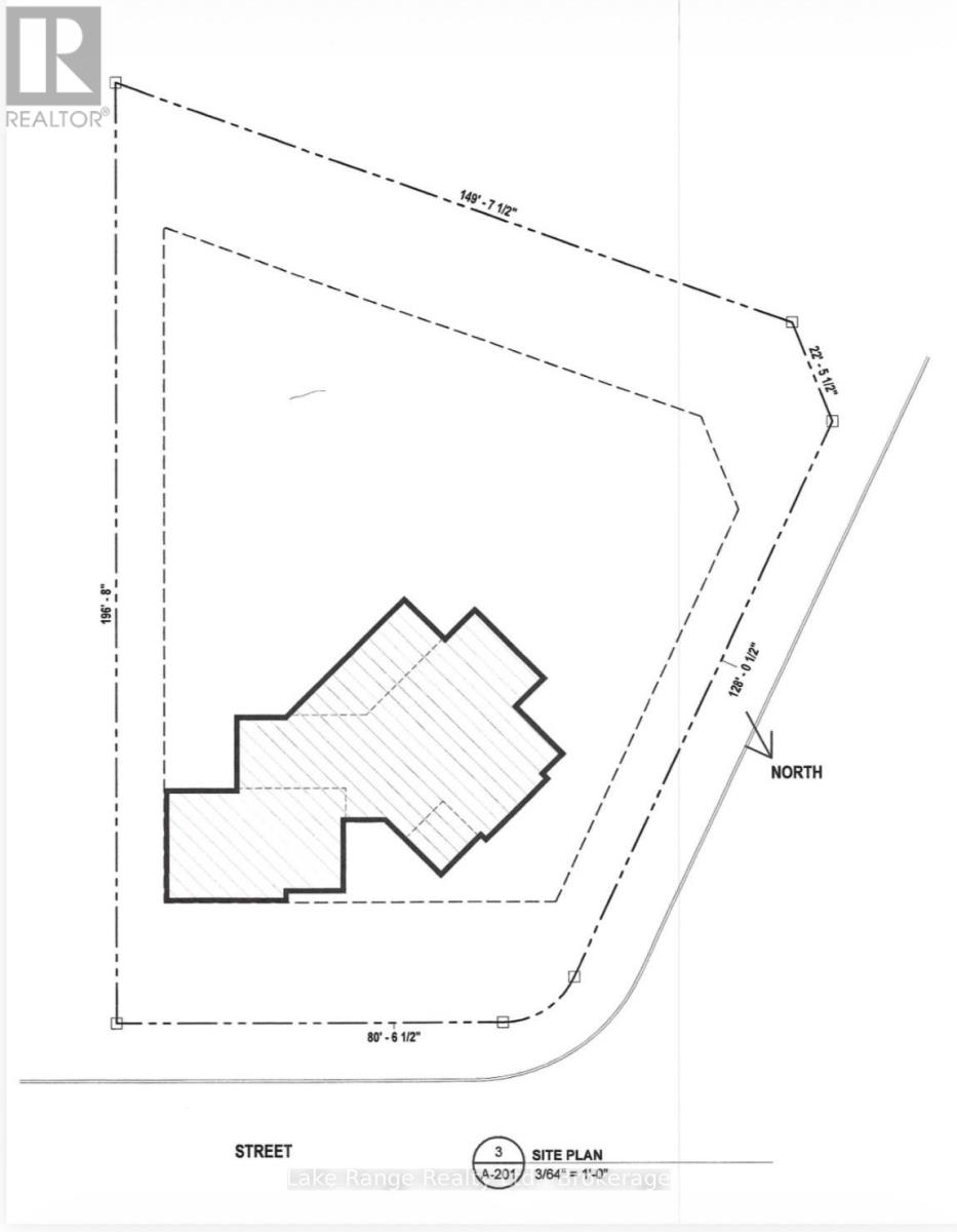
Here's your opportunity to secure this beautiful new, 2672 sq ft home with 3 car garage, on this generously sized residential lot in the highly regarded Sunset Place subdivision, just steps from the shoreline of Lake Huron. Measuring just under half an acre, this property offers an ideal blend of space, privacy, and lakeside lifestyle. The lot features a mix of cleared area and natural tree coverage, creating flexibility for home design while maintaining a peaceful, wooded atmosphere. Two nearby beach access points are within easy walking distance, allowing you to enjoy spectacular sunsets, refreshing swims, and relaxing evenings by the water. Located close to the Point Clark Marina, this setting is perfect for boating and fishing enthusiasts, while still offering the quiet charm of a well-established community. Municipal water, hydro, and natural gas are available at the road; a septic system will be required. Zoned R1 Residential, the property is subject to restrictive covenants that help preserve neighbourhood standards and long-term property value. Conveniently positioned approximately 20 km from Kincardine and 40 km from Bruce Power, this lot offers both tranquility and accessibility. An exceptional chance to build a custom home or seasonal retreat in one of the area's most desirable lakeside locations. (id:64974)
Quick Facts
- Property Type: Vacant Land
- Bedrooms: None
- Bathrooms: 0
- Frontage: 89 ft (27.2 m)
Costs
- Annual Taxes: $732.73
Listing Provided by: Lake Range Realty Ltd.
Board: OnePoint Association of REALTORS®
Data provided via CREA DDF®.
Detailed Features
Interior & Systems
- Basement: Crawl space
- Utilities: Electricity, Cable
Exterior & Construction
- Water: Municipal water
Lot & Land
- Frontage: 89 ft (27.2 m)
- Features: Irregular lot size
- Zoning: R1
Community & Neighbourhood
- Neighbourhood: Huron-Kinloss
Listing Information
Listing History
MLS listing activity for 4 SUNSET PLACE, Huron-Kinloss, Ontario, N0G2R0 — dates reflect when changes were recorded in the DDF
Location & Neighborhood
🚗 Travel times
Neighborhood Walkability
Mortgage & Cost Calculators
Nearby Homes ?Nearby Homes — Search CriteriaSearch Radius1 kmPrice Range±30%Match BedroomsNoMatch BathroomsNo

12 SUNSET PLACE, Huron-Kinloss
House$1,299,900
$7,327/yr taxListing Courtesy of Royal LePage Exchange Realty Co.

6 SUNSET PLACE, Huron-Kinloss
Vacant Land$979,900
$711/yr taxListing Courtesy of Lake Range Realty Ltd.

9 SUNSET PLACE, Huron-Kinloss
House$999,900
$7,370/yr taxListing Courtesy of Royal LePage RCR Realty

185 HURON ROAD, Huron-Kinloss
House$1,099,000
$7,393/yr taxListing Courtesy of RE/MAX Reliable Realty Inc

615 CAYUGA CRESCENT, Huron-Kinloss
House$849,000
$6,254/yr taxListing Courtesy of Royal LePage RCR Realty
Similar Homes ?Similar Homes — Search CriteriaSearch Radius5 kmPrice Range±5%Match Home TypeYesMatch BedroomsYes

237 FREDERICK STREET, Kitchener
Vacant Land$1,190,000
$15,458/yr taxListing Courtesy of CENTURY 21 PEOPLE'S CHOICE REALTY INC.

000 DEER CRESCENT, Norwich
Vacant Land$1,190,000
$1,575/yr taxListing Courtesy of RE/MAX a-b Realty Ltd Brokerage

2193A FERN GLEN ROAD S, McMurrich/Monteith (McMurrich)
Vacant Land$1,190,000
Listing Courtesy of Forest Hill Real Estate Inc.

3794 ALBION ROAD, Ottawa
Vacant Land$1,190,000
$3,469/yr taxListing Courtesy of LPT REALTY

1322 BOOMHAUER ROAD, Frontenac (Frontenac Centre)
Vacant Land$1,188,000
$4,095/yr taxListing Courtesy of RE/MAX ELITE REAL ESTATE

317704 6 & 10 HIGHWAY, Georgian Bluffs
Vacant Land$1,195,000
$1,052/yr taxListing Courtesy of Vantage Point Realty Ltd.

430 CHURCHILL AVENUE, King
Vacant Land$1,195,000
$4,765/yr taxListing Courtesy of RE/MAX HALLMARK REALTY LTD.

945 SHOREVIEW DRIVE, Innisfil
Vacant Land$1,198,000
$4,092/yr taxListing Courtesy of HOMELIFE FRONTIER REALTY INC.

4530 19TH SIDE ROAD, King (Pottageville)
Vacant Land$1,198,888
$5,565/yr taxListing Courtesy of RE/MAX EXPERTS

18833 LESLIE STREET, East Gwillimbury (Sharon)
Vacant Land$1,198,888
$3,039/yr taxListing Courtesy of RE/MAX HALLMARK YORK GROUP REALTY LTD.
Property Comparables ?Active Comparables — Search CriteriaSearch Radius2 kmPrice Range±15%Match Home TypeYesMatch BedroomsYes
No active comparables found in this area.
No rental comparables found in this area.
No sold comparables found at this radius. Zoom out on the map to broaden the search area.
No leased comparables found. Rented data requires TRREB DDF integration; the map and search will populate automatically once enabled.
Book a Viewing
4 SUNSET PLACE, Huron-Kinloss, Ontario, N0G2R0






