36 HOLLINGSWORTH STREET, Cramahe (Colborne), Ontario, K0K1S0
MLS: X12390675 | House (Freehold)
$719,000







































Property Description
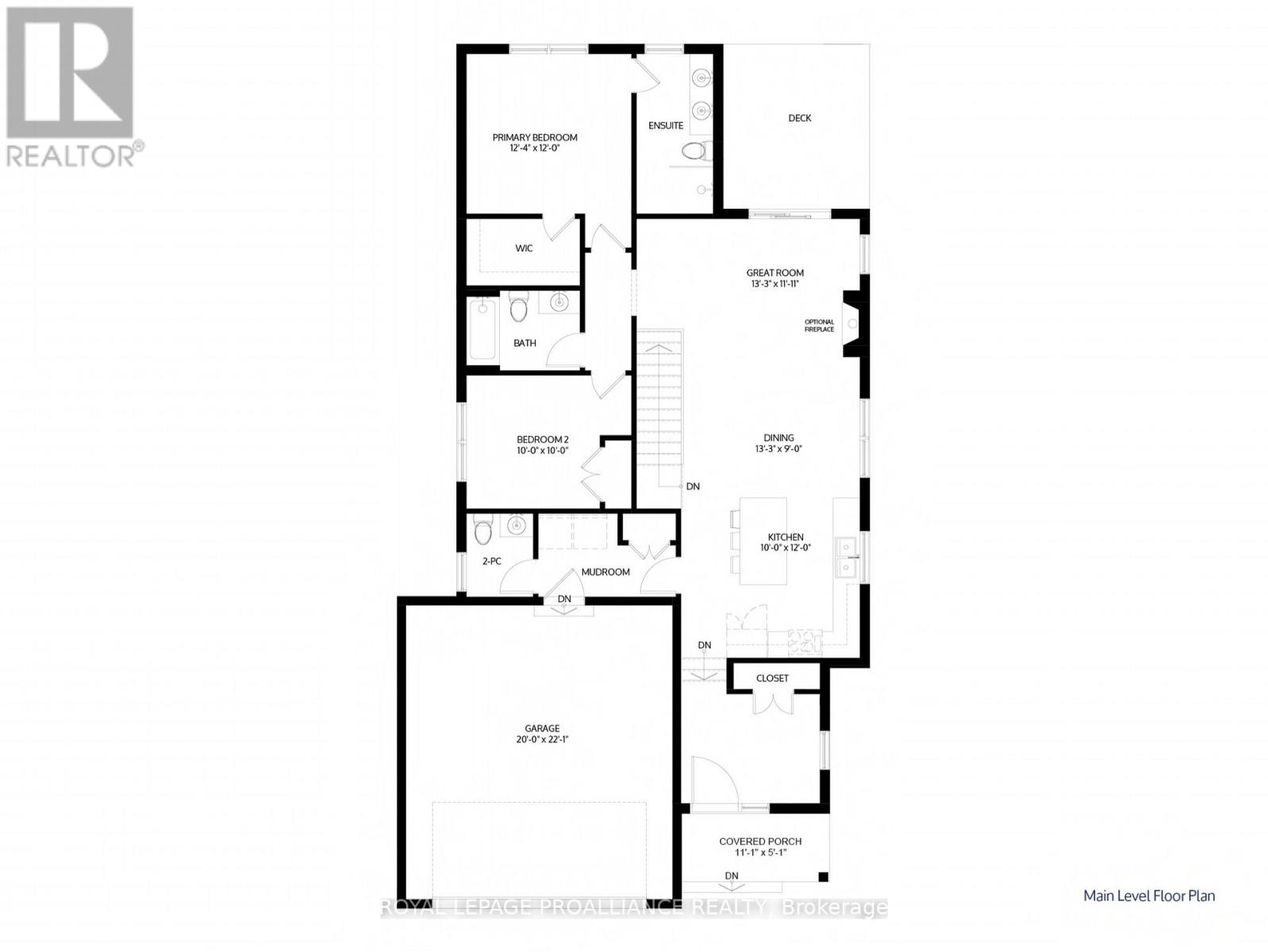
OPEN HOUSE - Check in at Eastfields Model Home 60 Willowbrook St., Colborne. The Greta is a charming detached bungalow that offers the perfect balance of simplicity and functionality in a compact design. With 2 bedrooms, 2.5 bathrooms, and 1,368 sq ft, its the smallest model in the Eastfields community, making it an ideal choice for those seeking ease of living without compromising on comfort. Upon entering through the spacious foyer, you'll find a closet for storage and a few stairs leading up to your main floor. The layout also offers access to a 2-car garage through a mudroom, complete with laundry, additional storage, and a powder room for convenience. The open-concept kitchen, dining, and great room create a spacious and inviting atmosphere, perfect for entertaining or relaxing. From the great room, step out onto the back deck, ideal for enjoying the outdoors. The primary bedroom features a generous walk-in closet and an ensuite bathroom, creating a private and comfortable space. Down the hall, an additional bedroom and a primary bathroom provide ample room for guests or family. Nestled in the serene and welcoming community of Colborne and built by prestigious local builder Fidelity Homes. This home comes packed with quality finishes including: Maintenance-free, Energy Star-rated NorthStar vinyl windows with Low-E-Argon glass; 9-foot smooth ceilings on the main floor; Designer Logan interior doors with sleek black Weiser hardware; Craftsman-style trim package with 5 1/2 baseboards and elegant casings around windows and doors; Premium cabinetry; Quality vinyl plank flooring; Moen matte Blackwater-efficient faucets in all bathrooms; Stylish, designer light fixtures throughout. Offering 7 Year TARION New Home Warranty. (id:64974)
Quick Facts
- Property Type: House (Freehold)
- Style: Bungalow
- Bedrooms: 2 (2 above)
- Bathrooms: 3 (1 half)
- Ownership: Freehold
- Attached: No
- Parking: 4 spaces (Attached Garage, Garage)
- Frontage: 12.2 m (40 ft)
Listing Provided by: ROYAL LEPAGE PROALLIANCE REALTY
Board: Central Lakes Association of REALTORS®
Data provided via CREA DDF®.
Detailed Features
Interior & Systems
- Heating: Forced air, Natural gas
- Cooling: Central air conditioning
- Basement: Unfinished, Full
- Appliances: Garage door opener, Garage door opener remote(s), Water Heater
- Flooring: Vinyl
- Utilities: Sewer, Electricity, Cable, Natural Gas Available
- Security: Smoke Detectors
Exterior & Construction
- Style: Bungalow
- Exterior: Vinyl siding
- Foundation: Poured Concrete
- Sewer: Sanitary sewer
- Water: Municipal water
Lot & Land
- Frontage: 12.2 m (40 ft)
- Features: Irregular lot size
Community & Neighbourhood
- Community: Community Centre
- Neighbourhood: Colborne
Room Details (5 rooms)
Listing Information
Listing History
Buy/Sell/Terminated/Expired listing history for 36 HOLLINGSWORTH STREET, Cramahe (Colborne), Ontario, K0K1S0
Location & Neighborhood
🚗 Travel times
Neighborhood Walkability
Mortgage & Cost Calculators
Nearby Homes (Within 2km)
Similar Homes
Similar Properties
No rental comparables found in this area.
Sold Comparables
Access to sold property data requires a registered and verified account with TRREB DDF integration.
Coming SoonRented Comparables
Access to rented property data requires a registered and verified account with TRREB DDF integration.
Coming Soon
























