19 HOLLINGSWORTH STREET, Cramahe (Colborne), Ontario, K0K1S0
MLS: X12870540 | Townhouse (Freehold)
$649,000






Property Description
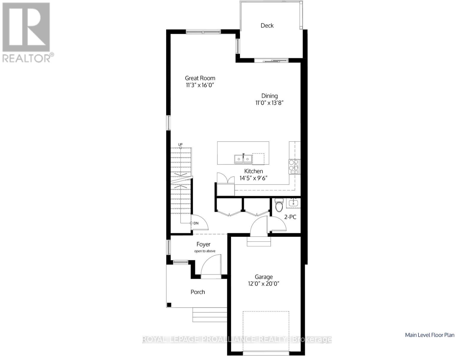
Introducing the DEVIN model, a beautifully crafted modern farmhouse style townhouse located in the picturesque community of Eastfields. Designed with timeless curb appeal, this home showcases charming vertical board and batten siding, rich wood accents, and classic gabled roof lines that create a warm and inviting first impression. Thoughtfully laid out, this exterior unit townhome offers 2 bedrooms and 2.5 bathrooms, blending contemporary comfort with rustic elegance. Step inside to a welcoming main-level foyer featuring double closets, a convenient 2-piece bathroom, and direct access to your single attached garage. Continue into the bright, open concept living space where the kitchen, dining, and living areas flow seamlessly together, ideal for both entertaining and everyday living. From the dining area, walk out to your private back deck, perfect for relaxing or enjoying the outdoors with added privacy. Upstairs, the spacious primary suite provides a peaceful retreat with a walk-in closet and a luxurious ensuite featuring a stand-up shower and double vanity. The upper level also includes a comfortable second bedroom, a 4-piece main bathroom, and an upper-level laundry area for added convenience. Nestled in the serene and welcoming community of Colborne and built by prestigious local builder Fidelity Homes. This home comes packed with quality finishes including: Maintenance-free, Energy Star-rated Northstar vinyl windows with Low-E-Argon glass; 9 foot smooth ceilings on the main floor; Designer Logan interior doors with sleek black Weiser hardware; Craftsman style trim package with 5 1/2 baseboards and elegant casings around windows and doors; Premium cabinetry; Quality vinyl plank flooring; Moen matte black water efficient faucets in all bathrooms; Stylish, designer light fixtures throughout. Offering 7 Year TARION New Home Warranty. MOVE-IN November 2026! (id:64974)
Quick Facts
- Property Type: Townhouse (Freehold)
- Bedrooms: 2 (2 above)
- Bathrooms: 3 (1 half)
- Ownership: Freehold
- Attached: Yes
- Parking: 2 spaces (Attached Garage, Garage)
- Frontage: 35 ft (10.8 m)
Listing Provided by: ROYAL LEPAGE PROALLIANCE REALTY
Board: Central Lakes Association of REALTORS®
Data provided via CREA DDF®.
Detailed Features
Interior & Systems
- Heating: Forced air, Natural gas
- Cooling: Central air conditioning
- Basement: Unfinished, Full
- Appliances: Garage door opener, Garage door opener remote(s), Water Heater
- Flooring: Vinyl
- Utilities: Sewer, Electricity, Cable
- Security: Smoke Detectors
Exterior & Construction
- Exterior: Vinyl siding
- Foundation: Poured Concrete
- Sewer: Sanitary sewer
- Water: Municipal water
Lot & Land
- Frontage: 35 ft (10.8 m)
- Features: Flat site
Community & Neighbourhood
- Community: School Bus, Community Centre
- Neighbourhood: Colborne
Room Details (7 rooms)
Listing Information
Listing History
Buy/Sell/Terminated/Expired listing history for 19 HOLLINGSWORTH STREET, Cramahe (Colborne), Ontario, K0K1S0
Location & Neighborhood
🚗 Travel times
Neighborhood Walkability
Mortgage & Cost Calculators
Nearby Homes (Within 2km)
Similar Homes
Similar Properties
No rental comparables found in this area.
Sold Comparables
Access to sold property data requires a registered and verified account with TRREB DDF integration.
Coming SoonRented Comparables
Access to rented property data requires a registered and verified account with TRREB DDF integration.
Coming Soon





















