32 HOLLINGSWORTH STREET, Cramahe (Colborne), Ontario, K0K1S0
MLS: X12420819 | House (Freehold)
$839,000






Property Description
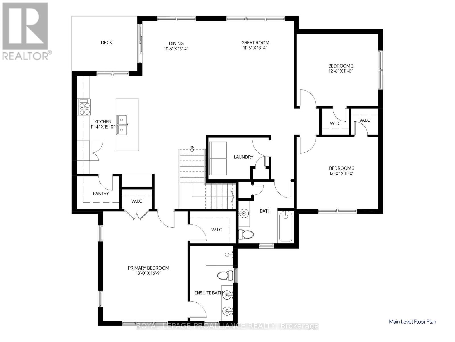
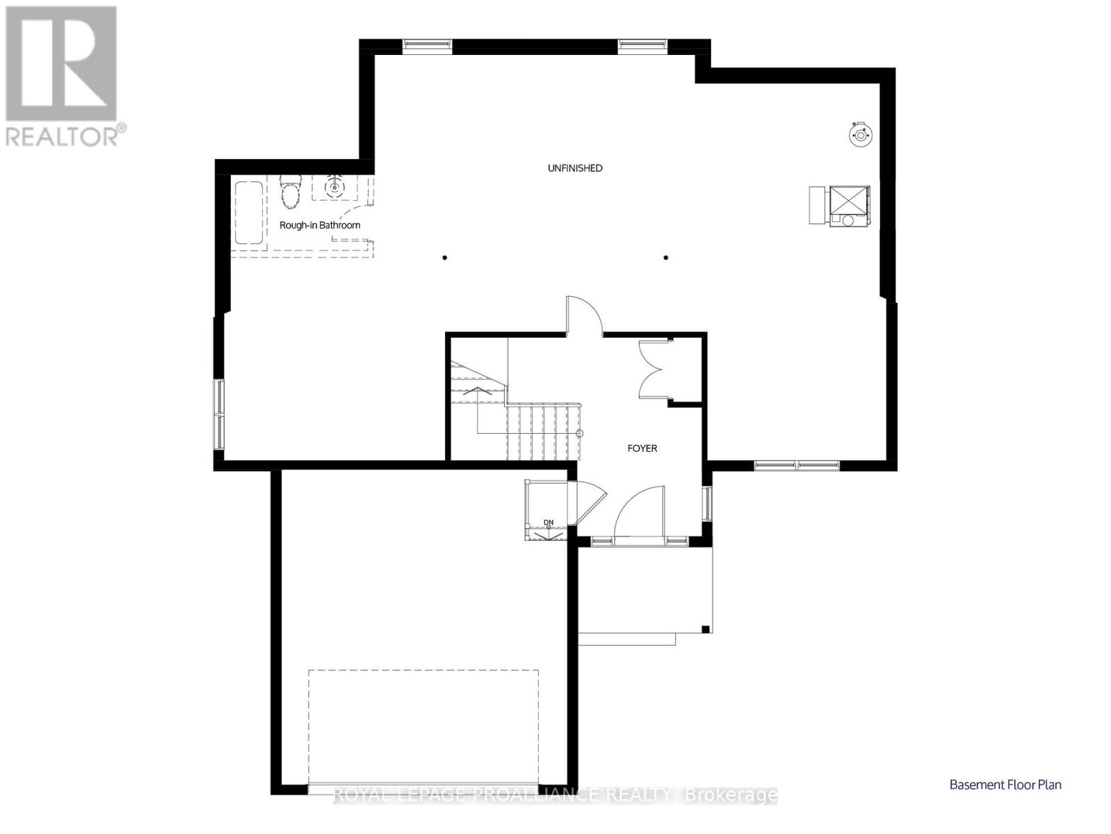
OPEN HOUSE - Check in at Eastfields Model Home 60 Willowbrook St., Colborne. The Odin is a thoughtfully designed bungalow walk-up offering 1,978 sq ft of stylish, functional living. With 3 bedrooms and 2 bathrooms, this exclusive model combines the ease of single-level living with modern finishes and an open-concept design perfect for families, downsizers, or entertainers. Step inside through the welcoming foyer, complete with a convenient closet,and walk up to the expansive main level. Here, the kitchen, dining, and great room flow seamlessly together, creating the heartof the home. The kitchen is enhanced by a large walk-in pantry, perfect for extra storage and organization. The primary suite isa true retreat, featuring a spacious walk-in closet and a luxurious 4-piece ensuite with custom cabinetry, quartz countertops withdouble sinks, and a glass shower. Two additional bedrooms share a beautifully appointed 4-piece bathroom with the sameelevated finishes. A main floor laundry room adds everyday convenience. Downstairs, the unfinished basement offers incrediblepotential whether youre looking for abundant storage space or the opportunity to design a recreation area, gym, or homeoffice tailored to your lifestyle. Nestled in the serene and welcoming community of Colborne and built by prestigious localbuilder Fidelity Homes. This home comes packed with quality finishes including Maintenance-free, Energy Star-rated NorthStar vinyl windows with Low-E-Argon glass; 9-foot smooth ceilings on the main floor; Designer Logan interior doors with sleek black Weiser hardware; Craftsman-style trim package with 5 1/2 baseboards and elegant casings around windows and doors; Premium cabinetry; Quality vinyl plank flooring; Moen matte Blackwater-efficient faucets in all bathrooms; Stylish, designer light fixtures throughout. Offering 7 Year TARION New Home Warranty. The Odin is exclusive to one lot at Eastfields making it a rare opportunity for a truly one-of-a-kind home. (id:64974)
Quick Facts
- Property Type: House (Freehold)
- Style: Bungalow
- Bedrooms: 3 (3 above)
- Bathrooms: 2
- Ownership: Freehold
- Attached: No
- Parking: 4 spaces (Attached Garage, Garage)
- Frontage: 15.0 m (49 ft)
Listing Provided by: ROYAL LEPAGE PROALLIANCE REALTY
Board: Central Lakes Association of REALTORS®
Data provided via CREA DDF®.
Detailed Features
Interior & Systems
- Heating: Forced air, Natural gas
- Cooling: Central air conditioning
- Basement: Unfinished, Walk-up, N/A, N/A
- Appliances: Garage door opener, Garage door opener remote(s), Water Heater
- Utilities: Sewer, Electricity, Cable
- Security: Smoke Detectors
Exterior & Construction
- Style: Bungalow
- Exterior: Vinyl siding
- Foundation: Poured Concrete
- Sewer: Sanitary sewer
- Water: Municipal water
Lot & Land
- Frontage: 15.0 m (49 ft)
- Features: Flat site
Community & Neighbourhood
- Community: School Bus, Community Centre
- Neighbourhood: Colborne
Room Details (6 rooms)
Listing Information
Listing History
Buy/Sell/Terminated/Expired listing history for 32 HOLLINGSWORTH STREET, Cramahe (Colborne), Ontario, K0K1S0
Location & Neighborhood
🚗 Travel times
Neighborhood Walkability
Mortgage & Cost Calculators
Nearby Homes (Within 2km)
Similar Homes
Similar Properties
No rental comparables found in this area.
Sold Comparables
Access to sold property data requires a registered and verified account with TRREB DDF integration.
Coming SoonRented Comparables
Access to rented property data requires a registered and verified account with TRREB DDF integration.
Coming Soon




















