31 BECKETTS SIDE ROAD, Tay, Ontario, L0K2C0
MLS: S13028974 | House (Freehold)
$389,777

























Property Description
Welcome to 31 Becketts Side Road in Tay, situated on a private, quiet street just minutes to Highway 400, walking trails, and the beautiful shores of Georgian Bay. Centrally located between Midland, Orillia, and Barrie, this home offers convenient access to surrounding communities while maintaining a peaceful setting. The home features three bedrooms and a functional layout with a combined living, kitchen, and dining area. A full-height unfinished basement provides excellent potential for additional living space, storage, or future customization to suit your needs. With forced air heating and great value, this property is an ideal opportunity for first-time buyers, investors, or those looking to get into the market. (id:64974)
Quick Facts
- Property Type: House (Freehold)
- Style: Raised bungalow
- Bedrooms: 3 (3 above)
- Bathrooms: 1
- Ownership: Freehold
- Attached: No
- Parking: 4.0 spaces (No Garage)
- Frontage: 88 ft (26.7 m)
Costs
- Annual Taxes: $2,605.32 (2025)
Listing Provided by: RE/MAX Georgian Bay Realty Ltd
Board: OnePoint Association of REALTORS®
Data provided via CREA DDF®.
Detailed Features
Interior & Systems
- Heating: Forced air, Electric
- Cooling: None
- Basement: Unfinished, N/A
- Appliances: Washer, Refrigerator, Stove, Dryer, Water Heater
- Utilities: Electricity
Exterior & Construction
- Style: Raised bungalow
- Exterior: Vinyl siding
- Foundation: Block
- Sewer: Septic System
Lot & Land
- Frontage: 88 ft (26.7 m)
- Features: Wooded area, Irregular lot size, Flat site
- Zoning: RU
Community & Neighbourhood
- Community: School Bus
- Neighbourhood: Rural Tay
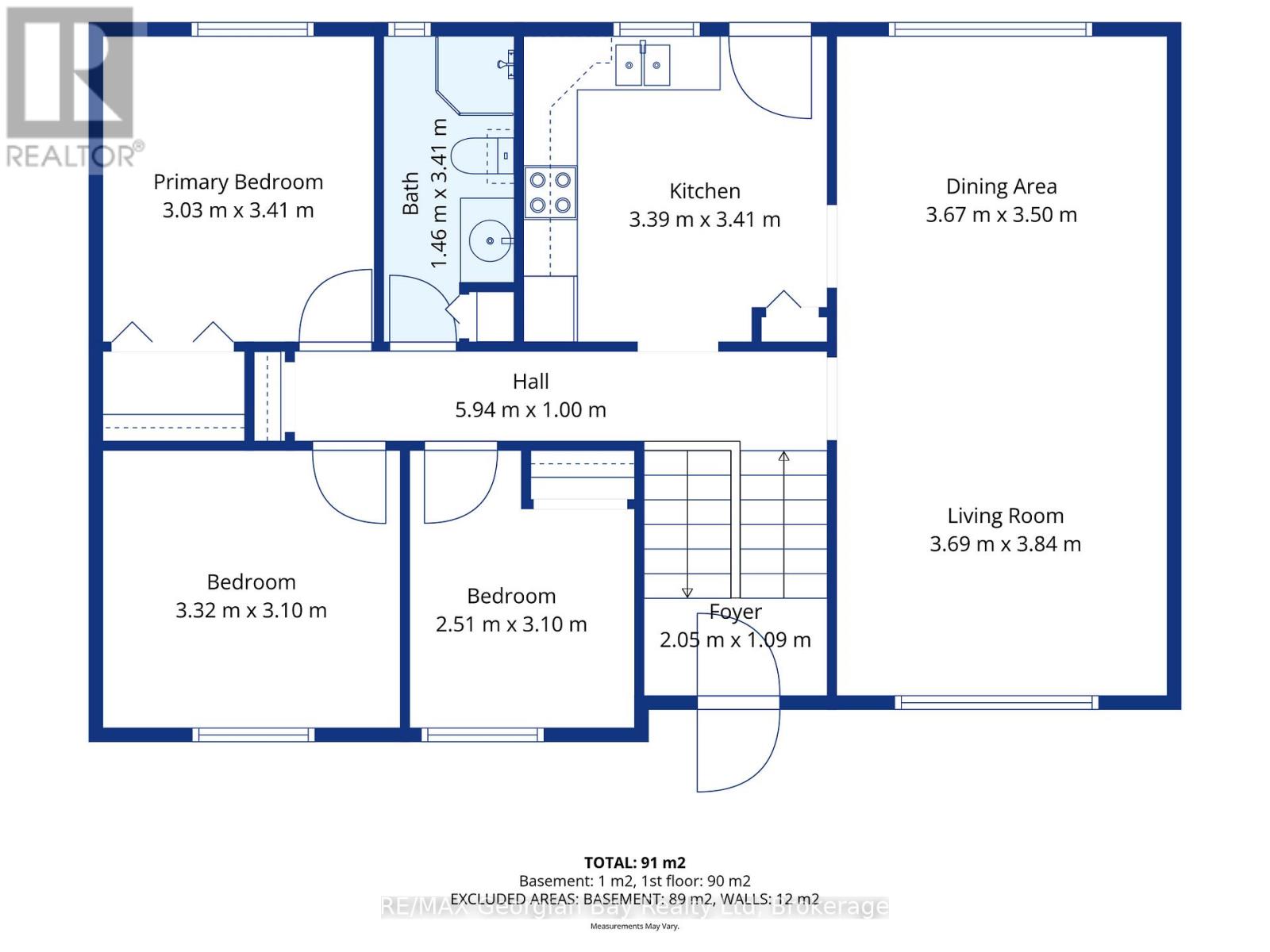
Room Details (7 rooms)
Listing Information
Listing History
MLS listing activity for 31 BECKETTS SIDE ROAD, Tay, Ontario, L0K2C0 — dates reflect when changes were recorded in the DDF
Location & Neighborhood
🚗 Travel times
Neighborhood Walkability
Mortgage & Cost Calculators
Nearby Homes ?Nearby Homes — Search CriteriaSearch Radius1 kmPrice Range±30%Match BedroomsNoMatch BathroomsNo

25 PLAYFAIR DRIVE, Tay
House$455,000
$1,688/yr taxListing Courtesy of ROYAL LEPAGE SIGNATURE REALTY

1968 ROSEMOUNT ROAD, Tay (Waubaushene)
Vacant Land$374,777
$1,266/yr taxListing Courtesy of RE/MAX Georgian Bay Realty Ltd
Similar Homes ?Similar Homes — Search CriteriaSearch Radius5 kmPrice Range±5%Match Home TypeYesMatch BedroomsYes

3 LAKESHORE ROAD, Midland
Mobile Home$389,777
$657/yr taxListing Courtesy of RE/MAX Georgian Bay Realty Ltd

1306 - 40 NEPEAN STREET, Ottawa
Condo - Apartment$389,800
$3,909/yr taxListing Courtesy of HOME RUN REALTY INC.

606 - 3 HICKORY TREE ROAD, Toronto (Weston)
Condo - Apartment$389,700
$1,354/yr taxListing Courtesy of EXP REALTY

1520 - 88 CORPORATE DRIVE, Toronto (Woburn)
Condo - Apartment$389,888
$1,912/yr taxListing Courtesy of RE/MAX HALLMARK FIRST GROUP REALTY LTD.

16 CONCORD Place Unit# 431, Grimsby
Condo - Apartment$389,900
$2,957/yr taxListing Courtesy of RE/MAX Garden City Realty Inc.

720 - 80 ESTHER LORRIE DRIVE, Toronto (West Humber-Clairville)
Condo - Apartment$389,900
$1,840/yr taxListing Courtesy of RE/MAX REAL ESTATE CENTRE INC.

1502 - 40 NEPEAN STREET, Ottawa
Condo - Apartment$389,900
$3,946/yr taxListing Courtesy of RE/MAX HALLMARK REALTY GROUP

635 - 3100 KEELE STREET, Toronto (Downsview-Roding-CFB)
Condo - Apartment$389,900
$1,829/yr taxListing Courtesy of CENTURY 21 KING'S QUAY REAL ESTATE INC.

218 - 205 BOLTON STREET, Ottawa
Condo - Apartment$389,900
$3,927/yr taxListing Courtesy of EXP REALTY

318 - 354 GLADSTONE AVENUE, Ottawa
Condo - Apartment$389,900
$4,327/yr taxListing Courtesy of ROYAL LEPAGE TEAM REALTY
Property Comparables ?Active Comparables — Search CriteriaSearch Radius2 kmPrice Range±15%Match Home TypeYesMatch BedroomsYes
No active comparables found in this area.
No rental comparables found in this area.
No sold comparables found at this radius. Zoom out on the map to broaden the search area.
No leased comparables found. Rented data requires TRREB DDF integration; the map and search will populate automatically once enabled.
Book a Viewing
31 BECKETTS SIDE ROAD, Tay, Ontario, L0K2C0






