3 BRAYSHAW Drive, Cambridge, Ontario, N1T2G3
MLS: 40808690 | House (Freehold)
$989,900


















































Property Description
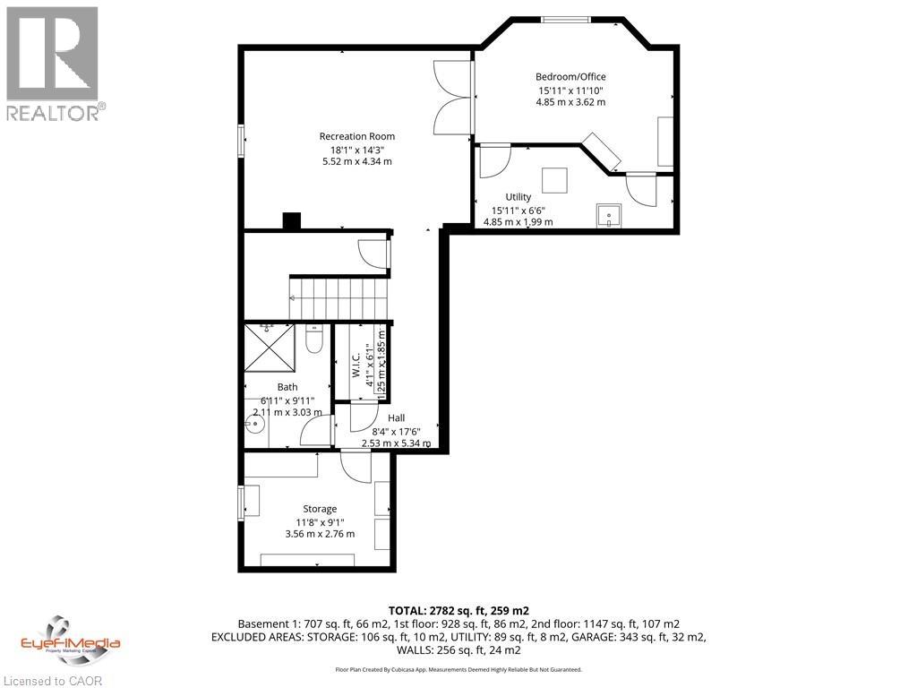
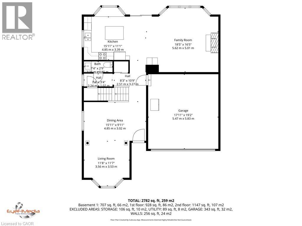
Prime Commuter location, this beautifully updated 5-bedroom, 4-bathroom two-storey home has been meticulously maintained, updated and upgraded. Completely move-in ready. Features include real hardwood flooring, not laminate and a bright, open-concept layout designed for both everyday living and effortless entertaining. The kitchen is the heart of the home, featuring granite counters & updated appliances (2024), with a view to the family room with an updated gas fireplace (new fan, sensors, and line), creating a cozy gathering space The main floor updates include a redesigned powder room, new tile, shiplap accents, updated casing and baseboards, and professionally painted — delivering a clean, contemporary aesthetic while maintaining warmth and character. Upstairs, the spacious primary retreat offers a charming bay window, glass shower ensuite, and granite countertops — a true private escape. In addition to 4 bedrooms, the upstairs has a versatile office space at the top of the stairs (complete with closet) provides flexibility for work-from-home, reading nook or craft area. Convenient second-floor laundry includes updated washer and dryer (2024). And there's a double linen closet. In addition to a 5th bedroom, the finished basement continues the home’s quality finishes with real hardwood flooring, pot lights, heated bathroom floor, hobby/storage space, two oversized storage closets, and large windows that invite natural light. Out back, enjoy a private backyard with easy to maintain landscaping and large concrete patio which has been meticulously maintained — stained and resealed annually — Top to bottom there is pride of ownership you can see. Additional features include: • New carpet runner (2024) • New glass inserts in rear sliding door • Tankless water heater • Owned water softener • CAT5 wiring throughout Every detail reflects care, maintenance, and thoughtful upgrading. This is more than a house — it’s a home designed to grow with you. (id:64974)
Quick Facts
- Property Type: House (Freehold)
- Style: 2 Level
- Bedrooms: 5 (4 above, 1 below)
- Bathrooms: 4 (1 half)
- Living Area: 3,007 sq ft (279.4 m²)
- Above Grade: 2,300 sq ft (213.7 m²)
- Below Grade: 707 sq ft (65.7 m²)
- Year Built: 2004
- Ownership: Freehold
- Attached: No
- Fireplaces: 1
- Parking: 4 spaces (Attached Garage)
- Frontage: 38 ft (11.6 m)
Costs
- Annual Taxes: $6,576.00
Listing Provided by: RE/MAX REAL ESTATE CENTRE INC. BROKERAGE-3
Board: Cornerstone Association of REALTORS®
Data provided via CREA DDF®.
Detailed Features
Interior & Systems
- Heating: Forced air, Natural gas
- Cooling: Central air conditioning
- Basement: Finished, Full
- Appliances: Washer, Refrigerator, Water softener, Dishwasher, Stove, Dryer, Microwave
Exterior & Construction
- Style: 2 Level
- Exterior: Brick, Vinyl siding
- Foundation: Poured Concrete
- Sewer: Municipal sewage system
- Water: Municipal water
Lot & Land
- Frontage: 38 ft (11.6 m)
- Features: Automatic Garage Door Opener
- Zoning: R5
Community & Neighbourhood
- Community: Quiet Area
- Subdivision: 33 - Clemens Mills/Saginaw
Room Details (21 rooms)
Listing Information
Listing History
Buy/Sell/Terminated/Expired listing history for 3 BRAYSHAW Drive, Cambridge, Ontario, N1T2G3
Location & Neighborhood
🚗 Travel times
Neighborhood Walkability
Mortgage & Cost Calculators
Nearby Homes (Within 2km)
Similar Homes
Similar Properties
No rental comparables found in this area.
Sold Comparables
Access to sold property data requires a registered and verified account with TRREB DDF integration.
Coming SoonRented Comparables
Access to rented property data requires a registered and verified account with TRREB DDF integration.
Coming Soon

























