29 DEERVIEW DRIVE, Quinte West (Murray Ward), Ontario, K8V5P4
MLS: X12983998 | House (Freehold)
$879,500



Property Description
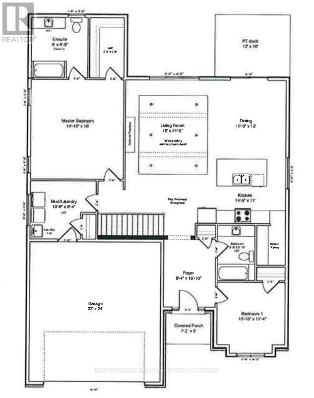
This beautifully crafted custom home by Van Huizen Homes, located in the charming Woodland Heights community, combines contemporary style with practical living. The main floor offers 2 comfortable bedrooms, including a primary suite with a large private ensuite and a spacious walk-in closet. A second bathroom on the main floor adds extra convenience. The open concept living area is perfect for both relaxing and entertaining, with a striking tray ceiling in the living room that adds a touch of elegance. the kitchen is equipped with a generous walk-in pantry, providing plenty of storage space for all your culinary needs. Convenience is key with a mud and laundry room that connects directly to the attached two-car garage, offering easy access to the home. Relax and enjoy the outdoors with a large covered front porch and a rear deck measuring 12' x 10', ideal for dining or lounging. If you're looking for more space, the basement offers the option to be finished at an additional cost, adding two extra bedrooms, a third bathroom, and a recreation room for expanding your living space to suit your needs. This exquisite home does qualify for the new HST Rebate, with an after rebate value of $799,557.52!! Stop by the model home at 37 Deerview Drive to see how Van Huizen Homes can help you customize your ideal home! (id:64974)
Quick Facts
- Property Type: House (Freehold)
- Style: Bungalow
- Bedrooms: 2 (2 above)
- Bathrooms: 2
- Ownership: Freehold
- Attached: No
- Parking: 6.0 spaces (Attached Garage, Garage)
- Frontage: 50 ft (15.2 m)
Listing Provided by: ROYAL LEPAGE PROALLIANCE REALTY
Board: Central Lakes Association of REALTORS®
Data provided via CREA DDF®.
Detailed Features
Interior & Systems
- Heating: Forced air, Natural gas
- Cooling: Central air conditioning
- Basement: Unfinished, N/A
- Appliances: Garage door opener remote(s), Water Heater
- Utilities: Sewer, Electricity, Cable
Exterior & Construction
- Style: Bungalow
- Exterior: Stone, Vinyl siding
- Foundation: Poured Concrete
- Sewer: Sanitary sewer
- Water: Municipal water
Lot & Land
- Frontage: 50 ft (15.2 m)
- Features: Flat site, Sump Pump
- Zoning: R2
Community & Neighbourhood
- Neighbourhood: Murray Ward
Room Details (9 rooms)
Listing Information
Listing History
MLS listing activity for 29 DEERVIEW DRIVE, Quinte West (Murray Ward), Ontario, K8V5P4 — dates reflect when changes were recorded in the DDF
🚗 Travel times
Neighborhood Walkability
Mortgage & Cost Calculators
Nearby Homes ?Nearby Homes — Search CriteriaSearch Radius1 kmPrice Range±5%Match BedroomsYesMatch BathroomsYes

33 DEERVIEW DRIVE, Quinte West (Murray Ward)
House$859,900
Listing Courtesy of ROYAL LEPAGE PROALLIANCE REALTY

28 DEERVIEW DRIVE, Quinte West (Murray Ward)
House$909,500
Listing Courtesy of ROYAL LEPAGE PROALLIANCE REALTY

32 DEERVIEW DRIVE, Quinte West (Murray Ward)
House$896,500
Listing Courtesy of ROYAL LEPAGE PROALLIANCE REALTY

20 DEERVIEW DRIVE, Quinte West (Murray Ward)
House$856,000
Listing Courtesy of ROYAL LEPAGE PROALLIANCE REALTY

25 DEERVIEW DRIVE, Quinte West (Murray Ward)
House$779,500
Listing Courtesy of ROYAL LEPAGE PROALLIANCE REALTY

21 DEERVIEW DRIVE, Quinte West (Murray Ward)
House$826,000
Listing Courtesy of ROYAL LEPAGE PROALLIANCE REALTY

37 DEERVIEW DRIVE, Quinte West (Murray Ward)
House$995,000
Listing Courtesy of ROYAL LEPAGE PROALLIANCE REALTY

24 DEERVIEW DRIVE, Quinte West (Murray Ward)
House$809,500
Listing Courtesy of ROYAL LEPAGE PROALLIANCE REALTY

36 DEERVIEW DRIVE, Quinte West (Murray Ward)
House$917,500
Listing Courtesy of ROYAL LEPAGE PROALLIANCE REALTY

48 DEERVIEW DRIVE, Quinte West (Murray Ward)
House$989,900
$5,306/yr taxListing Courtesy of ROYAL LEPAGE PROALLIANCE REALTY

8 DEERVIEW DRIVE, Quinte West (Murray Ward)
House$789,900
Listing Courtesy of RE/MAX QUINTE LTD.

72 GLENBURNIE ROAD, Quinte West (Murray Ward)
House$749,900
$4,296/yr taxListing Courtesy of ROYAL LEPAGE PROALLIANCE REALTY

36 EXETER COURT, Quinte West (Murray Ward)
House$1,399,900
Listing Courtesy of RE/MAX QUINTE LTD.
Similar Homes ?Similar Homes — Search CriteriaSearch Radius5 kmPrice Range±5%Match Home TypeYesMatch BedroomsYes

32 DEERVIEW DRIVE, Quinte West (Murray Ward)
House$896,500
Listing Courtesy of ROYAL LEPAGE PROALLIANCE REALTY

33 DEERVIEW DRIVE, Quinte West (Murray Ward)
House$859,900
Listing Courtesy of ROYAL LEPAGE PROALLIANCE REALTY

20 DEERVIEW DRIVE, Quinte West (Murray Ward)
House$856,000
Listing Courtesy of ROYAL LEPAGE PROALLIANCE REALTY

28 DEERVIEW DRIVE, Quinte West (Murray Ward)
House$909,500
Listing Courtesy of ROYAL LEPAGE PROALLIANCE REALTY
Similar Properties ?Active Comparables — Search CriteriaSearch Radius2 kmPrice Range±5%Match Home TypeYesMatch BedroomsYes

32 DEERVIEW DRIVE, Quinte West (Murray Ward)
House$896,500
Listing Courtesy of ROYAL LEPAGE PROALLIANCE REALTY

33 DEERVIEW DRIVE, Quinte West (Murray Ward)
House$859,900
Listing Courtesy of ROYAL LEPAGE PROALLIANCE REALTY

20 DEERVIEW DRIVE, Quinte West (Murray Ward)
House$856,000
Listing Courtesy of ROYAL LEPAGE PROALLIANCE REALTY

28 DEERVIEW DRIVE, Quinte West (Murray Ward)
House$909,500
Listing Courtesy of ROYAL LEPAGE PROALLIANCE REALTY
No rental comparables found in this area.
Sold Comparables
Access to sold property data requires a registered and verified account with TRREB DDF integration.
Coming SoonRented Comparables
Access to rented property data requires a registered and verified account with TRREB DDF integration.
Coming SoonBook a Viewing
29 DEERVIEW DRIVE, Quinte West (Murray Ward), Ontario, K8V5P4
