21 DEERVIEW DRIVE, Quinte West (Murray Ward), Ontario, K8V5P4
MLS: X12983690 | House (Freehold)
$826,000



Property Description
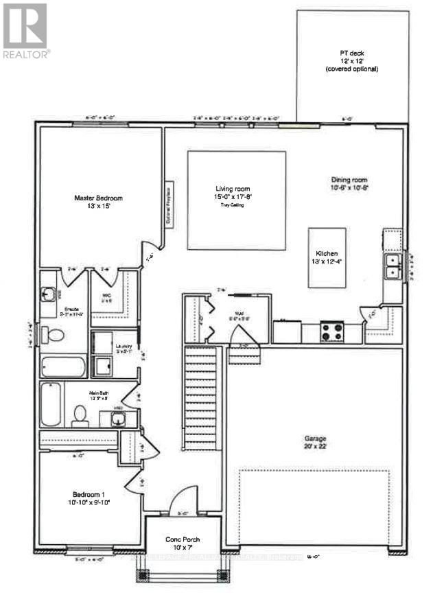
Welcome to your future home in the stunning new community of Woodland Heights, where luxury and personalization come together with Van Huizen Homes. This beautifully designed and completely customizable model features 2 bedrooms and 2 bathrooms on the main floor, including a spacious primary bedroom with an ensuite and walk-in closet. The second bathroom on the main floor adds extra convenience. Enjoy the ease of main floor laundry and a practical mudroom off the attached two-car garage. The open concept living area is perfect for both everyday living and entertaining, with engineered hardwood flooring and a chef-inspired kitchen featuring custom cabinetry and sleek countertops. Step out onto the 12' x 12' back deck, ideal for outdoor enjoyment. For those looking for additional space, there is an option to finish the basement at an extra cost, which could add two additional bedrooms, a bathroom, and a recreation room. This beautiful new home does qualify for the new HST Rebate, with an after rebate value of $752,212.39!! Visit the model home at 37 Deerview Drive to see the outstanding craftsmanship and design of Van Huizen Homes firsthand. (id:64974)
Quick Facts
- Property Type: House (Freehold)
- Style: Bungalow
- Bedrooms: 2 (2 above)
- Bathrooms: 2
- Ownership: Freehold
- Attached: No
- Parking: 6.0 spaces (Attached Garage, Garage)
- Frontage: 54 ft (16.5 m)
Listing Provided by: ROYAL LEPAGE PROALLIANCE REALTY
Board: Central Lakes Association of REALTORS®
Data provided via CREA DDF®.
Detailed Features
Interior & Systems
- Heating: Forced air, Natural gas
- Cooling: Central air conditioning
- Basement: Unfinished, N/A
- Appliances: Garage door opener remote(s), Water Heater
- Utilities: Sewer, Electricity, Cable
- Security: Smoke Detectors
Exterior & Construction
- Style: Bungalow
- Exterior: Stone, Vinyl siding
- Foundation: Poured Concrete
- Sewer: Sanitary sewer
- Water: Municipal water
Lot & Land
- Frontage: 54 ft (16.5 m)
- Features: Flat site, Sump Pump
- Zoning: R2
Community & Neighbourhood
- Neighbourhood: Murray Ward
Room Details (9 rooms)
Listing Information
Listing History
MLS listing activity for 21 DEERVIEW DRIVE, Quinte West (Murray Ward), Ontario, K8V5P4 — dates reflect when changes were recorded in the DDF
🚗 Travel times
Neighborhood Walkability
Mortgage & Cost Calculators
Nearby Homes ?Nearby Homes — Search CriteriaSearch Radius1 kmPrice Range±5%Match BedroomsYesMatch BathroomsYes

20 DEERVIEW DRIVE, Quinte West (Murray Ward)
House$856,000
Listing Courtesy of ROYAL LEPAGE PROALLIANCE REALTY

24 DEERVIEW DRIVE, Quinte West (Murray Ward)
House$809,500
Listing Courtesy of ROYAL LEPAGE PROALLIANCE REALTY

33 DEERVIEW DRIVE, Quinte West (Murray Ward)
House$859,900
Listing Courtesy of ROYAL LEPAGE PROALLIANCE REALTY

8 DEERVIEW DRIVE, Quinte West (Murray Ward)
House$789,900
Listing Courtesy of RE/MAX QUINTE LTD.

25 DEERVIEW DRIVE, Quinte West (Murray Ward)
House$779,500
Listing Courtesy of ROYAL LEPAGE PROALLIANCE REALTY

29 DEERVIEW DRIVE, Quinte West (Murray Ward)
House$879,500
Listing Courtesy of ROYAL LEPAGE PROALLIANCE REALTY

28 DEERVIEW DRIVE, Quinte West (Murray Ward)
House$909,500
Listing Courtesy of ROYAL LEPAGE PROALLIANCE REALTY

32 DEERVIEW DRIVE, Quinte West (Murray Ward)
House$896,500
Listing Courtesy of ROYAL LEPAGE PROALLIANCE REALTY

37 DEERVIEW DRIVE, Quinte West (Murray Ward)
House$995,000
Listing Courtesy of ROYAL LEPAGE PROALLIANCE REALTY

36 DEERVIEW DRIVE, Quinte West (Murray Ward)
House$917,500
Listing Courtesy of ROYAL LEPAGE PROALLIANCE REALTY

48 DEERVIEW DRIVE, Quinte West (Murray Ward)
House$989,900
$5,306/yr taxListing Courtesy of ROYAL LEPAGE PROALLIANCE REALTY

72 GLENBURNIE ROAD, Quinte West (Murray Ward)
House$749,900
$4,296/yr taxListing Courtesy of ROYAL LEPAGE PROALLIANCE REALTY

36 EXETER COURT, Quinte West (Murray Ward)
House$1,399,900
Listing Courtesy of RE/MAX QUINTE LTD.
Similar Homes ?Similar Homes — Search CriteriaSearch Radius5 kmPrice Range±5%Match Home TypeYesMatch BedroomsYes

24 DEERVIEW DRIVE, Quinte West (Murray Ward)
House$809,500
Listing Courtesy of ROYAL LEPAGE PROALLIANCE REALTY

20 DEERVIEW DRIVE, Quinte West (Murray Ward)
House$856,000
Listing Courtesy of ROYAL LEPAGE PROALLIANCE REALTY

33 DEERVIEW DRIVE, Quinte West (Murray Ward)
House$859,900
Listing Courtesy of ROYAL LEPAGE PROALLIANCE REALTY

8 DEERVIEW DRIVE, Quinte West (Murray Ward)
House$789,900
Listing Courtesy of RE/MAX QUINTE LTD.
Similar Properties ?Active Comparables — Search CriteriaSearch Radius2 kmPrice Range±5%Match Home TypeYesMatch BedroomsYes

24 DEERVIEW DRIVE, Quinte West (Murray Ward)
House$809,500
Listing Courtesy of ROYAL LEPAGE PROALLIANCE REALTY

20 DEERVIEW DRIVE, Quinte West (Murray Ward)
House$856,000
Listing Courtesy of ROYAL LEPAGE PROALLIANCE REALTY

33 DEERVIEW DRIVE, Quinte West (Murray Ward)
House$859,900
Listing Courtesy of ROYAL LEPAGE PROALLIANCE REALTY

8 DEERVIEW DRIVE, Quinte West (Murray Ward)
House$789,900
Listing Courtesy of RE/MAX QUINTE LTD.
No rental comparables found in this area.
Sold Comparables
Access to sold property data requires a registered and verified account with TRREB DDF integration.
Coming SoonRented Comparables
Access to rented property data requires a registered and verified account with TRREB DDF integration.
Coming SoonBook a Viewing
21 DEERVIEW DRIVE, Quinte West (Murray Ward), Ontario, K8V5P4
