20 DEERVIEW DRIVE, Quinte West (Murray Ward), Ontario, K8V5P4
MLS: X12976998 | House (Freehold)
$856,000



Property Description
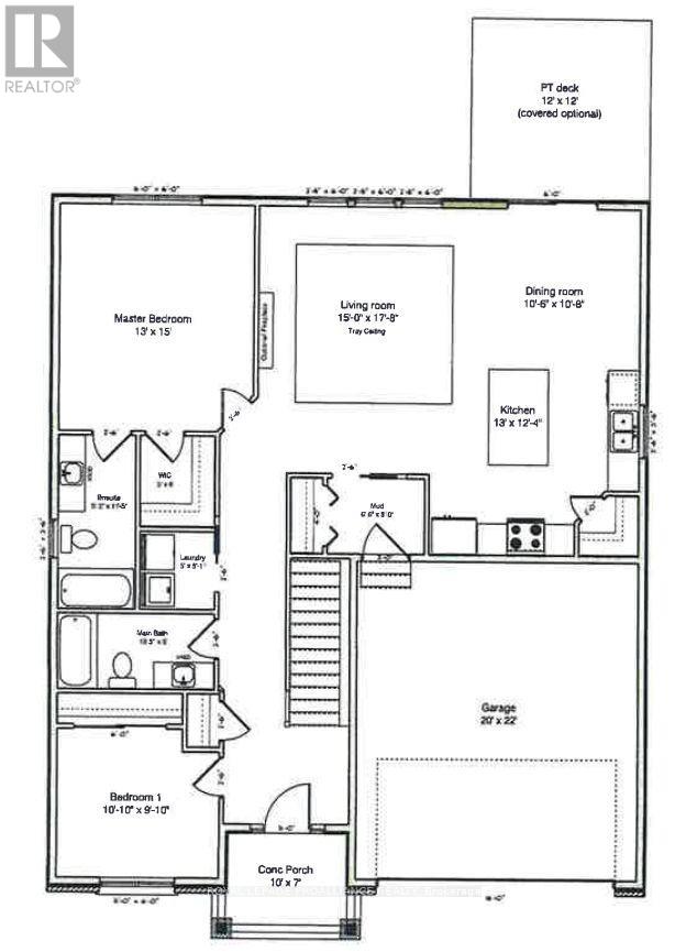
This custom-built home by Van Huizen Homes, located in the growing community of Woodland Heights, perfectly blends contemporary design with everyday convenience. The home features 2 spacious bedrooms on the main floor, including a luxurious primary bedroom with an ensuite that boasts a double vanity and a walk-in closet. The second bathroom on the main floor adds extra convenience for guests or family. The open-concept living space is perfect for both relaxing and entertaining. The living room is highlighted by a stunning tray ceiling, adding both elegance and height to the room. The kitchen is designed with functionality in mind, featuring a corner pantry with ample storage. For added practicality, the home includes a main floor laundry room and a mudroom that leads directly into the attached two-car garage, offering a seamless transition between the indoors and outdoors. Step outside to enjoy the 12' x 12' rear deck, ideal for relaxing or hosting gatherings. There's also the option to cover the deck for added comfort and versatility. If you're looking for even more space, the basement can be finished at an additional cost to include a third or fourth bedroom, another bathroom, and a recreation room - perfect for entertaining or creating your own private retreat. Visit the model home at 37 Deerview Drive to see how this thoughtfully designed home can be customized to fit your lifestyle with Van Huizen Homes! This new construction home does qualify for the new HST Rebate, with an after rebate value of $778,761.06!! (id:64974)
Quick Facts
- Property Type: House (Freehold)
- Style: Bungalow
- Bedrooms: 2 (2 above)
- Bathrooms: 2
- Ownership: Freehold
- Attached: No
- Parking: 6.0 spaces (Attached Garage, Garage)
- Frontage: 52 ft (15.8 m)
Listing Provided by: ROYAL LEPAGE PROALLIANCE REALTY
Board: Central Lakes Association of REALTORS®
Data provided via CREA DDF®.
Detailed Features
Interior & Systems
- Heating: Forced air, Natural gas
- Cooling: Central air conditioning
- Basement: Unfinished, N/A
- Appliances: Garage door opener remote(s), Water Heater
- Utilities: Sewer, Electricity, Cable
- Security: Smoke Detectors
Exterior & Construction
- Style: Bungalow
- Exterior: Stone, Vinyl siding
- Foundation: Poured Concrete
- Sewer: Sanitary sewer
- Water: Municipal water
Lot & Land
- Frontage: 52 ft (15.8 m)
- Features: Flat site, Sump Pump
- Zoning: R2
Community & Neighbourhood
- Neighbourhood: Murray Ward
Room Details (9 rooms)
Listing Information
Listing History
MLS listing activity for 20 DEERVIEW DRIVE, Quinte West (Murray Ward), Ontario, K8V5P4 — dates reflect when changes were recorded in the DDF
🚗 Travel times
Neighborhood Walkability
Mortgage & Cost Calculators
Nearby Homes ?Nearby Homes — Search CriteriaSearch Radius1 kmPrice Range±5%Match BedroomsYesMatch BathroomsYes

21 DEERVIEW DRIVE, Quinte West (Murray Ward)
House$826,000
Listing Courtesy of ROYAL LEPAGE PROALLIANCE REALTY

32 DEERVIEW DRIVE, Quinte West (Murray Ward)
House$896,500
Listing Courtesy of ROYAL LEPAGE PROALLIANCE REALTY

29 DEERVIEW DRIVE, Quinte West (Murray Ward)
House$879,500
Listing Courtesy of ROYAL LEPAGE PROALLIANCE REALTY

33 DEERVIEW DRIVE, Quinte West (Murray Ward)
House$859,900
Listing Courtesy of ROYAL LEPAGE PROALLIANCE REALTY

24 DEERVIEW DRIVE, Quinte West (Murray Ward)
House$809,500
Listing Courtesy of ROYAL LEPAGE PROALLIANCE REALTY

28 DEERVIEW DRIVE, Quinte West (Murray Ward)
House$909,500
Listing Courtesy of ROYAL LEPAGE PROALLIANCE REALTY

25 DEERVIEW DRIVE, Quinte West (Murray Ward)
House$779,500
Listing Courtesy of ROYAL LEPAGE PROALLIANCE REALTY

8 DEERVIEW DRIVE, Quinte West (Murray Ward)
House$789,900
Listing Courtesy of RE/MAX QUINTE LTD.

36 DEERVIEW DRIVE, Quinte West (Murray Ward)
House$917,500
Listing Courtesy of ROYAL LEPAGE PROALLIANCE REALTY

37 DEERVIEW DRIVE, Quinte West (Murray Ward)
House$995,000
Listing Courtesy of ROYAL LEPAGE PROALLIANCE REALTY

48 DEERVIEW DRIVE, Quinte West (Murray Ward)
House$989,900
$5,306/yr taxListing Courtesy of ROYAL LEPAGE PROALLIANCE REALTY

72 GLENBURNIE ROAD, Quinte West (Murray Ward)
House$749,900
$4,296/yr taxListing Courtesy of ROYAL LEPAGE PROALLIANCE REALTY

36 EXETER COURT, Quinte West (Murray Ward)
House$1,399,900
Listing Courtesy of RE/MAX QUINTE LTD.
Similar Homes ?Similar Homes — Search CriteriaSearch Radius5 kmPrice Range±5%Match Home TypeYesMatch BedroomsYes

33 DEERVIEW DRIVE, Quinte West (Murray Ward)
House$859,900
Listing Courtesy of ROYAL LEPAGE PROALLIANCE REALTY

29 DEERVIEW DRIVE, Quinte West (Murray Ward)
House$879,500
Listing Courtesy of ROYAL LEPAGE PROALLIANCE REALTY

21 DEERVIEW DRIVE, Quinte West (Murray Ward)
House$826,000
Listing Courtesy of ROYAL LEPAGE PROALLIANCE REALTY

32 DEERVIEW DRIVE, Quinte West (Murray Ward)
House$896,500
Listing Courtesy of ROYAL LEPAGE PROALLIANCE REALTY
Similar Properties ?Active Comparables — Search CriteriaSearch Radius2 kmPrice Range±5%Match Home TypeYesMatch BedroomsYes

33 DEERVIEW DRIVE, Quinte West (Murray Ward)
House$859,900
Listing Courtesy of ROYAL LEPAGE PROALLIANCE REALTY

29 DEERVIEW DRIVE, Quinte West (Murray Ward)
House$879,500
Listing Courtesy of ROYAL LEPAGE PROALLIANCE REALTY

21 DEERVIEW DRIVE, Quinte West (Murray Ward)
House$826,000
Listing Courtesy of ROYAL LEPAGE PROALLIANCE REALTY

32 DEERVIEW DRIVE, Quinte West (Murray Ward)
House$896,500
Listing Courtesy of ROYAL LEPAGE PROALLIANCE REALTY
No rental comparables found in this area.
Sold Comparables
Access to sold property data requires a registered and verified account with TRREB DDF integration.
Coming SoonRented Comparables
Access to rented property data requires a registered and verified account with TRREB DDF integration.
Coming SoonBook a Viewing
20 DEERVIEW DRIVE, Quinte West (Murray Ward), Ontario, K8V5P4
