263 GUILDWOOD Drive, Hamilton, Ontario, L9C6W7
MLS: 40823097 | House (Freehold)
$819,900


















































Property Description
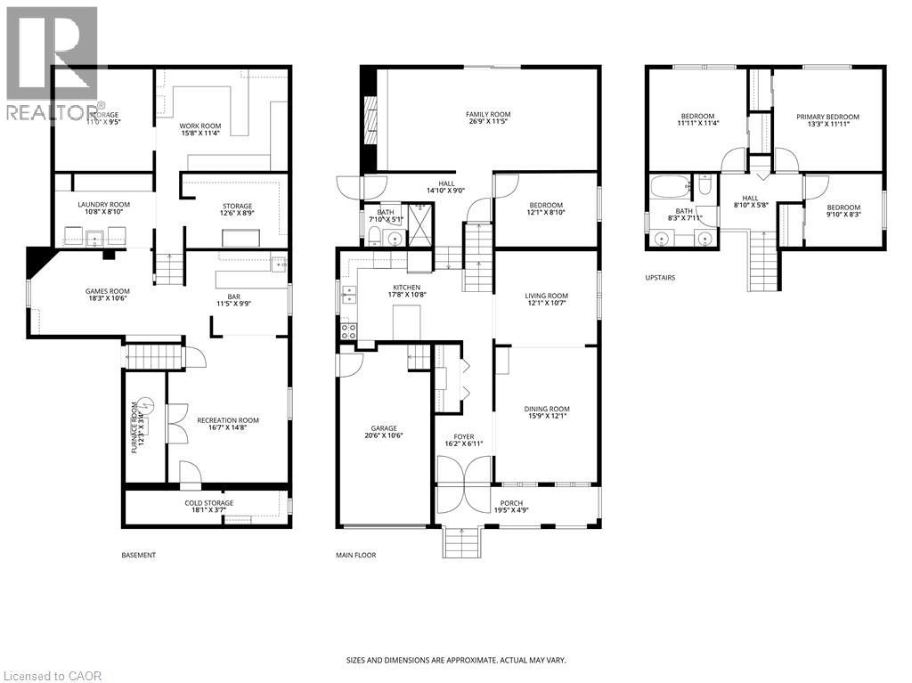
Welcome to this beautifully maintained 4 level backsplit in the highly sought after Gurnett neighbourhood on Hamilton’s West Mountain—just minutes to Ancaster, top rated schools, parks, and convenient highway access. With a separate side entrance and basement walkout , this home offers excellent in-law suite potential. With over 2400 square feet of finished living space, this home features hardwood flooring throughout and a versatile layout ideal for families or multi-generational living. The main level offers a bright living room, separate dining area, and an updated kitchen complete with solid oak cabinetry, stainless steel appliances, and a breakfast bar. The second level features three bedrooms and an updated 4 pc bathroom with double sinks and heated floors. The lower level is fully above grade with an oversized family room with wood burning fireplace and sliding glass doors leading to the backyard, along with a fourth bedroom (ideal as a home office/flex space),3 pc bathroom and separate side entrance. The basement level is full of retro charm with a spacious rec room with classic bar featuring brass railings, sink, and paneled accents. Additional features include a cold cellar, laundry area, workshop with built-in bench, and plenty of storage. Recent updates include furnace and owned hot water heater (2025), updated electrical, and central vacuum. Fully fenced, private backyard complete with landscaping, a shed, and awning extension. Fantastic opportunity in one of Hamilton Mountain’s most desirable communities. (id:64974)
Quick Facts
- Property Type: House (Freehold)
- Bedrooms: 4 (3 above, 1 below)
- Bathrooms: 2
- Living Area: 1,949 sq ft (181.1 m²)
- Above Grade: 1,949 sq ft (181.1 m²)
- Year Built: 1979
- Ownership: Freehold
- Attached: No
- Fireplaces: 1
- Parking: 5.0 spaces (Attached Garage)
- Frontage: 40 ft (12.2 m)
Costs
- Annual Taxes: $6,213.11
Listing Provided by: RE/MAX Escarpment Realty Inc.
Board: Cornerstone Association of REALTORS®
Data provided via CREA DDF®.
Detailed Features
Interior & Systems
- Heating: Forced air, Natural gas
- Cooling: Central air conditioning
- Basement: Partially finished, Partial
- Appliances: Washer, Refrigerator, Central Vacuum, Dishwasher, Stove, Dryer, Freezer, Wet Bar, Window Coverings, Garage door opener
Exterior & Construction
- Exterior: Brick
- Foundation: Poured Concrete
- Sewer: Municipal sewage system
- Water: Municipal water
Lot & Land
- Frontage: 40 ft (12.2 m)
- Features: Conservation/green belt, Wet bar, Automatic Garage Door Opener
- Zoning: C
Community & Neighbourhood
- Subdivision: 163 - Gurnett
Room Details (14 rooms)
Listing Information
Listing History
MLS listing activity for 263 GUILDWOOD Drive, Hamilton, Ontario, L9C6W7 — dates reflect when changes were recorded in the DDF
Location & Neighborhood
🚗 Travel times
Neighborhood Walkability
Mortgage & Cost Calculators
Nearby Homes ?Nearby Homes — Search CriteriaSearch Radius1 kmPrice Range±30%Match BedroomsNoMatch BathroomsNo

122 GREENCEDAR Drive, Hamilton
House$799,900
$5,494/yr taxListing Courtesy of Real Broker Ontario Ltd.

122 GREEN CEDAR DRIVE, Hamilton (Gurnett)
House$799,900
$5,494/yr taxListing Courtesy of REAL BROKER ONTARIO LTD.

97 GUILDWOOD Drive, Hamilton
House$599,900
$4,048/yr taxListing Courtesy of RE/MAX Escarpment Frank Realty

222 GREENCEDAR DRIVE, Hamilton (Gurnett)
House$579,900
$4,144/yr taxListing Courtesy of ROYAL LEPAGE STATE REALTY

91 FORESTGATE DRIVE, Hamilton (Fessenden)
House$999,000
$4,884/yr taxListing Courtesy of ROYAL LEPAGE REAL ESTATE SERVICES LTD.

38 LECLAIRE Street, Hamilton
House$1,049,999
$6,483/yr taxListing Courtesy of HOMELIFE MIRACLE REALTY LTD

46 NOVOCO DRIVE, Hamilton (Gurnett)
House$849,900
$5,523/yr taxListing Courtesy of ROYAL LEPAGE STATE REALTY

57 ELORA DRIVE, Hamilton (Fessenden)
House$634,900
$4,511/yr taxListing Courtesy of ROYAL LEPAGE REAL ESTATE SERVICES LTD.

105 OAKHAVEN Place, Ancaster
Condo - Row / Townhouse$873,600
$6,547/yr taxListing Courtesy of RE/MAX Escarpment Realty Inc.

22 NOVOCO DRIVE, Hamilton (Gurnett)
House$839,000
$5,060/yr taxListing Courtesy of RE/MAX ESCARPMENT REALTY INC.
Similar Homes ?Similar Homes — Search CriteriaSearch Radius5 kmPrice Range±5%Match Home TypeYesMatch BedroomsYes

18 DESANTIS COURT, Hamilton (Rushdale)
House$819,000
$5,599/yr taxListing Courtesy of KELLER WILLIAMS EDGE REALTY

26 GENEVA DRIVE, Hamilton (Buchanan)
House$834,900
$5,225/yr taxListing Courtesy of Royal Lepage Real Estate Associates

114 JUANITA Drive, Hamilton
House$834,900
$5,584/yr taxListing Courtesy of Royal LePage State Realty Inc.

22 NOVOCO Drive, Hamilton
House$839,000
$5,060/yr taxListing Courtesy of RE/MAX Escarpment Realty Inc.

640 ACADIA Drive, Hamilton
House$839,000
$5,498/yr taxListing Courtesy of Keller Williams Complete Realty

122 GREENCEDAR Drive, Hamilton
House$799,900
$5,494/yr taxListing Courtesy of Real Broker Ontario Ltd.

23 JULIEBETH Drive, Hamilton
House$799,900
$5,120/yr taxListing Courtesy of RE/MAX Escarpment Realty Inc.

122 GREEN CEDAR DRIVE, Hamilton (Gurnett)
House$799,900
$5,494/yr taxListing Courtesy of REAL BROKER ONTARIO LTD.

19 SEDONA Court, Hamilton
House$799,900
$5,125/yr taxListing Courtesy of Keller Williams Complete Realty

390 HUNTER Street W, Hamilton
House$799,900
$5,884/yr taxListing Courtesy of RE/MAX Escarpment Realty Inc.
Property Comparables ?Active Comparables — Search CriteriaSearch Radius2 kmPrice Range±15%Match Home TypeYesMatch BedroomsYes

114 JUANITA DRIVE, Hamilton (Westcliffe)
House$834,900
$5,584/yr taxListing Courtesy of ROYAL LEPAGE STATE REALTY

22 NOVOCO DRIVE, Hamilton (Gurnett)
House$839,000
$5,060/yr taxListing Courtesy of RE/MAX ESCARPMENT REALTY INC.

23 JULIEBETH DRIVE, Hamilton (Gurnett)
House$799,900
$5,120/yr taxListing Courtesy of RE/MAX ESCARPMENT REALTY INC.

122 GREENCEDAR Drive, Hamilton
House$799,900
$5,494/yr taxListing Courtesy of Real Broker Ontario Ltd.

122 GREEN CEDAR DRIVE, Hamilton (Gurnett)
House$799,900
$5,494/yr taxListing Courtesy of REAL BROKER ONTARIO LTD.

62 SPADARA Drive, Hamilton
House$849,000
$5,974/yr taxListing Courtesy of RE/MAX Escarpment Realty Inc.

235 SANATORIUM Road, Hamilton
House$869,899
$5,899/yr taxListing Courtesy of Voortman Realty Inc.

35 HEPBURN Crescent, Hamilton
House$885,000
$5,974/yr taxListing Courtesy of Rock Star Real Estate Inc.

682 MOHAWK Road W, Hamilton
House$748,900
$4,615/yr taxListing Courtesy of CASORA REALTY INC.

39 DARLINGTON DRIVE, Hamilton (Gilbert)
House$734,880
$5,200/yr taxListing Courtesy of ROYAL LEPAGE SIGNATURE REALTY

316 CRANBROOK DRIVE, Hamilton (Gilkson)
House$724,900
$5,200/yr taxListing Courtesy of RE/MAX ESCARPMENT REALTY INC.

36 BUCKINGHAM Drive, Hamilton
House$924,900
$6,199/yr taxListing Courtesy of THE AGENCY

19 GLENHAVEN COURT, Hamilton (Gilkson)
House$929,900
$6,812/yr taxListing Courtesy of RE/MAX ESCARPMENT REALTY INC.

42 LASILA Court, Hamilton
House$931,900
$6,962/yr taxListing Courtesy of Coldwell Banker Community Professionals
No rental comparables found in this area.
No leased comparables found. Rented data requires TRREB DDF integration; the map and search will populate automatically once enabled.
Book a Viewing
263 GUILDWOOD Drive, Hamilton, Ontario, L9C6W7














