199 KIMBERLY Drive, Hamilton, Ontario, L8K4L2
MLS: 40787861 | House (Freehold)
$759,900


















































Property Description
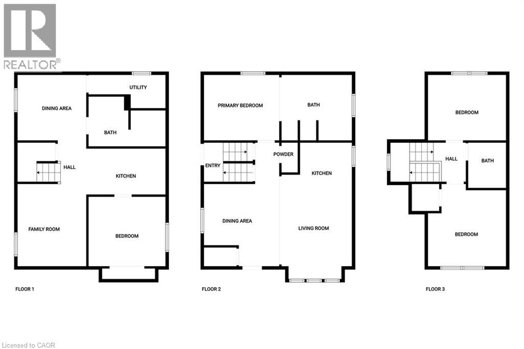
Completely restored from the outside walls. Current owners spent hundreds of thousands on renovations for their retirement but plans have changed and now its available! Updates include spray foam insulation, dry wall, doors, trim, windows, electrical, plumbing, heating ducks, furnace, gas piping, central air, siding, down spouts, sump pump, weeping tile, concrete retaining wall with rod iron fencing, front yard garden wall and porch/deck, new concrete double driveway. This 3+1 bedrooms, 3 1/2 bathrooms features large main floor primary bedroom with built in clothes closets, 4 piece ensuite bathroom and laundry facilities. Perfect for anyone looking to eliminate stairs. Plus fully finished basement with fully functioning in law suite with one bedroom, kitchen, living room, dinning room, large 4 piece bathroom with laundry, five appliances and private separate entrance. High quality materials and workmanship shows fantastic. Located in a very quite sought after neighborhood in the south east corner of town. Tucked beneath the escarpment in the Rosedale Community inside Kings Forest directly across from the Kings Forest Golf Course. Surrounded by the escarpment, golf course, community center, hockey arena, parks, forest, green space, creek, trails, municipal swimming pool and shopping. This is a very vibrant family orientated community with lots of options for activities and local amenities that makes for a lovely place to live and raise a family. An excellent community with few entrances in and low vehicle traffic with easy access to hospitals, schools, The Redhill Expressway, the QEW, the escarpment and the downtown core. This home is located in one of the hidden gem locations in Hamilton. Loaded with valuable high quality improvements and is a must see to appreciate the location, workmanship and features this home offers. (id:64974)
Quick Facts
- Property Type: House (Freehold)
- Bedrooms: 4 (3 above, 1 below)
- Bathrooms: 4 (1 half)
- Living Area: 1,850 sq ft (171.9 m²)
- Above Grade: 1,200 sq ft (111.5 m²)
- Below Grade: 650 sq ft (60.4 m²)
- Year Built: 1951
- Ownership: Freehold
- Attached: No
- Parking: 5 spaces
- Frontage: 60 ft (18.3 m)
Costs
- Annual Taxes: $4,172.05
Listing Provided by: RE/MAX Escarpment Realty Inc.
Board: Cornerstone Association of REALTORS®
Data provided via CREA DDF®.
Detailed Features
Interior & Systems
- Heating: Forced air, Natural gas
- Cooling: Central air conditioning
- Basement: Finished, Full
- Appliances: Washer, Refrigerator, Water meter, Dishwasher, Stove, Dryer
- Utilities: Natural Gas, Electricity, Cable, Telephone
- Security: Smoke Detectors
Exterior & Construction
- Exterior: Concrete, Wood, Vinyl siding, Brick Veneer
- Construction: Wood frame, Concrete block, Concrete Walls
- Sewer: Municipal sewage system
- Water: Municipal water
Lot & Land
- Frontage: 60 ft (18.3 m)
- Features: Corner Site, Conservation/green belt, Sump Pump, In-Law Suite
- Zoning: C
Community & Neighbourhood
- Community: Quiet Area, School Bus, Community Centre
- Subdivision: 241 - Rosedale
Room Details (13 rooms)
Listing Information
Listing History
Buy/Sell/Terminated/Expired listing history for 199 KIMBERLY Drive, Hamilton, Ontario, L8K4L2
Location & Neighborhood
🚗 Travel times
Neighborhood Walkability
Mortgage & Cost Calculators
Nearby Homes (Within 2km)
Similar Homes
Similar Properties
No rental comparables found in this area.
Sold Comparables
Access to sold property data requires a registered and verified account with TRREB DDF integration.
Coming SoonRented Comparables
Access to rented property data requires a registered and verified account with TRREB DDF integration.
Coming Soon























