19 - 234 KING ROAD, Richmond Hill (Oak Ridges), Ontario, L4E2W1
MLS: N13021404 | Townhouse (Condo)
$999,888





Property Description
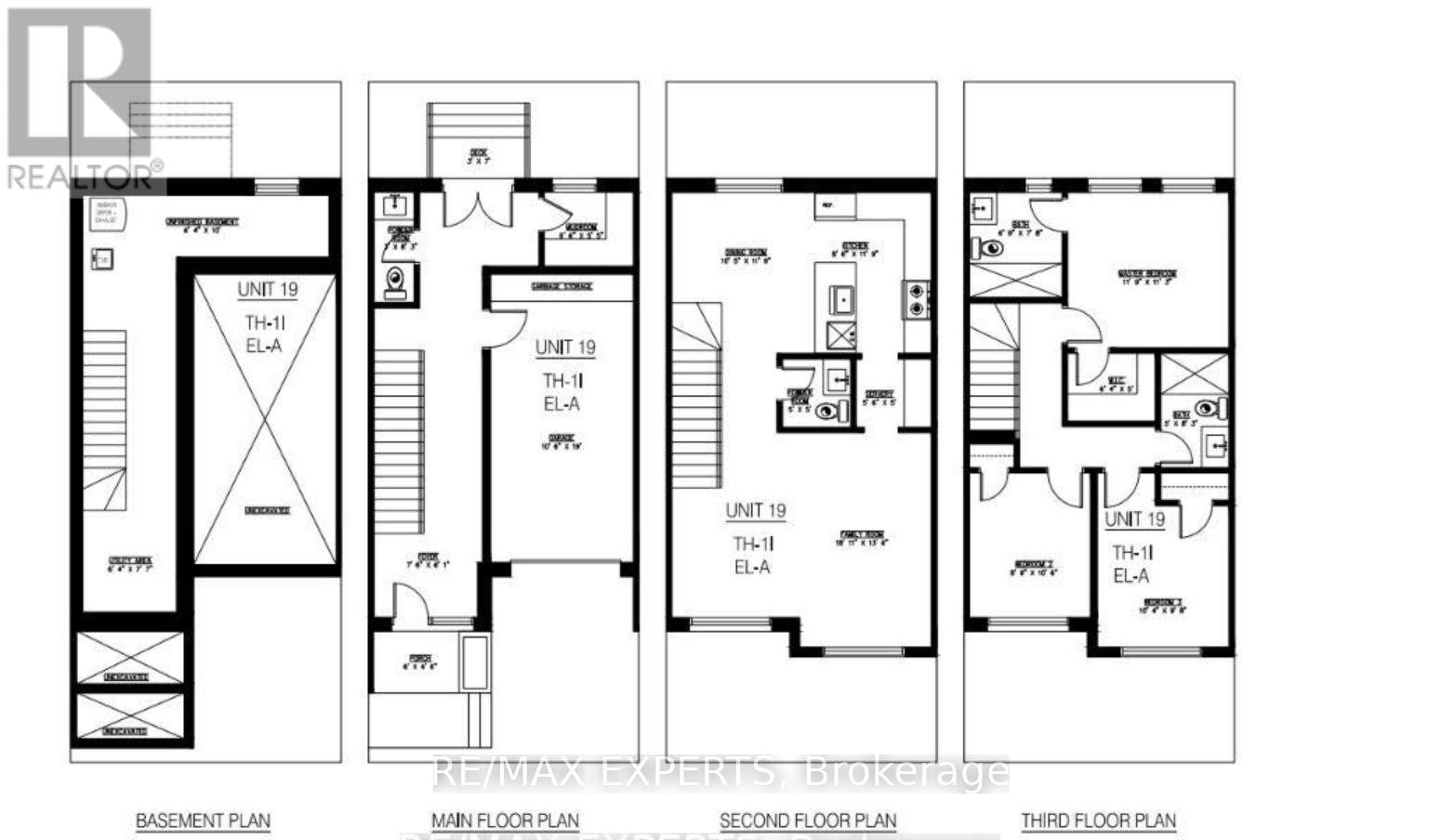
Boutique Style Living in Oak Ridges - Brand New Townhome by Carval Homes Welcome to Macau, an exclusive new community, located in the heart of Oak Ridges, Richmond Hill. This exceptional 1,698 sq. ft. 3-storey townhome offers a layout that lives more like a semi-detached- perfect for those seeking space, comfort, and distinction. Beautifully appointed with 3 spacious bedrooms, 3 bathrooms, a private backyard, and an attached garage with direct interior access, this home is thoughtfully designed for elevated modern living. Step into a bright, open-concept main floor featuring a chef-inspired kitchen. The elegant living and dining areas are ideal for both entertaining and everyday relaxation, with refined finishes throughout. Upstairs, the primary suite is a serene retreat with a walk-in closet and a spa-like ensuite. Two additional bedrooms, and a full second bathroom. The unfinished basement offers endless potential to customize a home gym, media lounge, or guest suite. Step outside to your private backyard, perfect for entertaining, gardening, or simply enjoying quiet time outdoors. Enjoy the convenience of an attached garage with direct access to the home, as well as driveway parking. Located minutes to top-rated schools, scenic parks and trails, shops, GO Transit, and Hwy 400 & Hwy 404, this home delivers luxury, comfort, and connectivity in one of Richmond Hill's most sought-after communities. (id:64974)
Quick Facts
- Property Type: Townhouse (Condo)
- Bedrooms: 3 (3 above)
- Bathrooms: 3 (1 half)
- Ownership: Condo/Strata
- Attached: Yes
- Parking: 2.0 spaces (Attached Garage, Garage)
Listing Provided by: RE/MAX EXPERTS
Board: Toronto Regional Real Estate Board
Data provided via CREA DDF®.
Detailed Features
Interior & Systems
- Heating: Forced air, Natural gas
- Cooling: Central air conditioning
- Basement: Unfinished, N/A
- Appliances: Central Vacuum
Exterior & Construction
- Exterior: Stucco, Brick Facing
- Foundation: Concrete
Community & Neighbourhood
- Community: Pets Allowed With Restrictions
- Neighbourhood: Oak Ridges
Listing Information
Listing History
MLS listing activity for 19 - 234 KING ROAD, Richmond Hill (Oak Ridges), Ontario, L4E2W1 — dates reflect when changes were recorded in the DDF
Location & Neighborhood
🚗 Travel times
Neighborhood Walkability
Mortgage & Cost Calculators
Nearby Homes ?Nearby Homes — Search CriteriaSearch Radius1 kmPrice Range±30%Match BedroomsNoMatch BathroomsNo

32 - 234 KING ROAD, Richmond Hill (Oak Ridges)
Row / Townhouse$1,220,888
Listing Courtesy of RE/MAX EXPERTS

282 KING ROAD, Richmond Hill (Oak Ridges)
Row / Townhouse$1,038,000
$4,731/yr taxListing Courtesy of FOREST HILL REAL ESTATE INC.

21 GEORGE STREET, Richmond Hill (Oak Ridges)
House$959,000
$4,945/yr taxListing Courtesy of REMAX YOUR COMMUNITY REALTY

37 GLOBEMASTER LANE, Richmond Hill (Oak Ridges)
Row / Townhouse$999,000
$4,850/yr taxListing Courtesy of KELLER WILLIAMS REFERRED URBAN REALTY

12 GLOBEMASTER LANE, Richmond Hill (Oak Ridges)
House$1,049,900
$5,157/yr taxListing Courtesy of REMAX YOUR COMMUNITY REALTY

99 SEGUIN STREET, Richmond Hill (Oak Ridges)
Row / Townhouse$1,070,000
$5,181/yr taxListing Courtesy of HOMELIFE SILVERCITY REALTY INC.

35 WALDRON CRESCENT, Richmond Hill (Oak Ridges)
House$950,000
$5,159/yr taxListing Courtesy of RE/MAX EXCEL REALTY LTD.

119 SEGUIN STREET, Richmond Hill (Oak Ridges)
Row / Townhouse$980,000
Listing Courtesy of HOMELIFE LANDMARK REALTY INC.

9 - 12860 YONGE STREET, Richmond Hill (Oak Ridges)
Condo - Row / Townhouse$699,999
$4,392/yr taxListing Courtesy of ROYAL LEPAGE PRG REAL ESTATE

33 KINGSHILL ROAD, Richmond Hill (Oak Ridges)
House$1,199,000
$6,279/yr taxListing Courtesy of REAL BROKER ONTARIO LTD.
Similar Homes ?Similar Homes — Search CriteriaSearch Radius5 kmPrice Range±5%Match Home TypeYesMatch BedroomsYes

62 HELLIWELL CRESCENT, Richmond Hill (Oak Ridges Lake Wilcox)
Row / Townhouse$999,900
$4,699/yr taxListing Courtesy of HOMELIFE LANDMARK REALTY INC.

37 GLOBEMASTER LANE, Richmond Hill (Oak Ridges)
Row / Townhouse$999,000
$4,850/yr taxListing Courtesy of KELLER WILLIAMS REFERRED URBAN REALTY

9 MACE AVENUE, Richmond Hill
Row / Townhouse$999,000
$2,484/yr taxListing Courtesy of ANJIA REALTY

133 LONG POINT DRIVE, Richmond Hill (Oak Ridges Lake Wilcox)
Row / Townhouse$998,000
$3,995/yr taxListing Courtesy of RE/MAX REALTRON ELI BAKHTIARI TEAM REALTY

95 LONG POINT DRIVE, Richmond Hill (Oak Ridges Lake Wilcox)
House$988,000
$4,798/yr taxListing Courtesy of RE/MAX IMPERIAL REALTY INC.

26 CAPE BRETON COURT, Richmond Hill (Oak Ridges Lake Wilcox)
Row / Townhouse$969,000
$4,297/yr taxListing Courtesy of HOMELIFE NEW WORLD REALTY INC.

87 RICHARDSON DRIVE, Aurora (Aurora Highlands)
House$968,000
$4,663/yr taxListing Courtesy of ROYAL LEPAGE RCR REALTY

282 KING ROAD, Richmond Hill (Oak Ridges)
Row / Townhouse$1,038,000
$4,731/yr taxListing Courtesy of FOREST HILL REAL ESTATE INC.

10 BANCROFT LANE, Richmond Hill (Jefferson)
Row / Townhouse$1,038,990
Listing Courtesy of HOMELIFE LANDMARK REALTY INC.

21 GEORGE STREET, Richmond Hill (Oak Ridges)
House$959,000
$4,945/yr taxListing Courtesy of REMAX YOUR COMMUNITY REALTY
Property Comparables ?Active Comparables — Search CriteriaSearch Radius2 kmPrice Range±15%Match Home TypeYesMatch BedroomsYes

37 GLOBEMASTER LANE, Richmond Hill (Oak Ridges)
Row / Townhouse$999,000
$4,850/yr taxListing Courtesy of KELLER WILLIAMS REFERRED URBAN REALTY

133 LONG POINT DRIVE, Richmond Hill (Oak Ridges Lake Wilcox)
Row / Townhouse$998,000
$3,995/yr taxListing Courtesy of RE/MAX REALTRON ELI BAKHTIARI TEAM REALTY

95 LONG POINT DRIVE, Richmond Hill (Oak Ridges Lake Wilcox)
House$988,000
$4,798/yr taxListing Courtesy of RE/MAX IMPERIAL REALTY INC.

26 CAPE BRETON COURT, Richmond Hill (Oak Ridges Lake Wilcox)
Row / Townhouse$969,000
$4,297/yr taxListing Courtesy of HOMELIFE NEW WORLD REALTY INC.

282 KING ROAD, Richmond Hill (Oak Ridges)
Row / Townhouse$1,038,000
$4,731/yr taxListing Courtesy of FOREST HILL REAL ESTATE INC.

21 GEORGE STREET, Richmond Hill (Oak Ridges)
House$959,000
$4,945/yr taxListing Courtesy of REMAX YOUR COMMUNITY REALTY

126 LOWTHER AVENUE, Richmond Hill (Oak Ridges)
Row / Townhouse$939,000
$4,208/yr taxListing Courtesy of CENTURY 21 HERITAGE GROUP LTD.

201 SHIRRICK DRIVE, Richmond Hill (Jefferson)
Row / Townhouse$899,900
$5,365/yr taxListing Courtesy of RE/MAX IMPERIAL REALTY INC.

9 - 71 PUCCINI DRIVE, Richmond Hill (Oak Ridges)
Row / Townhouse$894,900
$4,268/yr taxListing Courtesy of FOREST HILL REAL ESTATE INC.

107 LAKELAND CRESCENT, Richmond Hill (Oak Ridges Lake Wilcox)
House$888,000
$5,401/yr taxListing Courtesy of CENTURY 21 LEADING EDGE REALTY INC.

80 WALKVIEW CRESCENT, Richmond Hill (Oak Ridges)
Row / Townhouse$858,000
$3,972/yr taxListing Courtesy of SUTTON GROUP-ADMIRAL REALTY INC.

55 WALKVIEW CRESCENT, Richmond Hill (Oak Ridges)
Row / Townhouse$3,275/mo
Listing Courtesy of RE/MAX HALLMARK REALTY LTD.

41 CHELTON DR DRIVE, Richmond Hill (Oak Ridges)
Row / Townhouse$2,890/mo
Listing Courtesy of HOMELIFE CLASSIC REALTY INC.
No sold comparables found at this radius. Zoom out on the map to broaden the search area.
No leased comparables found. Rented data requires TRREB DDF integration; the map and search will populate automatically once enabled.
Book a Viewing
19 - 234 KING ROAD, Richmond Hill (Oak Ridges), Ontario, L4E2W1


