1705 - 4065 CONFEDERATION PARKWAY, Mississauga (City Centre), Ontario, L5B0L4
MLS: W12980662 | Apartment (Condo)
$2,300 / monthly
















Property Description
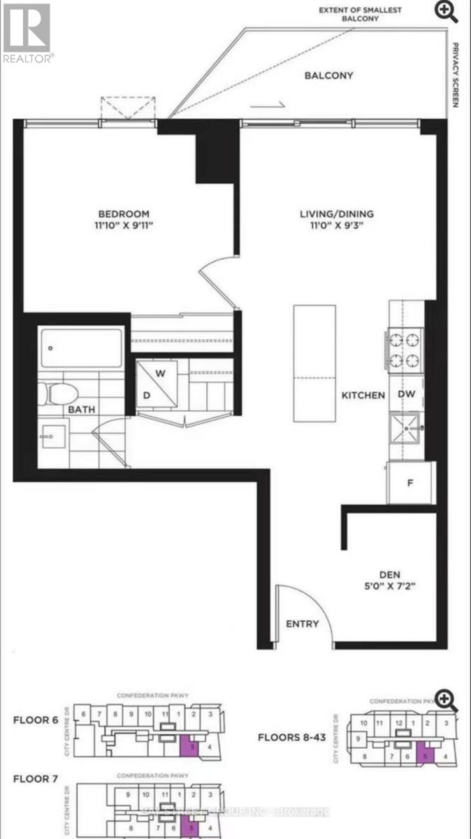
Location!!!The Westly Tower Daneils Built In The Heart Of Mississauga Near Square One. One Bedroom Plus One Den Suite. Sun-Filled Open Concept Floor Plan, 9Ft Ceilings With Floor To Ceiling Windows. Central Island. Quartz Countertop. Stainless Steel Appliances. Walking Distance To Square One Mall,Sheridan College,YMCA,Celebration Square,Go Buses, Mississauga Transits And Library, Minutes To 401,403, QEW.Close To UTM & Cooksville Go Stations.** Newcomers & Students Welcome! ** (id:64974)
Quick Facts
- Property Type: Apartment (Condo)
- Bedrooms: 2 (1 above, 1 below)
- Bathrooms: 1
- Ownership: Condo/Strata
- Attached: Yes
- Parking: 1.0 space (Garage, Underground)
Listing Provided by: BAY STREET GROUP INC.
Board: Toronto Regional Real Estate Board
Data provided via CREA DDF®.
Detailed Features
Interior & Systems
- Heating: Forced air, Natural gas
- Cooling: Central air conditioning
- Basement: None
- Flooring: Laminate
Exterior & Construction
- Exterior: Concrete
Lot & Land
- Features: Balcony, Carpet Free
Community & Neighbourhood
- Community: Pets Allowed With Restrictions
- Building: Exercise Centre, Party Room, Security/Concierge, Visitor Parking
- Neighbourhood: City Centre
Room Details (5 rooms)
Listing Information
Listing History
MLS listing activity for 1705 - 4065 CONFEDERATION PARKWAY, Mississauga (City Centre), Ontario, L5B0L4 — dates reflect when changes were recorded in the DDF
Location & Neighborhood
🚗 Travel times
Neighborhood Walkability
Mortgage & Cost Calculators
Nearby Homes ?Nearby Homes — Search CriteriaSearch Radius1 kmPrice Range±30%Match BedroomsNoMatch BathroomsNo

3311 - 448 BURNHAMTHORPE ROAD W, Mississauga (City Centre)
Condo - Apartment$2,750/mo
Listing Courtesy of ROYAL LEPAGE CERTIFIED REALTY

3607 - 448 BURNHAMTHORPE ROAD W, Mississauga (City Centre)
Condo - Apartment$2,100/mo
Listing Courtesy of UNION CAPITAL REALTY

1706 - 448 BURNHAMTHORPE ROAD W, Mississauga (City Centre)
Single Family$2,450/mo
Listing Courtesy of BOSLEY REAL ESTATE LTD.

448 BURNHAMTHORPE Road W Unit# 1306, Mississauga
Condo - Apartment$2,700/mo
Listing Courtesy of eXp Realty, Brokerage

5307 - 3883 QUARTZ ROAD, Mississauga (City Centre)
Condo - Apartment$2,580/mo
Listing Courtesy of EXP REALTY

3883 QUARTZ Road Unit# 3912, Mississauga
Condo - Apartment$2,350/mo
Listing Courtesy of eXp Realty

5502 - 3883 QUARTZ ROAD, Mississauga (City Centre)
Single Family$2,199/mo
Listing Courtesy of RE/MAX SKYWAY REALTY INC.

4506 - 3883 QUARTZ ROAD, Mississauga (City Centre)
Condo - Apartment$2,425/mo
Listing Courtesy of RE/MAX REAL ESTATE CENTRE INC.

3912 - 3883 QUARTZ ROAD, Mississauga (City Centre)
Condo - Apartment$2,350/mo
Listing Courtesy of eXp Realty

3903 - 3883 QUARTZ ROAD, Mississauga (City Centre)
Condo - Apartment$2,600/mo
Listing Courtesy of CENTURY 21 PROPERTY ZONE REALTY INC.
Similar Homes ?Similar Homes — Search CriteriaSearch Radius5 kmPrice Range±5%Match Home TypeYesMatch BedroomsYes

5508 - 3883 QUARTZ ROAD, Mississauga (City Centre)
Condo - Apartment$2,250/mo
Listing Courtesy of AIMHOME REALTY INC.

BASEMENT - 1182 BLUEHERON BOULEVARD, Mississauga (East Credit)
House$2,200/mo
Listing Courtesy of SOTHEBY'S INTERNATIONAL REALTY CANADA

1811 - 4011 BRICKSTONE MEWS, Mississauga (City Centre)
Condo - Apartment$2,200/mo
Listing Courtesy of HIGHLAND REALTY

1808 - 33 ELM DRIVE W, Mississauga (City Centre)
Condo - Apartment$2,200/mo
Listing Courtesy of CENTURY 21 LEADING EDGE REALTY INC.

3900 CONFEDERATION Parkway Unit# 911, Mississauga
Condo - Apartment$2,200/mo
Listing Courtesy of RE/MAX TWIN CITY REALTY INC.

2601 - 3880 DUKE OF YORK BOULEVARD, Mississauga (City Centre)
Condo - Apartment$2,200/mo
Listing Courtesy of LANDLORD REALTY INC.

2711 - 4011 BRICKSTONE MEWS, Mississauga (City Centre)
Condo - Apartment$2,200/mo
Listing Courtesy of CENTURY 21 LEGACY LTD.

1607 - 2520 EGLINTON AVENUE W, Mississauga (Central Erin Mills)
Condo - Apartment$2,200/mo
Listing Courtesy of RE/MAX IMPERIAL REALTY INC.

1808 - 310 BURNHAMTHORPE ROAD, Mississauga (City Centre)
Condo - Apartment$2,200/mo
Listing Courtesy of CENTURY 21 ATRIA REALTY INC.

1018 BURNHAMTHORPE ROAD E, Mississauga (Applewood)
Other$2,200/mo
Listing Courtesy of SAM MCDADI REAL ESTATE INC.
Property Comparables ?Active Comparables — Search CriteriaSearch Radius2 kmPrice Range±15%Match Home TypeYesMatch BedroomsYes

5508 - 3883 QUARTZ ROAD, Mississauga (City Centre)
Condo - Apartment$2,250/mo
Listing Courtesy of AIMHOME REALTY INC.

BASEMENT - 1182 BLUEHERON BOULEVARD, Mississauga (East Credit)
House$2,200/mo
Listing Courtesy of SOTHEBY'S INTERNATIONAL REALTY CANADA

1811 - 4011 BRICKSTONE MEWS, Mississauga (City Centre)
Condo - Apartment$2,200/mo
Listing Courtesy of HIGHLAND REALTY

1808 - 33 ELM DRIVE W, Mississauga (City Centre)
Condo - Apartment$2,200/mo
Listing Courtesy of CENTURY 21 LEADING EDGE REALTY INC.

3900 CONFEDERATION Parkway Unit# 911, Mississauga
Condo - Apartment$2,200/mo
Listing Courtesy of RE/MAX TWIN CITY REALTY INC.

2601 - 3880 DUKE OF YORK BOULEVARD, Mississauga (City Centre)
Condo - Apartment$2,200/mo
Listing Courtesy of LANDLORD REALTY INC.

2711 - 4011 BRICKSTONE MEWS, Mississauga (City Centre)
Condo - Apartment$2,200/mo
Listing Courtesy of CENTURY 21 LEGACY LTD.

1607 - 2520 EGLINTON AVENUE W, Mississauga (Central Erin Mills)
Condo - Apartment$2,200/mo
Listing Courtesy of RE/MAX IMPERIAL REALTY INC.

1808 - 310 BURNHAMTHORPE ROAD, Mississauga (City Centre)
Condo - Apartment$2,200/mo
Listing Courtesy of CENTURY 21 ATRIA REALTY INC.

1018 BURNHAMTHORPE ROAD E, Mississauga (Applewood)
Other$2,200/mo
Listing Courtesy of SAM MCDADI REAL ESTATE INC.

2406 - 510 CURRAN PLACE, Mississauga (Creditview)
Condo - Apartment$2,200/mo
Listing Courtesy of RIGHT AT HOME REALTY

2213 - 3883 QUARTZ ROAD, Mississauga (City Centre)
Condo - Apartment$2,200/mo
Listing Courtesy of RE/MAX GOLD REALTY INC.

BSMT - 3457 GALENA CRESCENT, Mississauga (Mississauga Valleys)
House$2,200/mo
Listing Courtesy of KELLER WILLIAMS REFERRED URBAN REALTY

308 - 220 MISSINNIHE WAY W, Mississauga (Port Credit)
Condo - Apartment$2,200/mo
Listing Courtesy of RE/MAX ABOUTOWNE REALTY CORP.

4702 - 3900 CONFEDERATION PARKWAY, Mississauga (City Centre)
Condo - Apartment$2,200/mo
Listing Courtesy of Avenue Group Realty Brokerage Inc.

415 - 3975 GRAND PARK DRIVE, Mississauga (City Centre)
Condo - Apartment$2,200/mo
Listing Courtesy of ROYAL LEPAGE REAL ESTATE SERVICES LTD.

208 - 3985 GRAND PARK DRIVE, Mississauga (City Centre)
Condo - Apartment$2,250/mo
Listing Courtesy of LPT REALTY

5508 - 3883 QUARTZ ROAD, Mississauga (City Centre)
Condo - Apartment$2,250/mo
Listing Courtesy of AIMHOME REALTY INC.

911 - 3883 QUARTZ ROAD, Mississauga (City Centre)
Condo - Apartment$2,250/mo
Listing Courtesy of CENTURY 21 MILLER REAL ESTATE LTD.

2213 - 3883 QUARTZ ROAD, Mississauga (City Centre)
Condo - Apartment$2,200/mo
Listing Courtesy of RE/MAX GOLD REALTY INC.

2312 - 448 BURNHAMTHORPE ROAD, Mississauga (City Centre)
Condo - Apartment$2,350/mo
Listing Courtesy of HOMELIFE/MIRACLE REALTY LTD

3301 - 3900 CONFEDERATION PARKWAY, Mississauga (City Centre)
Condo - Apartment$2,400/mo
Listing Courtesy of ICI SOURCE REAL ASSET SERVICES INC.

212 - 3900 CONFEDERATION PARKWAY, Mississauga (City Centre)
Condo - Apartment$2,250/mo
Listing Courtesy of HOMELIFE/MIRACLE REALTY LTD

2011 - 3900 CONFEDERATION PARKWAY, Mississauga (City Centre)
Condo - Apartment$2,300/mo
Listing Courtesy of RE/MAX REAL ESTATE CENTRE INC.

1112 - 3900 CONFEDERATION PARKWAY, Mississauga (City Centre)
Condo - Apartment$2,300/mo
Listing Courtesy of REAL BROKER ONTARIO LTD.

511 - 3900 CONFEDERATION PARKWAY, Mississauga (City Centre)
Condo - Apartment$2,250/mo
Listing Courtesy of HOMELIFE/MIRACLE REALTY LTD

4702 - 3900 CONFEDERATION PARKWAY, Mississauga (City Centre)
Condo - Apartment$2,200/mo
Listing Courtesy of Avenue Group Realty Brokerage Inc.

3900 CONFEDERATION Parkway Unit# 911, Mississauga
Condo - Apartment$2,200/mo
Listing Courtesy of RE/MAX TWIN CITY REALTY INC.

2711 - 4011 BRICKSTONE MEWS, Mississauga (City Centre)
Condo - Apartment$2,200/mo
Listing Courtesy of CENTURY 21 LEGACY LTD.

1811 - 4011 BRICKSTONE MEWS, Mississauga (City Centre)
Condo - Apartment$2,200/mo
Listing Courtesy of HIGHLAND REALTY
Sold comparables require subject coordinates and a sale-context listing.
No leased comparables found. Rented data requires TRREB DDF integration; the map and search will populate automatically once enabled.
Book a Viewing
1705 - 4065 CONFEDERATION PARKWAY, Mississauga (City Centre), Ontario, L5B0L4








