1703 FIELDSTONE CRESCENT, Ottawa, Ontario, K1C1R6
MLS: X13035296 | House (Freehold)
$715,000








































Property Description
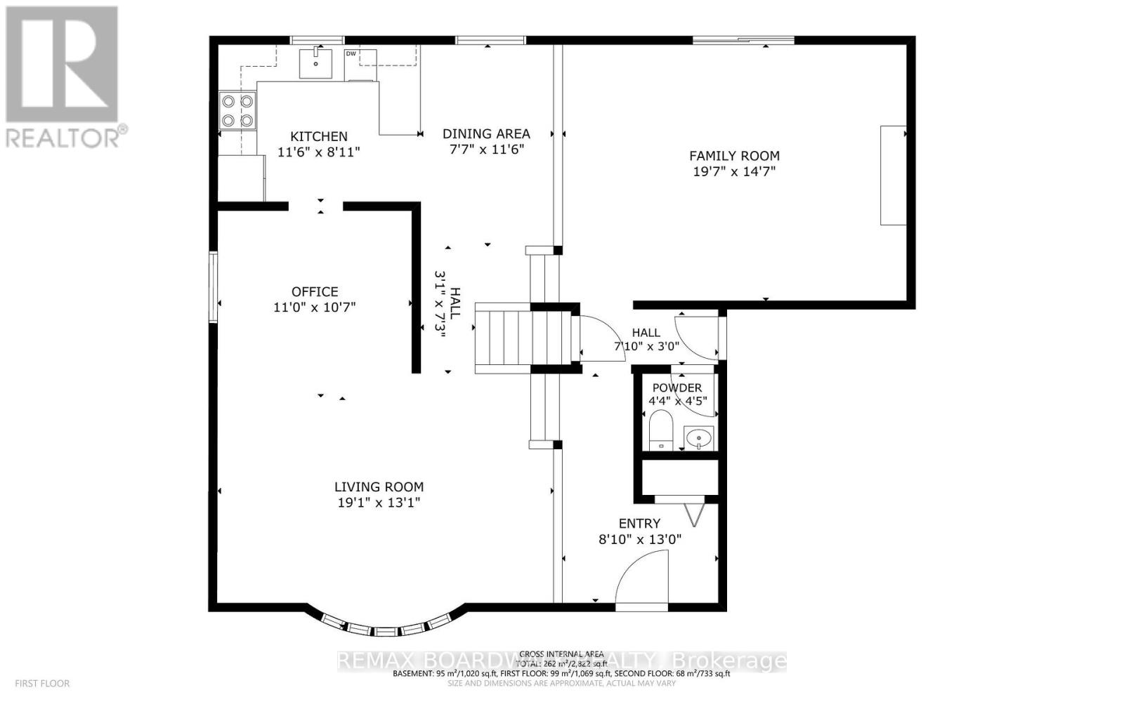
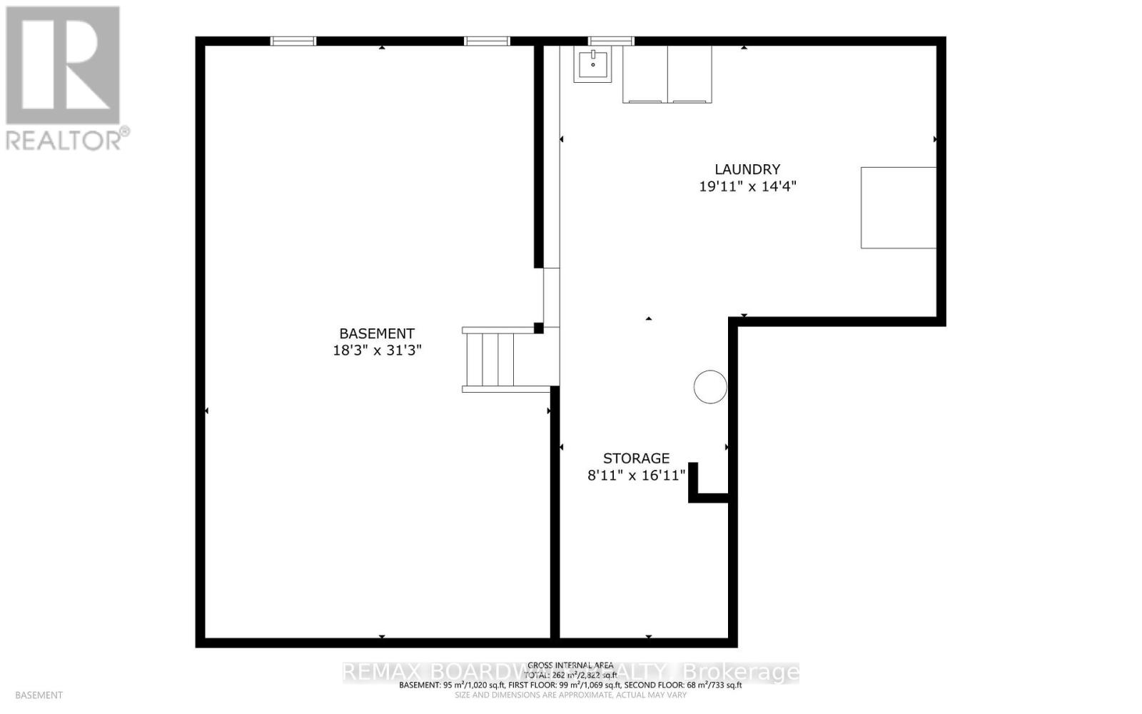
Welcome to this beautifully maintained Costain-built home in the established and family-friendly community of Convent Glen in Ottawa's east end. Tucked away on a quiet street, this 3-bedroom, 1.5-bath property offers the perfect blend of comfort, functionality, and location-ideal for families, first-time buyers, and professionals alike. Step inside to a bright, open-concept main floor designed for modern living. The fully updated white kitchen (2026) features new cabinetry, elegant marble countertops, and ceramic tile flooring-creating a clean, timeless space for cooking and entertaining. Seamless flow connects the kitchen to the dining area, living room, and additional eating space, offering versatility for both everyday life and hosting. Upstairs, the spacious primary bedroom includes a walk-in closet and private ensuite bath, while two well-proportioned secondary bedrooms offer ample closet space-perfect for growing families or home office flexibility. Outside, the fully fenced yard is thoughtfully landscaped and meticulously cared for by long-term owners, providing a private retreat for relaxing or entertaining. Basement has no Crawlspace, fully excavated under the main floor of this split level. Convent Glen is known for its exceptional lifestyle convenience. Enjoy quick access to public transit and the LRT, making commuting to downtown Ottawa simple and efficient. Families will appreciate proximity to highly regarded schools, nearby parks, and the Ottawa River pathways. Everyday essentials are just minutes away with Place D'Orléans shopping, grocery stores, restaurants, and recreation facilities all within easy reach. A turnkey home in a mature, amenity-rich neighbourhood-this is an opportunity to invest in both lifestyle and location. (id:64974)
Quick Facts
- Property Type: House (Freehold)
- Bedrooms: 3 (3 above)
- Bathrooms: 3 (2 half)
- Ownership: Freehold
- Attached: No
- Fireplaces: 1
- Parking: 5.0 spaces (Attached Garage, Garage)
- Frontage: 50 ft (15.2 m)
Costs
- Annual Taxes: $4,099.00 (2025)
Listing Provided by: REMAX BOARDWALK REALTY
Board: Ottawa Real Estate Board
Data provided via CREA DDF®.
Detailed Features
Interior & Systems
- Heating: Forced air, Natural gas
- Cooling: Central air conditioning
- Basement: Unfinished, Full
- Appliances: Washer, Refrigerator, Water meter, Dishwasher, Stove, Dryer, Garage door opener remote(s), Water Heater
- Utilities: Sewer, Electricity, Cable
Exterior & Construction
- Exterior: Brick, Aluminum siding
- Foundation: Concrete
- Fencing: Fenced yard
- Sewer: Sanitary sewer
- Water: Municipal water
Lot & Land
- Frontage: 50 ft (15.2 m)
Community & Neighbourhood
- Building: Fireplace(s)
- Neighbourhood: 2006 - Convent Glen South
Room Details (11 rooms)
Listing Information
Listing History
MLS listing activity for 1703 FIELDSTONE CRESCENT, Ottawa, Ontario, K1C1R6 — dates reflect when changes were recorded in the DDF
Location & Neighborhood
🚗 Travel times
Neighborhood Walkability
Mortgage & Cost Calculators
Nearby Homes ?Nearby Homes — Search CriteriaSearch Radius1 kmPrice Range±30%Match BedroomsNoMatch BathroomsNo

1767 BONAVENTURE TERRACE, Ottawa
House$599,900
$3,608/yr taxListing Courtesy of HOUSESIGMA INC

2054 ST. JOSEPH BOULEVARD, Ottawa
Retail$928,000
$12,282/yr taxListing Courtesy of PAUL RUSHFORTH REAL ESTATE INC.

1089 ST EMMANUEL TERRACE, Ottawa
House$619,900
$3,912/yr taxListing Courtesy of ROYAL LEPAGE PERFORMANCE REALTY

1113 SAINT-EMMANUEL TERRACE, Ottawa
House$844,900
$5,593/yr taxListing Courtesy of MARTELS REAL ESTATE INC.

1290 ST. JEAN STREET, Ottawa
House$745,000
$3,202/yr taxListing Courtesy of RE/MAX ABSOLUTE WALKER REALTY

1600 HENRI LAUZON STREET, Ottawa
Row / Townhouse$679,000
$4,230/yr taxListing Courtesy of REMAX BOARDWALK REALTY

6241 ST ALBANS COURT, Ottawa
House$689,900
$4,758/yr taxListing Courtesy of REMAX BOARDWALK REALTY

6289 VORLAGE DRIVE, Ottawa
House$594,900
$3,777/yr taxListing Courtesy of RE/MAX ABSOLUTE WALKER REALTY

1126 MILLWOOD COURT, Ottawa
Condo - Row / Townhouse$544,000
$3,133/yr taxListing Courtesy of ROYAL LEPAGE PERFORMANCE REALTY

1445 GAULTOIS Avenue, Orleans
House$589,000
$3,961/yr taxListing Courtesy of ComFree
Similar Homes ?Similar Homes — Search CriteriaSearch Radius5 kmPrice Range±5%Match Home TypeYesMatch BedroomsYes

6033 MEADOWGLEN DRIVE, Ottawa
House$715,000
$4,832/yr taxListing Courtesy of RE/MAX HALLMARK REALTY GROUP

6417 ST LOUIS DRIVE, Ottawa
House$714,900
$4,710/yr taxListing Courtesy of ROYAL LEPAGE PERFORMANCE REALTY

270 MCEACHERN CRESCENT, Ottawa
House$724,900
$4,648/yr taxListing Courtesy of RE/MAX HALLMARK REALTY GROUP

908 CHALEUR WAY, Ottawa
House$729,000
$5,385/yr taxListing Courtesy of SUTTON GROUP - OTTAWA REALTY

6096 MEADOWHILL CRESCENT, Ottawa
House$699,900
$4,477/yr taxListing Courtesy of LOCKE REAL ESTATE INC.

641 WILKIE DRIVE, Ottawa
House$699,000
$4,477/yr taxListing Courtesy of RE/MAX HALLMARK REALTY GROUP

635 CORDELETTE CIRCLE, Ottawa
Row / Townhouse$696,000
$4,501/yr taxListing Courtesy of ROYAL LEPAGE PERFORMANCE REALTY

790 CAIRN CRESCENT, Ottawa
Row / Townhouse$695,000
$4,194/yr taxListing Courtesy of ROYAL LEPAGE PERFORMANCE REALTY

755 MERKLEY DRIVE, Ottawa
House$695,000
$5,250/yr taxListing Courtesy of RE/MAX ABSOLUTE WALKER REALTY

448 ROCHEFORT CIRCLE, Ottawa
House$694,995
$4,761/yr taxListing Courtesy of AVENUE NORTH REALTY INC.
Property Comparables ?Active Comparables — Search CriteriaSearch Radius2 kmPrice Range±15%Match Home TypeYesMatch BedroomsYes

6417 ST LOUIS DRIVE, Ottawa
House$714,900
$4,710/yr taxListing Courtesy of ROYAL LEPAGE PERFORMANCE REALTY

908 CHALEUR WAY, Ottawa
House$729,000
$5,385/yr taxListing Courtesy of SUTTON GROUP - OTTAWA REALTY

6096 MEADOWHILL CRESCENT, Ottawa
House$699,900
$4,477/yr taxListing Courtesy of LOCKE REAL ESTATE INC.

6241 ST ALBANS COURT, Ottawa
House$689,900
$4,758/yr taxListing Courtesy of REMAX BOARDWALK REALTY

1600 HENRI LAUZON STREET, Ottawa
Row / Townhouse$679,000
$4,230/yr taxListing Courtesy of REMAX BOARDWALK REALTY

1809 CHOPIN PLACE, Ottawa
House$674,900
$4,146/yr taxListing Courtesy of POWER MARKETING REAL ESTATE INC.

1705 BELCOURT BOULEVARD, Ottawa
House$769,900
$3,009/yr taxListing Courtesy of ONE PERCENT REALTY LTD.

1091 BURGUNDY LANE, Ottawa
House$659,900
$4,243/yr taxListing Courtesy of RE/MAX HALLMARK REALTY GROUP

1715 TEAKDALE AVENUE, Ottawa
House$779,000
$5,066/yr taxListing Courtesy of REMAX BOARDWALK REALTY

841 BALSAM DRIVE, Ottawa
House$649,000
$4,778/yr taxListing Courtesy of POWER MARKETING REAL ESTATE INC.

1123 BURGUNDY LANE, Ottawa
House$640,000
$4,550/yr taxListing Courtesy of EXIT REALTY MATRIX

1402 JAMISON AVENUE, Ottawa
House$625,000
$4,366/yr taxListing Courtesy of EXIT REALTY MATRIX

1089 ST EMMANUEL TERRACE, Ottawa
House$619,900
$3,912/yr taxListing Courtesy of ROYAL LEPAGE PERFORMANCE REALTY
No rental comparables found in this area.
No leased comparables found. Rented data requires TRREB DDF integration; the map and search will populate automatically once enabled.
Book a Viewing
1703 FIELDSTONE CRESCENT, Ottawa, Ontario, K1C1R6






