17 Clairmont Street, Sudbury, Ontario, P3B3S4
MLS: 2126253 | House (Freehold)
$599,900













































Property Description
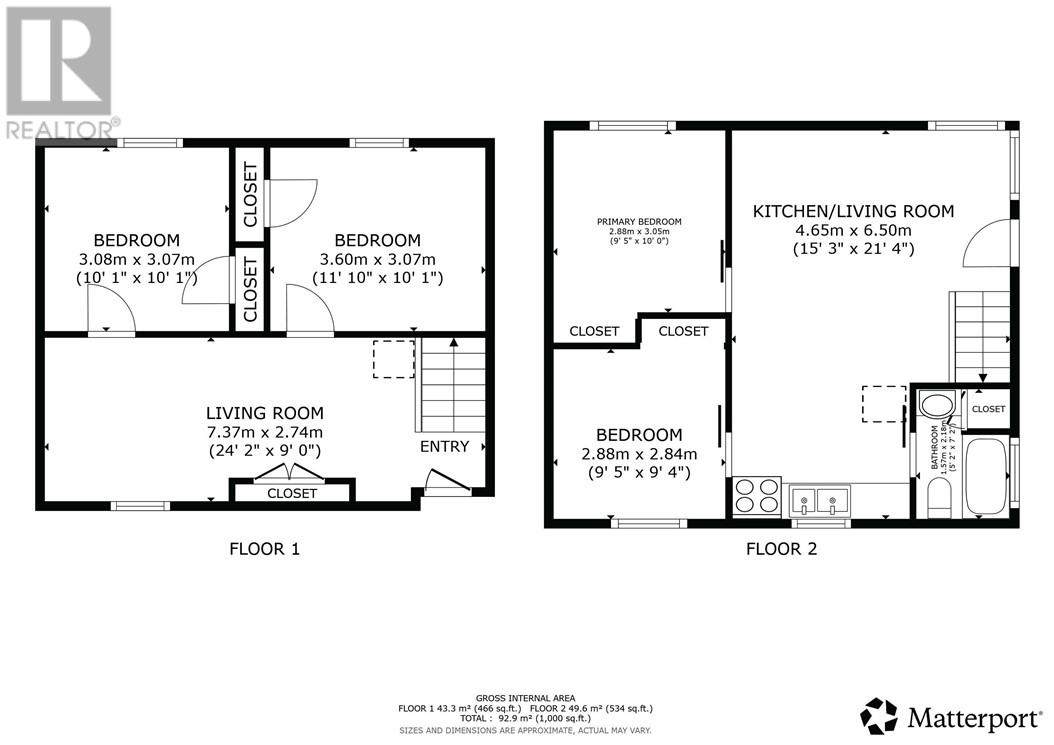
Very profitable building! This home with 2 in-law suites is located on a quiet cul de sac in Minnow Lake featuring one 4-bedroom unit with in-suite laundry and two 2-bedroom units. Very deep and private lot with lots of parking. The current gross rental income is $60,773. The 4-bedroom unit pays their own gas and hydro. The 2-bedroom units have inclusive rents. There are 2 separate gas and hydro meters. Combination of hot water and forced air heat with no rentals! Great location in walking distance to the future KED development on the Kingsway. (id:64974)
Quick Facts
- Property Type: House (Freehold)
- Style: Bungalow
- Bedrooms: 8
- Bathrooms: 3
- Ownership: Freehold
Listing Provided by: RE/MAX CROWN REALTY (1989) INC., BROKERAGE (SUDBURY)
Board: Sudbury Real Estate Board
Data provided via CREA DDF®.
Detailed Features
Interior & Systems
- Heating: Forced air, Boiler
- Basement: Full
- Flooring: Tile, Laminate
- Security: Fire alarm system
Exterior & Construction
- Style: Bungalow
- Exterior: Vinyl
- Roof: Asphalt shingle, Unknown
- Foundation: Block
- Sewer: Municipal sewage system
- Water: Municipal water
Lot & Land
- Zoning: P, R1-5
Community & Neighbourhood
- Community: Family Oriented, Quiet Area, School Bus, Rentals Allowed
Room Details (13 rooms)
Listing Information
Listing History
Buy/Sell/Terminated/Expired listing history for 17 Clairmont Street, Sudbury, Ontario, P3B3S4
Location & Neighborhood
🚗 Travel times
Neighborhood Walkability
Mortgage & Cost Calculators
Nearby Homes (Within 2km)
Similar Homes
Similar Properties
No rental comparables found in this area.
Sold Comparables
Access to sold property data requires a registered and verified account with TRREB DDF integration.
Coming SoonRented Comparables
Access to rented property data requires a registered and verified account with TRREB DDF integration.
Coming Soon
























