137 NELSON Street Unit# 203, Brantford, Ontario, N3S4B5
MLS: 40801664 | Other
$2,150.00 / monthly














Property Description
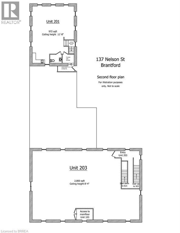
Just steps from Clarence Street and the core of downtown Brantford, this beautifully revitalized historic mixed-use building offers flexible leasing opportunities to suit a wide range of business needs. This second-floor 2,550 sq. ft. unit features 9-foot ceilings and is well suited for storage use or conversion to office or studio space.The building offers multiple unit configurations, including office, retail, private studio, warehousing, and storage options. Units may be leased individually or combined to create a customized footprint tailored to your operation. Need more space? This unit combines well with units 102/103 & 303 (MLS®#40801634 & 40801681).Each unit includes onsite parking and benefits from excellent access to public transit, the university campus, and downtown amenities. A rare opportunity to locate your business in a character-rich building offering modern functionality in a high-demand, central location. (id:64974)
Quick Facts
- Property Type: Other
- Bedrooms: None
- Bathrooms: None
- Living Area: 2,800 sq ft (260.1 m²)
- Ownership: Freehold
- Frontage: 108 ft (32.9 m)
Listing Provided by: EXP Realty
Board: Brantford Regional Real Estate Assn Inc
Data provided via CREA DDF®.
Detailed Features
Interior & Systems
- Basement: None
- Security: Alarm system, Security system
Exterior & Construction
- Exterior: Brick, Stucco
- Sewer: Municipal sewage system
- Water: Municipal water
Lot & Land
- Frontage: 108 ft (32.9 m)
- Zoning: UD
Community & Neighbourhood
- Community: High Traffic Area
- Subdivision: 2043 - Downtown Core
Listing Information
Listing History
Buy/Sell/Terminated/Expired listing history for 137 NELSON Street Unit# 203, Brantford, Ontario, N3S4B5
Location & Neighborhood
🚗 Travel times
Neighborhood Walkability
Mortgage & Cost Calculators
Nearby Homes (Within 2km)
Similar Homes
Similar Properties
Sold Comparables
Access to sold property data requires a registered and verified account with TRREB DDF integration.
Coming SoonRented Comparables
Access to rented property data requires a registered and verified account with TRREB DDF integration.
Coming Soon































