1061 VANSICKLE Road N Unit# 303B, St. Catharines, Ontario, L2M2X4
MLS: 40823286 | Apartment (Condo)
$389,900



























Property Description
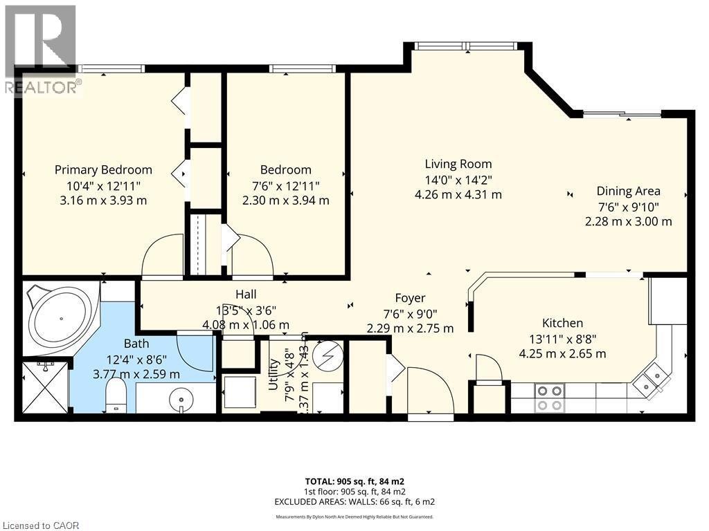
Bright 2-bed, 1-bath TOP floor Condo in a quiet low-rise building with an elevator, your own locker and a private parking spot. Delivering unobstructed Southern views, this unit is not only safe, it is private and thoughtfully designed with a functional layout and delivers an abundance of natural sunlight! This inviting unit is ideal for first-time buyers, downsizers, investors and is perfect for those in need of wheelchair accessibility!! The open-concept living provides a spacious kitchen with ample cabinetry and counter space, flowing seamlessly into the dining area—perfect for everyday living and entertaining. The living room is warm and welcoming with large windows and access to your covered balcony. The primary bedroom provides generous room for furnishings and double closets, while the second bedroom is perfect for guests, a home office, or family needs. A clean and functional 4-piece bath with a shower and soaker tub with jets and your own laundry room completes the living space. Additional highlights include both bedrooms, foyer, living room and dining room freshly painted, one dedicated parking spot, and a private locker for added storage. This well-kept building offers a quiet residential setting, lots of visitor parking and large grounds to walk pets. Ideally located close to schools, parks, trails, shopping, restaurants, and transit, with quick access to the QEW and Hwy 406, this home delivers outstanding convenience for commuters and lifestyle buyers alike. Providing excellent value and ease of ownership, this condo is a wonderful opportunity to enjoy comfortable living in one of St. Catharines’ most accessible neighbourhoods. (id:64974)
Quick Facts
- Property Type: Apartment (Condo)
- Bedrooms: 2 (2 above)
- Bathrooms: 1
- Living Area: 995 sq ft (92.4 m²)
- Above Grade: 995 sq ft (92.4 m²)
- Ownership: Condo/Strata
- Attached: Yes
- Parking: 1.0 space (Visitor Parking)
Costs
- Annual Taxes: $3,200.00
- Condo/HOA Fee: $590.64 / monthly
- Includes: Landscaping, Property Management, Water, Insurance, Parking
Listing Provided by: Royal LePage NRC Realty Inc.
Board: Cornerstone Association of REALTORS®
Data provided via CREA DDF®.
Detailed Features
Interior & Systems
- Heating: Baseboard heaters, Electric
- Cooling: Central air conditioning
- Basement: None
- Appliances: Washer, Refrigerator, Dishwasher, Stove, Dryer, Microwave, Hood Fan
Exterior & Construction
- Exterior: Other
- Sewer: Municipal sewage system
- Water: Municipal water
Lot & Land
- Features: Conservation/green belt, Balcony, Paved driveway
- Zoning: R3
Community & Neighbourhood
- Community: Quiet Area, School Bus, Community Centre
- Subdivision: 462 - Rykert/Vansickle
Room Details (8 rooms)
Listing Information
Listing History
MLS listing activity for 1061 VANSICKLE Road N Unit# 303B, St. Catharines, Ontario, L2M2X4 — dates reflect when changes were recorded in the DDF
Location & Neighborhood
🚗 Travel times
Neighborhood Walkability
Mortgage & Cost Calculators
Nearby Homes ?Nearby Homes — Search CriteriaSearch Radius1 kmPrice Range±30%Match BedroomsNoMatch BathroomsNo
Similar Homes ?Similar Homes — Search CriteriaSearch Radius5 kmPrice Range±5%Match Home TypeYesMatch BedroomsYes

19 LONGFELLOW AVENUE, St. Catharines (Haig)
House$380,000
$3,000/yr taxListing Courtesy of Vintage Real Estate Co. LTD

1329 EUCLID AVE, THUNDER BAY
Single Family$389,900
$3,562/yr taxListing Courtesy of ROYAL LEPAGE LANNON REALTY

16 CONCORD Place Unit# 431, Grimsby
Condo - Apartment$389,900
$2,957/yr taxListing Courtesy of RE/MAX Garden City Realty Inc.

310 CONRAD STREET, Sarnia
House$389,900
Listing Courtesy of INITIA REAL ESTATE (ONTARIO) LTD.

302 - 1109 MILLWOOD AVENUE, Brockville
Condo - Apartment$389,900
$4,999/yr taxListing Courtesy of CENTURY 21 RIVER'S EDGE LTD

66 BAY Street S Unit# 511, Hamilton
Condo - Apartment$389,900
$3,958/yr taxListing Courtesy of Michael St. Jean Realty Inc.

5 MAHONY Avenue, Hamilton
House$389,900
$1,956/yr taxListing Courtesy of RE/MAX Escarpment Realty Inc.

25 MURRAY Court Unit# 1, Milverton
Condo - Apartment$389,900
$1,603/yr taxListing Courtesy of RE/MAX SOLID GOLD REALTY (II) LTD.

56 VICTORIA Street, Brantford
House$389,900
$2,458/yr taxListing Courtesy of RE/MAX Escarpment Realty Inc.

212 - 10 SUNRISE AVENUE, Toronto (Victoria Village)
Condo - Apartment$389,900
$1,614/yr taxListing Courtesy of RE/MAX HALLMARK REALTY LTD.
Property Comparables ?Active Comparables — Search CriteriaSearch Radius2 kmPrice Range±15%Match Home TypeYesMatch BedroomsYes

19 LONGFELLOW AVENUE, St. Catharines (Haig)
House$380,000
$3,000/yr taxListing Courtesy of Vintage Real Estate Co. LTD

56 WELLAND Avenue, St. Catharines
House$360,000
$2,649/yr taxListing Courtesy of RE/MAX Escarpment Golfi Realty Inc.

26 WELLINGTON Street Unit# 404, St. Catharines
Condo - Apartment$429,900
$3,710/yr taxListing Courtesy of RE/MAX Niagara Realty Ltd.
No rental comparables found in this area.
No sold comparables found at this radius. Zoom out on the map to broaden the search area.
No leased comparables found. Rented data requires TRREB DDF integration; the map and search will populate automatically once enabled.
Book a Viewing
1061 VANSICKLE Road N Unit# 303B, St. Catharines, Ontario, L2M2X4







