1061 VANSICKLE Road N Unit# 303B, St. Catharines, Ontario, L2M2X4
MLS: 40806955 | Apartment (Condo)
$398,900


























Property Description
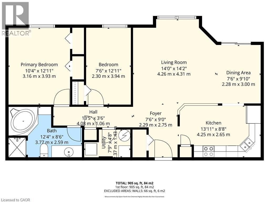
Bright 2-bed, 1-bath TOP floor Condo in a quiet low-rise building with an elevator, your own locker and a private parking spot. Delivering unobstructed Southern views, this unit is not only safe, it is private and thoughtfully designed with a functional layout and delivers an abundance of natural sunlight! This inviting unit is ideal for first-time buyers, downsizers, investors and is perfect for those in need of wheelchair accessibility!! The open-concept living provides a spacious kitchen with ample cabinetry and counter space, flowing seamlessly into the dining area—perfect for everyday living and entertaining. The living room is warm and welcoming with large windows and access to your covered balcony. The primary bedroom provides generous room for furnishings and double closets, while the second bedroom is perfect for guests, a home office, or family needs. A clean and functional 4-piece bath with a shower and soaker tub with jets and your own laundry room completes the living space. Additional highlights include both bedrooms, foyer, living room and dining room freshly painted, one dedicated parking spot, and a private locker for added storage. This well-kept building offers a quiet residential setting, lots of visitor parking and large grounds to walk pets. Ideally located close to schools, parks, trails, shopping, restaurants, and transit, with quick access to the QEW and Hwy 406, this home delivers outstanding convenience for commuters and lifestyle buyers alike. Providing excellent value and ease of ownership, this condo is a wonderful opportunity to enjoy comfortable living in one of St. Catharines’ most accessible neighbourhoods. (id:64974)
Quick Facts
- Property Type: Apartment (Condo)
- Bedrooms: 2 (2 above)
- Bathrooms: 1
- Living Area: 995 sq ft (92.4 m²)
- Above Grade: 995 sq ft (92.4 m²)
- Ownership: Condo/Strata
- Attached: Yes
- Parking: 1 space (Visitor Parking)
Costs
- Annual Taxes: $3,200.00
- Condo/HOA Fee: $590.64 / monthly
- Includes: Landscaping, Property Management, Water, Insurance, Parking
Listing Provided by: Royal LePage NRC Realty Inc.
Board: Cornerstone Association of REALTORS®
Data provided via CREA DDF®.
Detailed Features
Interior & Systems
- Heating: Baseboard heaters, Electric
- Cooling: Central air conditioning
- Basement: None
- Appliances: Washer, Refrigerator, Dishwasher, Stove, Dryer, Microwave, Hood Fan
Exterior & Construction
- Exterior: Other
- Sewer: Municipal sewage system
- Water: Municipal water
Lot & Land
- Features: Conservation/green belt, Balcony, Paved driveway
- Zoning: R3
Community & Neighbourhood
- Community: Quiet Area, School Bus, Community Centre
- Subdivision: 462 - Rykert/Vansickle
Room Details (8 rooms)
Listing Information
Listing History
Buy/Sell/Terminated/Expired listing history for 1061 VANSICKLE Road N Unit# 303B, St. Catharines, Ontario, L2M2X4
Location & Neighborhood
🚗 Travel times
Neighborhood Walkability
Mortgage & Cost Calculators
Nearby Homes (Within 2km)
Similar Homes
Similar Properties
No rental comparables found in this area.
Sold Comparables
Access to sold property data requires a registered and verified account with TRREB DDF integration.
Coming SoonRented Comparables
Access to rented property data requires a registered and verified account with TRREB DDF integration.
Coming Soon



















