N/A ALMA STREET N, Kawartha Lakes (Omemee), Ontario, K0L2W0
MLS: X12246551 | Vacant Land
$799,000






































Property Description
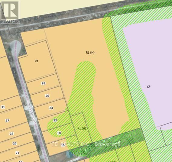
4.6 Acres in Kawartha Lakes -- In Town Convenience with a Country Feel! An exceptional opportunity to own a rare oversized in-town property where you'll enjoy the peacefulness of the countryside with the convenience of nearby amenities. This beautiful 4.6-acre parcel features a pond, adding to its natural charm and tranquil setting. Ideally located within walking distance to amenities including Scott Young Public School, two public boat launches, and the soon-to-be revitalized Omemee Beach Park. Backing onto the Kawartha Trans Canada Trail, it's a dream for outdoor enthusiasts offering direct access to miles of scenic trail for year-round exploration. With access at the end of the cul-de-sac and through the unopened road allowance, this property offers flexibility and exciting development potential. Situated just minutes from Peterborough, Lindsay, Ennismore, and Bridgenorth, you'll enjoy small-town charm with city convenience close by. Municipal sewers and natural gas available on Alma Street. (id:64974)
Quick Facts
- Property Type: Vacant Land
- Bedrooms: None
- Bathrooms: 0
- Frontage: 327 ft (99.8 m)
Costs
- Annual Taxes: $870.20
Listing Provided by: PD REALTY INC.
Board: Central Lakes Association of REALTORS®
Data provided via CREA DDF®.
Detailed Features
Interior & Systems
- Utilities: Sewer, Electricity, Cable, Natural Gas Available, Electricity Available
Lot & Land
- Frontage: 327 ft (99.8 m)
- Features: Irregular lot size
- Zoning: R1(H)
Community & Neighbourhood
- Neighbourhood: Omemee
Listing Information
Listing History
Buy/Sell/Terminated/Expired listing history for N/A ALMA STREET N, Kawartha Lakes (Omemee), Ontario, K0L2W0
Location & Neighborhood
🚗 Travel times
Neighborhood Walkability
Mortgage & Cost Calculators
Nearby Homes (Within 2km)
Similar Homes
Similar Properties
No rental comparables found in this area.
Sold Comparables
Access to sold property data requires a registered and verified account with TRREB DDF integration.
Coming SoonRented Comparables
Access to rented property data requires a registered and verified account with TRREB DDF integration.
Coming Soon


























