LOT 22 HURONTARIO STREET, Caledon, Ontario, L7K1W7
MLS: W12781610 | Vacant Land
$799,000





Property Description
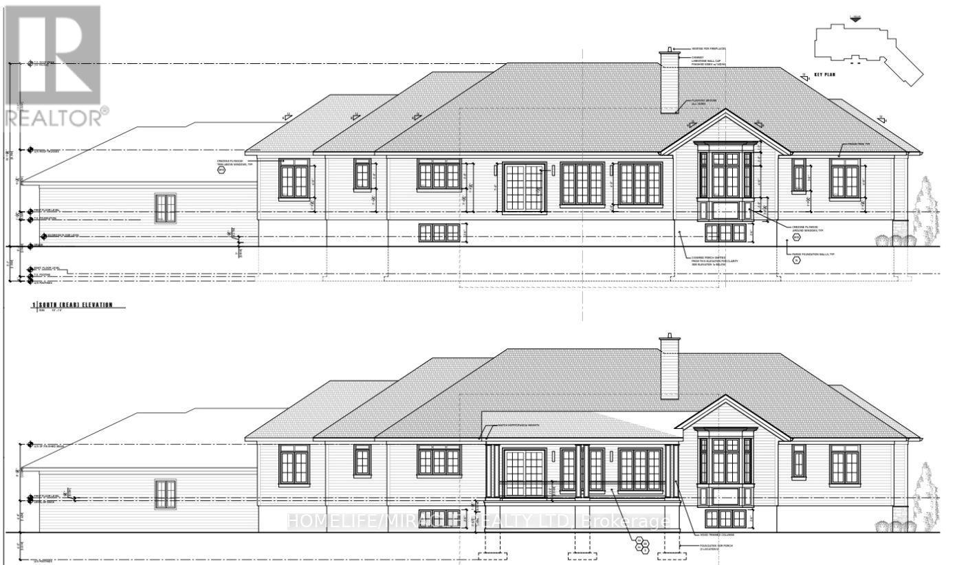
Rare build-ready opportunity in the Town of Caledon.Set on a picturesque 12+ acre parcel, Lot 22 Hurontario is offered as vacant land with the foundation and basement already completed and approved architectural plans for an impressive 3,234 sq. ft. custom bungalow. The property offers exceptional privacy and tranquility, making it an ideal setting for a refined country estate.The approved plans envision a thoughtfully designed luxury residence featuring three bedrooms and four bathrooms, expansive principal rooms, and a generous family living area ideal for both everyday comfort and entertaining. A separate chef's kitchen has been incorporated to provide additional prep and cooking space. Design highlights include soaring ceilings, a large covered rear porch, and premium finishes throughout.Extensive planning, design, and approval work has already been completed, providing a streamlined path to construction with the opportunity for buyer review and customization.Property is being sold as vacant land with approved plans. Buyers are responsible for completing their own due diligence with respect to zoning, permits, development charges, construction requirements, and intended use. Images are architectural renderings only. No dwelling has been constructed beyond the existing foundation. (id:64974)
Quick Facts
- Property Type: Vacant Land
- Bedrooms: 0
- Bathrooms: 0
- Parking: 50 spaces (No Garage)
- Frontage: 58 ft (17.7 m)
Costs
- Annual Taxes: $3,891.26
Listing Provided by: HOMELIFE/MIRACLE REALTY LTD
Board: Toronto Regional Real Estate Board
Data provided via CREA DDF®.
Detailed Features
Interior & Systems
- Heating: Other
- Basement: None
- Utilities: Electricity, Cable
Exterior & Construction
- Foundation: Concrete
Lot & Land
- Frontage: 58 ft (17.7 m)
- Features: Level lot, Wooded area, Irregular lot size, Ravine, Flat site, Conservation/green belt
- Zoning: Residential
Community & Neighbourhood
- Neighbourhood: Rural Caledon
Listing Information
Listing History
Buy/Sell/Terminated/Expired listing history for LOT 22 HURONTARIO STREET, Caledon, Ontario, L7K1W7
Location & Neighborhood
🚗 Travel times
Neighborhood Walkability
Mortgage & Cost Calculators
Nearby Homes (Within 2km)
Similar Homes
Similar Properties
No rental comparables found in this area.
Sold Comparables
Access to sold property data requires a registered and verified account with TRREB DDF integration.
Coming SoonRented Comparables
Access to rented property data requires a registered and verified account with TRREB DDF integration.
Coming Soon





















